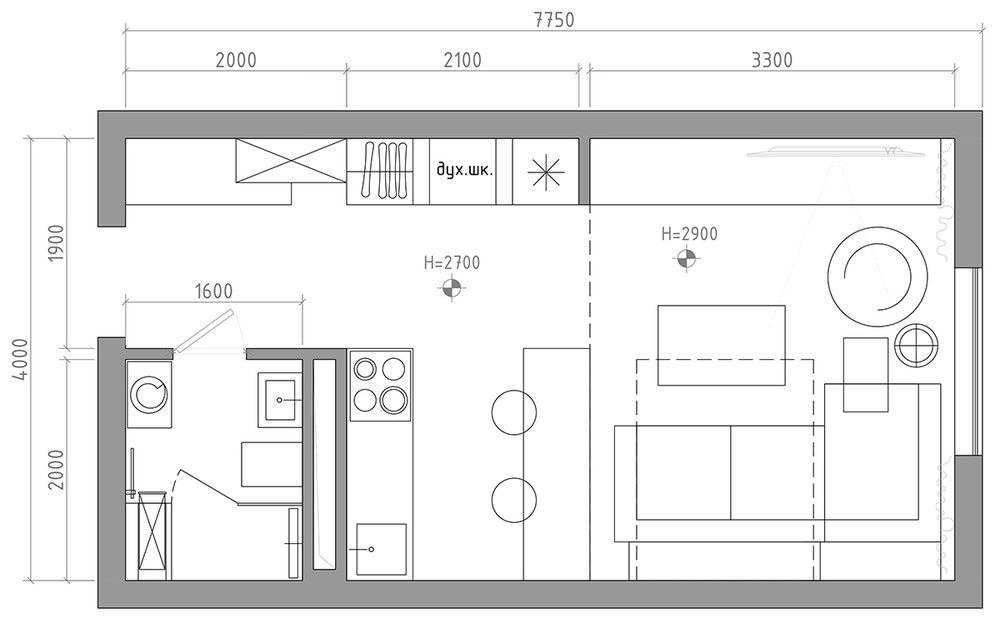
ΠΠ°ΡΠΈΠ°Π½ΡΡ ΠΏΠ»Π°Π½ΠΈΡΠΎΠ²ΠΊΠΈ ΠΊΠ²Π°ΡΡΠΈΡΡ-ΡΡΡΠ΄ΠΈΠΈ
ΠΠΈΠ·Π°ΠΉΠ½ Ρ ΠΎΠ΄Π½ΠΈΠΌ ΠΎΠΊΠ½ΠΎΠΌ
ΠΠ»Π°Π½ΠΈΡΠΎΠ²ΠΊΠ° ΠΊΠ²Π°ΡΡΠΈΡΡ ΡΡΡΠ΄ΠΈΠΈ Ρ ΠΎΠ΄Π½ΠΈΠΌ ΠΎΠΊΠ½ΠΎΠΌ ΠΏΡΠΎΠ±Π»Π΅ΠΌΠ°ΡΠΈΡΠ½Π° Π² ΠΎΠ±ΡΡΡΡΠΎΠΉΡΡΠ²Π΅, ΡΠ°ΠΊ ΠΊΠ°ΠΊ ΠΏΡΠΈΡ ΠΎΠ΄ΠΈΡΡΡ ΡΡΠΈΡΡΠ²Π°ΡΡ ΠΎΠ³ΡΠ°Π½ΠΈΡΠ΅Π½Π½ΠΎΠ΅ ΠΏΡΠΎΡΡΡΠ°Π½ΡΡΠ²ΠΎ ΠΈ ΠΌΠΈΠ½ΠΈΠΌΠ°Π»ΡΠ½ΠΎΠ΅ ΠΎΡΠ²Π΅ΡΠ΅Π½ΠΈΠ΅. Π₯ΠΎΡΠΎΡΠΎ, Π΅ΡΠ»ΠΈ ΠΊΠΎΠΌΠ½Π°ΡΠ° Π½Π°Ρ ΠΎΠ΄ΠΈΡΡΡ Π½Π° ΡΠΎΠ»Π½Π΅ΡΠ½ΠΎΠΉ ΡΡΠΎΡΠΎΠ½Π΅ ΠΈ Π±ΠΎΠ»ΡΡΡΡ ΡΠ°ΡΡΡ Π΄Π½Ρ ΡΠ²Π΅Ρ Π±ΡΠ΄Π΅Ρ ΠΏΠΎΡΡΡΠΏΠ°ΡΡ ΡΠΈΡΠΎΠΊΠΈΠΌ ΠΏΠΎΡΠΎΠΊΠΎΠΌ.
ΠΠ΄ΠΈΠ½ΡΡΠ²Π΅Π½Π½ΡΠΉ Π²Π΅ΡΠ½ΡΠΉ Π²ΡΡ ΠΎΠ΄ β ΠΌΠΈΠ½ΠΈΠΌΠ°Π»ΠΈΠ·ΠΌ. ΠΡΠΎΡ ΡΡΠΈΠ»Ρ ΠΏΡΠ΅Π΄ΠΏΠΎΠ»Π°Π³Π°Π΅Ρ ΡΠΌΠ΅ΡΠ΅Π½Π½ΡΡ Β«Π±Π΅Π΄Π½ΠΎΡΡΡΒ» Π΄ΠΈΠ·Π°ΠΉΠ½Π°, ΠΏΡΠΈ ΠΊΠΎΡΠΎΡΠΎΠΌ Π½Π΅Ρ Π½Π΅ΠΎΠ±Ρ ΠΎΠ΄ΠΈΠΌΠΎΡΡΠΈ ΠΏΠΎΠΊΡΠΏΠ°ΡΡ ΠΏΠΎΠ»Π½ΡΠΉ ΠΊΠΎΠΌΠΏΠ»Π΅ΠΊΡ ΠΌΠ΅Π±Π΅Π»ΠΈ, ΠΈΡΠΏΠΎΠ»ΡΠ·ΠΎΠ²Π°ΡΡ ΠΊΠ°ΠΊΠΈΠ΅-Π»ΠΈΠ±ΠΎ ΡΠ»Π΅ΠΌΠ΅Π½ΡΡ ΡΠΎΡΠΊΠΎΡΠΈ. ΠΡΠΎΡΡΠΎΠΉ ΠΈΠ½ΡΠ΅ΡΡΠ΅Ρ, Π±Π΅Π· Π»ΠΎΡΠΊΠ° ΠΈ Π±Π»Π΅ΡΠΊΠ°. ΠΠΎΠ»Π΅Π΅ ΡΠΎΠ³ΠΎ, ΠΎΠ½ ΠΏΠΎΠ·Π²ΠΎΠ»ΡΠ΅Ρ ΡΠ²Π΅Π»ΠΈΡΠΈΡΡ ΠΏΡΠΎΡΡΡΠ°Π½ΡΡΠ²ΠΎ, ΠΊΠ°ΠΊ ΡΠΈΠ·ΠΈΡΠ΅ΡΠΊΠΈ, ΡΠ°ΠΊ ΠΈ Π²ΠΈΠ·ΡΠ°Π»ΡΠ½ΠΎ. Π’Π°ΠΊ ΠΊΠ°ΠΊ Π½Π΅ Π½ΡΠΆΠ½ΠΎ ΠΏΡΠΎΠΈΠ·Π²ΠΎΠ΄ΠΈΡΡ ΠΌΠ΅Π±Π΅Π»ΠΈΡΠΎΠ²Π°Π½ΠΈΠ΅, ΠΌΠ΅ΡΡΠ° ΡΡΠ°Π½ΠΎΠ²ΠΈΡΡΡ Π±ΠΎΠ»ΡΡΠ΅, Π° ΡΠ²Π΅ΡΠ»ΡΠΉ ΠΈΠ½ΡΠ΅ΡΡΠ΅Ρ Π·ΡΠΈΡΠ΅Π»ΡΠ½ΠΎ Π΄Π΅Π»Π°Π΅Ρ ΠΊΠΎΠΌΠ½Π°ΡΡ ΠΏΡΠΎΡΡΠΎΡΠ½Π΅Π΅.
Π ΡΡΠΎΠΌ ΡΠ»ΡΡΠ°Π΅ Π·ΠΎΠ½ΠΈΡΠΎΠ²Π°Π½ΠΈΠ΅ Π½Π΅ Π½ΡΠΆΠ½ΠΎ. ΠΠΎΡΡΠ°ΡΠΎΡΠ½ΠΎ ΠΎΡΠ²ΠΎΠ±ΠΎΠ΄ΠΈΡΡ ΠΊΠΎΠΌΠ½Π°ΡΡ ΠΈ ΡΠ΄Π΅Π»Π°ΡΡ Π΅Π΅ ΠΏΡΠΎΡΡΠΎΡΠ½Π΅Π΅. ΠΡΠΎΠΌΠ΅ ΡΡΠΎΠ³ΠΎ, ΡΠ΅ΠΊΠΎΠΌΠ΅Π½Π΄ΡΠ΅ΡΡΡ Π½Π°ΠΏΠΎΠ»Π½ΠΈΡΡ ΠΊΠΎΠΌΠ½Π°ΡΡ ΠΈΡΠΊΡΡΡΡΠ²Π΅Π½Π½ΡΠΌ ΡΠ²Π΅ΡΠΎΠΌ. ΠΠ»Ρ ΠΌΠΈΠ½ΠΈΠΌΠ°Π»ΠΈΠ·ΠΌΠ° ΠΏΠΎΠ΄Ρ ΠΎΠ΄ΡΡ ΡΠΎΡΠ΅ΡΠ½ΡΠ΅ ΡΠ²Π΅ΡΠΈΠ»ΡΠ½ΠΈΠΊΠΈ. ΠΠ½ΠΈ Π²ΠΎΠΎΠ±ΡΠ΅ Π½Π΅ Π·Π°Π½ΠΈΠΌΠ°ΡΡ ΠΌΠ΅ΡΡΠ° ΠΈ Π΄Π°ΡΡ ΡΠΎΠ²Π½ΡΠΉ Π΄Π½Π΅Π²Π½ΠΎΠΉ ΡΠ²Π΅Ρ.
Π Π΅ΠΌΠΎΠ½Ρ Π² ΡΡΡΠ΄ΠΈΠΈ Π΄ΠΎΠ»ΠΆΠ΅Π½ Π±ΡΡΡ ΡΠ°ΠΌΡΠΌ ΠΏΡΠΎΡΡΡΠΌ. ΠΡΠ΄Π΅Π»ΠΊΠ° ΠΌΠΈΠ½ΠΈΠΌΠ°Π»ΡΠ½Π°Ρ, ΠΌΠ°ΠΊΡΠΈΠΌΡΠΌ β Π±Π΅Π»ΡΠ΅ ΠΎΠ±ΠΎΠΈ. ΠΡΠ±ΡΠ΅ Π½ΠΈΡΠΈ ΠΌΠΎΠ³ΡΡ ΠΈΡΠΏΠΎΠ»ΡΠ·ΠΎΠ²Π°ΡΡΡΡ Ρ ΡΠΌΠΎΠΌ, Π½Π°ΠΏΡΠΈΠΌΠ΅Ρ, Π΄Π»Ρ Π²ΡΡΠ°ΡΠΈΠ²Π°Π½ΠΈΡ ΡΠ°ΡΡΠ΅Π½ΠΈΠΉ. Π¦Π²Π΅ΡΠ° ΡΠ²Π΅ΡΠ»ΡΠ΅, ΡΡΠΎΠ±Ρ Π΄ΠΎΠΏΠΎΠ»Π½ΠΈΡΠ΅Π»ΡΠ½ΠΎ ΡΠ²Π΅Π»ΠΈΡΠΈΡΡ ΠΊΠΎΠΌΠ½Π°ΡΡ.
Π ΠΊΠ°ΡΠ΅ΡΡΠ²Π΅ ΡΠΊΠ°ΡΠΎΠ² ΠΌΠΎΠ³ΡΡ ΠΏΡΠΈΠΌΠ΅Π½ΡΡΡΡΡ:
- ΠΠΎΠ΄Π²Π΅ΡΠ½ΡΠ΅ ΠΏΠΎΠ»ΠΊΠΈ. Π ΠΎΡΠ»ΠΈΡΠΈΠ΅ ΠΎΡ ΡΠΊΠ°ΡΠΎΠ², ΠΎΡΠ²ΠΎΠ±ΠΎΠΆΠ΄Π°ΡΡ ΠΊΠΎΠΌΠ½Π°ΡΡ ΠΎΡ Π»ΠΈΡΠ½Π΅Π³ΠΎ ΠΌΡΡΠΎΡΠ°, Π·Π°ΡΡΠ°Π²Π»ΡΡΡ ΠΈΡΠΏΠΎΠ»ΡΠ·ΠΎΠ²Π°ΡΡ ΠΌΠΈΠ½ΠΈΠΌΡΠΌ Π²Π΅ΡΠ΅ΠΉ.
- Π―ΡΠΈΠΊΠΈ Π² ΠΊΡΠΎΠ²Π°ΡΠΈ. ΠΡΡΡΠ΅, Π΅ΡΠ»ΠΈ Π±Ρ Π»ΠΎΠΆΠ΅ ΠΈΠΌΠ΅Π»ΠΎ ΡΠΏΠ΅ΡΠΈΠ°Π»ΡΠ½ΡΠ΅ ΠΏΠΎΠ΄ΠΊΡΠΎΠ²Π°ΡΠ½ΡΠ΅ ΡΡΠΈΠΊΠΈ, ΠΊΠΎΡΠΎΡΡΠ΅ ΠΏΠΎΠ·Π²ΠΎΠ»ΡΡ Ρ ΡΠ°Π½ΠΈΡΡ ΠΎΠ΄Π΅ΠΆΠ΄Ρ, ΠΏΠΎΡΡΠ΅Π»ΡΠ½ΠΎΠ΅ Π±Π΅Π»ΡΠ΅ ΠΈ Π±ΡΡΠΎΠ²ΡΡ Ρ ΠΈΠΌΠΈΡ.
- ΠΠΎΠΌΠΎΠ΄Ρ. ΠΡΠ»ΠΈΡΠ½Π°Ρ Π°Π»ΡΡΠ΅ΡΠ½Π°ΡΠΈΠ²Π° ΡΠΊΠ°ΡΠ°ΠΌ. ΠΡΠ΅Π½Ρ Π²ΠΌΠ΅ΡΡΠΈΡΠ΅Π»ΡΠ½ΡΠ΅, Π½ΠΎ ΠΏΡΠΈ ΡΡΠΎΠΌ Π·Π°Π½ΠΈΠΌΠ°ΡΡ Π² ΡΡΠΎΠ΅ ΠΌΠ΅Π½ΡΡΠ΅ ΠΌΠ΅ΡΡΠ°.
Π‘ΡΡΠ΄ΠΈΡ-ΠΊΡΡ Π½Ρ
ΠΡΡ Π½ΠΈ Π² ΠΊΠ²Π°ΡΡΠΈΡΠ΅ ΡΠ°ΡΡΠΎ ΡΠΎΠ΅Π΄ΠΈΠ½ΡΡΡΡΡ Ρ Π³ΠΎΡΡΠΈΠ½ΠΎΠΉ, Ρ ΠΏΠΎΠΌΠΎΡΡΡ ΡΠ½ΠΎΡΠ° ΠΏΠ΅ΡΠ΅Π³ΠΎΡΠΎΠ΄ΠΊΠΈ. Π ΡΡΠΎΠΌ ΡΠ»ΡΡΠ°Π΅ ΡΠ΅Π°Π»ΡΠ½ΠΎ ΡΠΎΠ·Π΄Π°ΡΡ ΠΊΠΎΠΌΡΠΎΡΡΠ½ΠΎΠ΅ ΠΏΡΠΎΡΡΡΠ°Π½ΡΡΠ²ΠΎ. ΠΡΠΈ ΡΡΠΎΠΌ ΡΡΠΎΠ»ΠΎΠ²Π°Ρ ΠΎΡΠ»ΠΈΡΠ½ΠΎ ΠΈΠ½ΡΠ΅Π³ΡΠΈΡΡΠ΅ΡΡΡ Π² Π·Π°Π», Π½Π΅ ΡΠ΅ΡΡΡ ΡΠ²ΠΎΠΈΡ ΠΊΠ°ΡΠ΅ΡΡΠ².
ΠΡΠΎΠ΅ΠΊΡ ΠΊΠ²Π°ΡΡΠΈΡΡ ΡΡΡΠ΄ΠΈΠΈ Ρ ΠΊΡΡ Π½Π΅ΠΉ ΠΏΠΎΠ΄ΡΠ°Π·ΡΠΌΠ΅Π²Π°Π΅Ρ ΡΠΎΠ±Π»ΡΠ΄Π΅Π½ΠΈΠ΅ Π½Π΅ΠΊΠΎΡΠΎΡΡΡ ΠΏΡΠ°Π²ΠΈΠ»:
ΠΡΡΡΠ΅ Π²ΡΠ΅Π³ΠΎ Π²ΠΎΡΠΏΠΎΠ»ΡΠ·ΠΎΠ²Π°ΡΡΡΡ Π΅ΡΡΠ΅ΡΡΠ²Π΅Π½Π½ΠΎΠΉ ΠΏΠ΅ΡΠ΅Π³ΠΎΡΠΎΠ΄ΠΊΠΎΠΉ, ΠΊΠΎΡΠΎΡΠ°Ρ ΠΎΡΡΠ°Π΅ΡΡΡ ΠΏΠΎΡΠ»Π΅ ΡΠ½ΠΎΡΠ° ΡΡΠ΅Π½ΠΊΠΈ. ΠΠ΄Π½Π°ΠΊΠΎ ΠΌΠΎΠΆΠ½ΠΎ ΡΠΎΠ·Π΄Π°ΡΡ Π΅Π΅ ΠΈΡΠΊΡΡΡΡΠ²Π΅Π½Π½ΠΎ. Π‘Π°ΠΌΡΠΉ ΠΏΡΠΎΡΡΠΎΠΉ ΡΠΏΠΎΡΠΎΠ± β Π±Π°ΡΠ½Π°Ρ ΡΡΠΎΠΉΠΊΠ° ΠΈΠ»ΠΈ ΠΎΡΡΡΠΎΠ²ΠΎΠΊ. ΠΡΠΎ ΠΎΠ΄Π½ΠΎΠ²ΡΠ΅ΠΌΠ΅Π½Π½ΠΎ ΠΈ Π³ΡΠ°Π½ΠΈΡΠ°, ΠΈ ΡΠ΄ΠΎΠ±Π½Π°Ρ ΡΠ°ΡΡΡ ΠΌΠ΅Π±Π΅Π»ΡΠ½ΠΎΠ³ΠΎ Π³Π°ΡΠ½ΠΈΡΡΡΠ°. Π ΠΊΠ²Π°ΡΡΠΈΡΠ΅ Π΄ΠΎΠ»ΠΆΠ½ΠΎ Π±ΡΡΡ ΠΌΠΈΠ½ΠΈΠΌΡΠΌ Π²Π΅ΡΠ΅ΠΉ ΠΈ ΠΌΠ΅Π±Π΅Π»ΠΈ
ΠΡΠΎ Π½Π΅ ΠΏΠΎΠ·Π²ΠΎΠ»ΠΈΡ Π·Π°Ρ Π»Π°ΠΌΠΈΡΡ ΠΏΠ»ΠΎΡΠ°Π΄Ρ, ΡΡΠΎ ΠΎΡΠ΅Π½Ρ Π²Π°ΠΆΠ½ΠΎ ΠΏΡΠΈ ΠΎΠ³ΡΠ°Π½ΠΈΡΠ΅Π½Π½ΠΎΠΌ ΠΏΡΠΎΡΡΡΠ°Π½ΡΡΠ²Π΅. ΠΠΎ Π΄ΠΈΠ·Π°ΠΉΠ½ ΡΡΡΠ΄ΠΈΠΈ 30 ΠΊΠ² ΠΌ ΠΈ Π±ΠΎΠ»Π΅Π΅ ΠΌΠΎΠΆΠ΅Ρ ΠΏΡΠ΅Π΄ΠΏΠΎΠ»Π°Π³Π°ΡΡ Π΄Π°ΠΆΠ΅ ΠΏΠΎΠ»Π½ΠΎΡΠ°Π·ΠΌΠ΅ΡΠ½ΡΠ΅ ΠΊΡΡ ΠΎΠ½Π½ΡΠ΅ Π³Π°ΡΠ½ΠΈΡΡΡΡ
ΠΠΎ ΠΌΠ°ΠΊΡΠΈΠΌΡΠΌΡ Π½ΡΠΆΠ½ΠΎ ΠΈΡΠΏΠΎΠ»ΡΠ·ΠΎΠ²Π°ΡΡ Π½Π΅ ΡΠΈΡΠΎΡΡ, Π° Π²ΡΡΠΎΡΡ
ΠΠΎ ΠΌΠ°ΠΊΡΠΈΠΌΡΠΌΡ Π½ΡΠΆΠ½ΠΎ ΠΈΡΠΏΠΎΠ»ΡΠ·ΠΎΠ²Π°ΡΡ Π½Π΅ ΡΠΈΡΠΎΡΡ, Π° Π²ΡΡΠΎΡΡ
ΠΠ΅ ΡΡΠΎΠΈΡ Π·Π°Π±ΡΠ²Π°ΡΡ ΠΏΡΠΎ ΡΠ²ΠΎΠ±ΠΎΠ΄Π½ΠΎΠ΅ ΠΏΡΠΎΡΡΡΠ°Π½ΡΡΠ²ΠΎ, ΠΊΠΎΡΠΎΡΠΎΠ΅ Π½Π°Ρ ΠΎΠ΄ΠΈΡΡΡ Π½Π° ΡΡΠ΅Π½Π°Ρ . ΠΠΈΠ·Π°ΠΉΠ½ ΠΊΡΡ Π½ΠΈ ΠΌΠΎΠΆΠ΅Ρ ΠΏΠΎΠ΄ΡΠ°Π·ΡΠΌΠ΅Π²Π°ΡΡ Π±Π΅ΡΡΠΈΡΠ»Π΅Π½Π½ΠΎΠ΅ ΠΊΠΎΠ»ΠΈΡΠ΅ΡΡΠ²ΠΎ Π½Π°ΡΡΠ΅Π½Π½ΡΡ ΠΏΠΎΠ»ΠΎΡΠ΅ΠΊ ΠΎΡΠΊΡΡΡΠΎΠ³ΠΎ ΡΠΈΠΏΠ°. ΠΠ½ΠΈ ΠΏΠΎΡΡΠΈ Π½Π΅ Π·Π°Π½ΠΈΠΌΠ°ΡΡ ΠΌΠ΅ΡΡΠ° ΠΈ ΠΏΡΠΈ ΡΡΠΎΠΌ ΠΏΠΎΠ·Π²ΠΎΠ»ΡΡΡ ΡΠ°Π·ΠΌΠ΅ΡΡΠΈΡΡ ΠΊΠ°ΡΡΡΡΠ»ΠΈ, ΡΠ°ΡΠ΅Π»ΠΊΠΈ ΠΈ ΠΏΡΠΎΠ΄ΡΠΊΡΡ.
Π‘ΡΡΠ΄ΠΈΡ-ΡΠΏΠ°Π»ΡΠ½Ρ
ΠΡΠΎΠ΅ΠΊΡ ΡΡΡΠ΄ΠΈΠΈ ΡΠΏΠ°Π»ΡΠ½ΠΈ ΠΏΡΠΎΡΡ, Π΅ΡΠ»ΠΈ ΠΏΡΠΈΠ΄Π΅ΡΠΆΠΈΠ²Π°ΡΡΡΡ ΡΠ»Π΅Π΄ΡΡΡΠΈΡ ΠΏΡΠ°Π²ΠΈΠ»:
- ΠΠ³ΡΠ°Π½ΠΈΡΠ΅Π½ΠΈΠ΅ ΡΠΏΠ°Π»ΡΠ½ΠΎΠ³ΠΎ ΠΌΠ΅ΡΡΠ°. ΠΠ΅ Π½ΡΠΆΠ½ΠΎ ΠΎΡΡΠ°Π²Π»ΡΡΡ ΠΎΡΠ΅Π½Ρ ΠΌΠ½ΠΎΠ³ΠΎ ΠΏΡΠΎΡΡΡΠ°Π½ΡΡΠ²Π° Π·Π° ΠΊΡΠΎΠ²Π°ΡΡΡ. ΠΠ΅ Π»ΡΡΡΠ΅ ΡΠ΄Π΅Π»Π°ΡΡ ΠΎΠ³ΡΠ°Π½ΠΈΡΠ΅Π½Π½ΠΎΠΉ ΠΎΠ΄Π½ΠΎΠΉ ΠΊΡΠΎΠ²Π°ΡΡΡ ΠΈΠ»ΠΈ Π²ΠΎΠΎΠ±ΡΠ΅ ΡΠ΄Π΅Π»Π°ΡΡ Π΅Π΅ ΡΡΠ°Π½ΡΡΠΎΡΠΌΠ΅ΡΠ½ΠΎΠΉ. ΠΡΠΎΡΠΎΠΉ Π²Π°ΡΠΈΠ°Π½Ρ ΠΏΠΎΠ·Π²ΠΎΠ»ΠΈΡ ΠΎΡΡΠ°Π²ΠΈΡΡ Π²ΡΠ΅ ΠΏΠΎΠΌΠ΅ΡΠ΅Π½ΠΈΠ΅ Π΄Π»Ρ ΠΎΡΠ΄ΡΡ Π° ΠΈ ΡΠ°Π·Π²Π»Π΅ΡΠ΅Π½ΠΈΠΉ. ΠΡΠΎΠ±Π΅Π½Π½ΠΎ ΡΡΠΎ ΠΏΠΎΠ»Π΅Π·Π½ΠΎ Π² ΡΠΎΠΌ ΡΠ»ΡΡΠ°Π΅, Π΅ΡΠ»ΠΈ Π² ΠΊΠ²Π°ΡΡΠΈΡΠ΅ ΠΆΠΈΠ²ΡΡ Π΄Π΅ΡΠΈ.
- ΠΠ³ΡΠ°ΠΆΠ΄Π΅Π½ΠΈΠ΅ ΡΡΠ΅Π½ΠΎΠΉ. ΠΠ΅ ΡΡΠΎΠΈΡ ΠΌΠ΅ΡΠ°ΡΡ Π³ΠΎΡΡΠΈΠ½ΡΡ ΠΈ ΡΠΏΠ°Π»ΡΠ½Ρ, ΡΠ°ΠΊ ΠΊΠ°ΠΊ ΠΏΠΎΠ»ΡΡΠ΅Π½Π½Π°Ρ ΠΊΠΎΠΌΠ½Π°ΡΠ° ΠΏΠΎΡΠ΅ΡΡΠ΅Ρ ΠΊΠ°ΡΠ΅ΡΡΠ²ΠΎ ΠΏΠ΅ΡΠ²ΠΎΠ³ΠΎ ΠΈ Π²ΡΠΎΡΠΎΠ³ΠΎ. Π Π΅ΠΌΠΎΠ½Ρ ΠΊΠ²Π°ΡΡΠΈΡΡ ΡΡΡΠ΄ΠΈΠΈ Π½Π΅ ΡΡΠ΅Π±ΡΠ΅Ρ Π²ΠΎΠ·Π²Π΅Π΄Π΅Π½ΠΈΡ ΡΡΠ½Π΄Π°ΠΌΠ΅Π½ΡΠ°Π»ΡΠ½ΠΎΠΉ ΠΏΠ΅ΡΠ΅Π³ΠΎΡΠΎΠ΄ΠΊΠΈ. ΠΠΎΡΡΠ°ΡΠΎΡΠ½ΠΎ Π½Π΅Π±ΠΎΠ»ΡΡΠΎΠ³ΠΎ ΠΏΡΠΎΡΡΠ΅Π½ΠΊΠ° ΠΈΠ»ΠΈ Π΄Π°ΠΆΠ΅ ΡΡΠ΅ΠΊΠ»ΡΠ½Π½ΠΎΠΉ ΠΈΠ·Π³ΠΎΡΠΎΠ΄ΠΈ. ΠΠ΅ Π±ΡΠ΄Π΅Ρ Ρ Π²Π°ΡΠ°ΡΡ Π΄Π»Ρ ΠΏΠΎΠ»Π½ΠΎΡΠ΅Π½Π½ΠΎΠ³ΠΎ ΠΎΡΠ΄ΡΡ Π° ΠΈ Π΄Π°ΠΆΠ΅ ΠΎΡΠ΄Π΅Π»ΡΠ½ΠΎΠ³ΠΎ ΡΠ½Π°.
- ΠΠΈΠ²Π°Π½ ΠΊΡΠΎΠ²Π°ΡΡ. Π Π°Π΄ΠΈΠΊΠ°Π»ΡΠ½ΡΠΌ ΡΠ΅ΡΠ΅Π½ΠΈΠ΅ΠΌ ΠΏΡΠΎΠ±Π»Π΅ΠΌΡ Π²ΡΡΡΡΠΏΠ°Π΅Ρ Π·Π°ΠΌΠ΅Π½Π° ΠΊΡΠΎΠ²Π°ΡΠΈ ΠΈ Π΄ΠΈΠ²Π°Π½Π° Π½Π° ΠΈΡ ΡΠΈΠΌΠ±ΠΈΠΎΠ·. ΠΡΠΎ ΠΏΠΎΠ·Π²ΠΎΠ»ΠΈΡ ΠΎΠ΄Π½ΠΎΠ²ΡΠ΅ΠΌΠ΅Π½Π½ΠΎ ΠΈ ΡΠΏΠ°ΡΡ, ΠΈ ΠΎΡΠ΄ΡΡ Π°ΡΡ.
- ΠΡΡΡΠΎΠ΅Π½Π½Π°Ρ ΠΊΡΠΎΠ²Π°ΡΡ. ΠΡΠ»ΠΈ Π΅ΡΡΡ Π½ΠΈΡΠ°, ΠΌΠΎΠΆΠ½ΠΎ ΠΏΠΎΡΡΠ°Π²ΠΈΡΡ ΠΊΡΠΎΠ²Π°ΡΡ ΡΡΠ΄Π°. ΠΠ΅ΡΠΎΠ΄ Π²ΡΡΡΠΎΠ΅Π½Π½ΠΎΠΉ ΠΌΠ΅Π±Π΅Π»ΠΈ ΠΏΠΎΠ·Π²ΠΎΠ»ΡΠ΅Ρ ΡΠΎΡ ΡΠ°Π½ΡΡΡ ΠΌΠ΅ΡΡΠΎ, Π½ΠΎ Π² ΠΊΠ²Π°ΡΡΠΈΡΠ΅ ΠΏΠΎΡΠ²ΠΈΡΡΡ ΠΏΠΎΠ»Π½ΠΎΡΠ΅Π½Π½ΠΎΠ΅ ΡΠΏΠ°Π»ΡΠ½ΠΎΠ΅ ΠΌΠ΅ΡΡΠΎ.
ΠΠΎΡΠΌΠΎΡΡΠ΅ΡΡ ΡΠΎΡΠΎ, ΠΊΠ°ΠΊ Π²ΡΠ³Π»ΡΠ΄ΠΈΡ ΠΈΠ½ΡΠ΅ΡΡΠ΅Ρ ΠΈ ΠΏΠ»Π°Π½ΠΈΡΠΎΠ²ΠΊΠ° ΠΊΠ²Π°ΡΡΠΈΡΡ ΡΡΡΠ΄ΠΈΠΈ Β«ΡΠΏΠ°Π»ΡΠ½Ρ + Π³ΠΎΡΡΠΈΠ½Π°ΡΒ» ΠΌΠΎΠΆΠ½ΠΎ Π½ΠΈΠΆΠ΅.
ΠΠΈΠ·Π°ΠΉΠ½ ΡΡΡΠ΄ΠΈΠΈ-Π·Π°Π»Π°
ΠΠ½ΡΠ΅ΡΡΠ΅Ρ ΠΊΠ²Π°ΡΡΠΈΡΡ Ρ ΠΎΡΠ½ΠΎΠ²Π½ΠΎΠΉ Π³ΠΎΡΡΠΈΠ½ΠΎΠΉ ΠΌΠΎΠΆΠ΅Ρ ΠΎΡΠ½ΠΎΠ²ΡΠ²Π°ΡΡΡΡ Π½Π° ΡΡΠ»ΠΎΠ²Π½ΡΡ ΡΡΠ΅Π½Π°Ρ . Π‘Π°ΠΌΡΠΉ ΠΏΡΠΎΡΡΠΎΠΉ ΡΠΏΠΎΡΠΎΠ± ΠΎΡΠ΄Π΅Π»ΠΈΡΡ Π΅Π΅ β Π΄ΠΈΠ²Π°Π½, ΡΠ°ΡΠΏΠΎΠ»ΠΎΠΆΠ΅Π½Π½ΡΠΉ ΡΠΏΠΈΠ½ΠΊΠΎΠΉ ΠΊΠΎ Π²ΡΠ΅ΠΉ ΠΎΡΡΠ°Π»ΡΠ½ΠΎΠΉ ΠΊΠΎΠΌΠ½Π°ΡΠ΅.
Π’Π°ΠΊΠΆΠ΅ ΡΠ°ΡΡΠΎ ΠΏΡΠΈΠΌΠ΅Π½ΡΠ΅ΡΡΡ ΠΈ ΠΎΡΠ²Π΅ΡΠ΅Π½ΠΈΠ΅. Π Π³ΠΎΡΡΠΈΠ½ΠΎΠΉ ΠΎΠ½ΠΎ Π΄ΠΎΠ»ΠΆΠ½ΠΎ Π±ΡΡΡ ΡΠ°ΠΌΡΠΌ Π½Π°ΡΡΡΠ΅Π½Π½ΡΠΌ ΠΈ ΡΡΠΊΠΈΠΌ. ΠΡΡΡΠ΅ Π²ΡΠ΅Π³ΠΎ ΠΏΠΎΠ΄Ρ ΠΎΠ΄ΡΡ Π±ΠΎΠ»ΡΡΠΈΠ΅ Π»ΡΡΡΡΡ.
Π ΠΌΠ΅ΡΡΠ°Ρ ΠΏΠ΅ΡΠ΅Ρ ΠΎΠ΄Π° ΠΎΡ ΠΎΠ΄Π½ΠΎΠΉ Π·ΠΎΠ½Ρ ΠΊ Π΄ΡΡΠ³ΠΎΠΉ ΠΏΡΠΈΠ²Π΅ΡΡΡΠ²ΡΡΡΡΡ:
- ΠΠ΅ΡΠΊΠ°Π»ΡΠ½ΡΠ΅ ΡΡΠ΅Π½ΠΊΠΈ;
- ΠΠ΅Π±Π΅Π»Ρ;
- Π¨ΡΠΎΡΡ ΠΈ ΡΠΈΡΠΌΡ.
ΠΠΊΠΎΠ½ΠΎΠΌΠΈΡΡ ΠΌΠ΅ΡΡΠΎ Π² Π·Π°Π»Π΅ ΠΌΠΎΠΆΠ½ΠΎ Ρ ΠΏΠΎΠΌΠΎΡΡΡ ΠΊΡΠΎΠ½ΡΡΠ΅ΠΉΠ½Π° Π΄Π»Ρ ΡΠ΅Π»Π΅Π²ΠΈΠ·ΠΎΡΠ° ΠΈ Π»ΠΈΠΊΠ²ΠΈΠ΄Π°ΡΠΈΠΈ Π³Π°ΡΠ½ΠΈΡΡΡΠ°. ΠΡΠΈ ΡΠΎΠ²ΠΌΠ΅ΡΠ΅Π½ΠΈΠΈ Ρ ΠΏΡΠΈΡ ΠΎΠΆΠ΅ΠΉ, Π±Π΅ΡΠΏΡΠΎΠΈΠ³ΡΡΡΠ½ΡΠΉ Π²Π°ΡΠΈΠ°Π½Ρ β Π½ΠΈΠ·ΠΊΠ°Ρ ΠΌΠ΅Π±Π΅Π»Ρ. Π’ΡΠΌΠ±ΠΎΡΠΊΠΈ ΠΈ ΠΊΠΎΠΌΠΎΠ΄Ρ Π½Π°ΠΌΠ½ΠΎΠ³ΠΎ ΠΌΠ΅Π½ΡΡΠ΅ ΡΠΊΠ°ΡΠΎΠ², Π½ΠΎ ΠΏΡΠΈ ΡΡΠΎΠΌ ΡΠ΅Π°Π»ΡΠ½ΠΎ ΡΠΊΠΎΠ½ΠΎΠΌΡΡ ΠΌΠ΅ΡΡΠΎ ΠΈ ΠΏΠΎΠ·Π²ΠΎΠ»ΡΡΡ ΠΎΡΠ»ΠΈΡΠ½ΠΎ ΠΎΡΠ΄Π΅Π»ΡΡΡ Π³ΠΎΡΡΠΈΠ½ΡΡ ΡΠ°ΡΡΡ.
ΠΠΎΡΠΌΠΎΡΡΠ΅ΡΡΒ ΡΠΎΡΠΎ Π΄ΠΈΠ·Π°ΠΉΠ½Π° ΠΊΠ²Π°ΡΡΠΈΡΡ ΡΡΡΠ΄ΠΈΠΈ 25 ΠΊΠ² ΠΌ ΠΌΠΎΠΆΠ½ΠΎ Π½ΠΈΠΆΠ΅.
Π€ΠΎΡΠΌΠ° ΠΊΡΡ Π½ΠΈ Π·Π°Π΄Π°Π΅Ρ ΡΡΠΈΠ»Ρ
Π‘ΠΎΠ²ΡΠ΅ΠΌΠ΅Π½Π½ΡΠ΅ ΠΊΡΡ Π½ΠΈ ΠΈΠΌΠ΅ΡΡ Π²Π°Π³ΠΎΠ½ΠΎΠΎΠ±ΡΠ°Π·Π½ΡΡ ΡΠΎΡΠΌΡ, ΡΠ°ΠΊΡΡ, ΡΡΠΎ Π΄Π»ΠΈΠ½Π° Π² 2 ΡΠ°Π·Π° ΠΏΡΠ΅Π²ΡΡΠ°Π΅Ρ ΡΠΈΡΠΈΠ½Ρ. Π ΡΠ°ΠΊΠΈΡ ΡΠΈΡΡΠ°ΡΠΈΡΡ , ΠΏΠΎΠΆΠ°Π»ΡΠΉ, ΠΏΡΠ°Π²ΠΈΠ»ΡΠ½ΡΠΌ ΡΠ΅ΡΠ΅Π½ΠΈΠ΅ΠΌ ΡΠ²Π»ΡΠ΅ΡΡΡ ΠΏΠΎΡΡΠ°Π²ΠΈΡΡ ΠΊΡΡ ΠΎΠ½Π½ΡΠΉ Π³Π°ΡΠ½ΠΈΡΡΡ. ΠΠΊΠ½ΠΎ ΠΏΠΎΡΠ΅ΡΠ΅Π΄ΠΈΠ½Π΅ ΠΌΠΎΠΆΠ΅Ρ Π±ΡΡΡ ΠΎΡΠΎΡΠΌΠ»Π΅Π½ΠΎ, ΠΊΠ°ΠΊ ΡΠ³ΠΎΠ΄Π½ΠΎ, Π²ΡΠ΅Π²ΠΎΠ·ΠΌΠΎΠΆΠ½ΡΠΌΠΈ ΡΠΊΠ°ΡΡΠΈΠΊΠ°ΠΌΠΈ, ΠΏΠΎΠ»ΠΎΡΠΊΠ°ΠΌΠΈ, Π±Π»Π°Π³ΠΎΠ΄Π°ΡΡ ΡΡΠΎΠ»Π΅ΡΠ½ΠΈΡΠ΅ ΡΠ²Π΅Π»ΠΈΡΠΈΡΡΡ ΡΠ°Π·ΠΌΠ΅Ρ ΡΠ°Π±ΠΎΡΠ΅ΠΉ ΠΏΠΎΠ²Π΅ΡΡ Π½ΠΎΡΡΠΈ ΡΡΠΎΠ»Π°. Π’Π°ΠΊΠΆΠ΅ ΠΏΡΠΈ ΠΏΠΎΠΌΠΎΡΠΈ ΠΊΡΡ Π½ΠΈ ΠΌΠΎΠΆΠ½ΠΎ Π·Π°ΠΏΡΡΡΠ°ΡΡ Π±Π°ΡΠ°ΡΠ΅ΠΈ, ΠΏΡΠΎΠ²ΠΎΠ΄Π° ΠΈ Π²Π΅Π½ΡΠΈΠ»ΡΡΠΈΠΎΠ½Π½ΡΠΉ ΠΊΠΎΡΠΎΠ±ΠΎΠΊ, ΠΊΠΎΡΠΎΡΡΠΉ ΡΠ°ΡΠ΅ Π²ΡΠ΅Π³ΠΎ Π½Π°Ρ ΠΎΠ΄ΠΈΡΡΡ Π½Π΅Π΄Π°Π»Π΅ΠΊΠΎ ΠΎΡ ΠΎΠΊΠ½Π°. Π’Π°ΠΊΠΈΠΌ ΠΎΠ±ΡΠ°Π·ΠΎΠΌ, ΠΊΡΡ Π½Ρ, ΡΠ°ΡΠΏΠΎΠ»ΠΎΠΆΠ΅Π½Π½Π°Ρ Ρ ΠΎΠΊΠ½Π°, Π±ΡΠ΄Π΅Ρ ΡΠΎΠ»ΡΠΊΠΎ ΠΏΠΎΠΌΠΎΠ³Π°ΡΡ ΡΠΊΡΡΡΡ Π½Π΅ Π²ΡΠ³ΠΎΠ΄Π½ΡΠ΅ ΡΠ»Π΅ΠΌΠ΅Π½ΡΡ Π²ΠΎ Π²ΡΡΡΠΎΠ΅Π½Π½ΡΡ ΡΠΊΠ°ΡΡΠΈΠΊΠ°Ρ . ΠΡΠΎΠΌΠ΅ ΡΡΠΎΠ³ΠΎ ΡΠ°ΠΊΠΎΠ²ΠΈΠ½Π° ΡΡΠ°Π½Π΅Ρ Π²ΡΠ³Π»ΡΠ΄Π΅ΡΡ ΠΎΡΠ΅Π½Ρ ΡΡΡΠ΅ΠΊΡΠ½ΠΎ. ΠΠΎΠ½Π΅ΡΠ½ΠΎ, ΡΡΡΠ°Π½ΠΎΠ²ΠΊΠ° ΠΊΠ°Π½Π°Π»ΠΈΠ·Π°ΡΠΈΠΈ ΠΈ Π΄ΡΡΠ³ΠΈΡ ΠΊΠΎΠΌΠΌΡΠ½ΠΈΠΊΠ°ΡΠΈΠΎΠ½Π½ΡΡ ΠΏΡΡΠ΅ΠΉ ΡΡΠΎΠΈΡ ΠΎΠΏΡΠ΅Π΄Π΅Π»Π΅Π½Π½ΡΡ ΡΡΠ΅Π΄ΡΡΠ², Π½ΠΎ ΠΎΠ½ΠΈ ΡΠΎΠ²Π΅ΡΡΠ΅Π½Π½ΠΎ Π½Π΅ Π²Π΅Π»ΠΈΠΊΠΈ.
Π‘Π°ΠΌΡΠΌ Π½Π΅ΠΏΡΠΈΡΡΠ½ΡΠΌ ΡΠ°ΠΊΠΎΠΉ ΠΊΠΎΠΌΠ½Π°ΡΠ΅ ΡΠ²Π»Π΅Π½ΠΈΠ΅ΠΌ ΡΡΠΈΡΠ°ΡΡΡΡ Π±Π°ΡΠ°ΡΠ΅ΠΈ, ΠΏΠΎΡΠΊΠΎΠ»ΡΠΊΡ ΠΎΠ½ΠΈ Π½Π΅ΠΏΠΎΡΡΠ΅Π΄ΡΡΠ²Π΅Π½Π½ΠΎ ΠΏΠΎΡΡΡΡ ΠΊΠ°ΡΡΠΈΠ½ΠΊΡ Π΄ΠΈΠ·Π°ΠΉΠ½Π° ΡΠ²ΠΎΠΈΠΌ Π²ΠΈΠ΄ΠΎΠΌ. Π’Π°ΠΊΠΈΠ΅ ΠΏΡΠΈΠΌΠ΅ΡΡ ΡΠ΅ΡΠ΅Π½ΠΈΠΉ Π΄Π»Ρ ΡΠ³Π»ΠΎΠ²ΡΡ ΠΊΡΡ ΠΎΠ½Ρ:
- Π£ΡΡΠ°Π½ΠΎΠ²ΠΈΡΠ΅ ΡΠ΅ΠΏΠ»ΡΠΉ ΠΏΠΎΠ» ΠΈ ΠΈΠ·Π±Π°Π²ΡΡΠ΅ΡΡ ΠΎΡ Π±Π°ΡΠ°ΡΠ΅ΠΉ Π²ΠΎΠΎΠ±ΡΠ΅. Π’ΠΎΠ³Π΄Π° Π±Π°ΡΠ½Π°Ρ ΡΡΠΎΠΉΠΊΠ° Π½Π° ΠΏΠΎΠ΄ΠΎΠΊΠΎΠ½Π½ΠΈΠΊΠ΅ Π±ΡΠ΄Π΅Ρ ΠΎΡΠ΅Π½Ρ ΡΠΌΠ΅ΡΡΠ½ΠΎΠΉ ΠΈ ΡΡΠΈΠ»ΡΠ½ΠΎΠΉ. ΠΠΈΠ½ΡΡ ΡΡΠΎΠ³ΠΎ ΡΠΏΠΎΡΠΎΠ±Ρ β Π·Π°ΡΡΠ°ΡΡ ΠΈ Π½Π΅ΠΏΡΠΈΡΡΠΈΠ΅ ΡΡΡΡΠΎΠΉΡΡΠ²ΠΎΠΌ Π½Π΅ΠΊΠΎΡΠΎΡΡΡ Π²ΠΈΠ΄ΠΎΠ² ΠΏΠΎΠ²Π΅ΡΡ Π½ΠΎΡΡΠ΅ΠΉ.
- ΠΠ΅ΡΠ΅ΠΌΠ΅ΡΠ΅Π½ΠΈΠ΅ Π±Π°ΡΠ°ΡΠ΅ΠΈ Π² Π΄ΡΡΠ³ΠΎΠ΅ ΠΌΠ΅ΡΡΠΎ. ΠΡΠΎΡ ΡΠΏΠΎΡΠΎΠ± Π΅ΡΠ΅ Π±ΠΎΠ»Π΅Π΅ Π·Π°ΡΡΠ°ΡΠ½ΡΠΉ, Π½ΠΎ ΡΡΠΎΡΡΠΈΠΉ. Π’ΡΠ°ΠΏΠ΅Π·Π½Π°Ρ Π±ΡΠ΄Π΅Ρ ΠΈ ΡΠ΅ΠΏΠ»Π°Ρ ΠΈ Ρ ΡΠ΄Π°ΡΠ½ΠΎ ΠΎΠ±ΡΠ³ΡΠ°Π½Π½ΠΎΠΉ Π±Π°ΡΠ½ΠΎΠΉ ΡΡΠΎΠΉΠΊΠΎΠΉ.
- Π Π°ΠΊΠΎΠ²ΠΈΠ½Ρ ΡΠ°Π·ΠΌΠ΅ΡΡΠΈΡΡ ΠΏΠΎΠ΄ ΠΏΠΎΠ΄ΠΎΠΊΠΎΠ½Π½ΠΈΠΊΠΎΠΌ, Π° Π±Π°ΡΠ°ΡΠ΅ΠΈ ΡΠΏΡΡΡΠ°ΡΡ ΠΊΡΡ ΠΎΠ½Π½ΡΠΉ ΡΠΊΠ°ΡΡΠΈΠΊ. ΠΠΈΠ½ΡΡ β ΠΏΠ΅ΡΠ΅Π½ΠΎΡ ΠΊΠΎΠΌΠΌΡΠ½ΠΈΠΊΠ°ΡΠΈΠΉ.
- Π‘Π½Π΅ΡΡΠΈ ΡΡΠ΅Π½Ρ, ΡΡΠΎΠ±Ρ ΡΠ±ΡΠ°ΡΡ Π±Π°ΡΠ°ΡΠ΅Ρ.
ΠΠ°ΠΆΠ½ΡΠΌ ΡΠ°ΠΊΡΠΎΠΌ ΠΎΡΡΠ°Π΅ΡΡΡ ΡΠΎ, ΡΡΠΎ ΠΎΠΊΠ½ΠΎ ΠΎΡΡΠ°Π΅ΡΡΡ Π³Π»Π°Π²Π½ΡΠΌ Π°ΠΊΡΠ΅Π½ΡΠΎΠΌ Π² ΠΈΠ½ΡΠ΅ΡΡΠ΅ΡΠ΅. ΠΠ³ΠΎ ΠΎΡΠΎΡΠΌΠ»Π΅Π½ΠΈΠ΅ Π΄ΠΎΠ»ΠΆΠ½ΠΎ Π½Π΅ΡΡΠΈ ΡΠ°Π΄ΠΎΡΡΠ½ΠΎΠ΅ Π½Π°ΡΡΡΠΎΠ΅Π½ΠΈΠ΅ Π·Π° ΡΡΠ΅Ρ ΠΎΡΠΎΡΠΌΠ»Π΅Π½ΠΈΡ. Π’Π°ΠΊ ΡΡΠΎ ΠΌΠΎΠΆΠ½ΠΎ ΠΏΠΎΠ΄ΠΎΠ±ΡΠ°ΡΡ ΡΡΠΊΠΈΠ΅ Π·Π°Π½Π°Π²Π΅ΡΠΊΠΈ, Π²ΠΎΠ·Π΄ΡΡΠ½ΡΠ΅ ΡΡΠ»ΠΈ Ρ ΡΠ²Π΅ΡΠ°ΠΌΠΈ ΠΈ ΠΏΡΠΈΠ²Π½Π΅ΡΡΠΈ Π² Π°ΡΠΌΠΎΡΡΠ΅ΡΡ ΠΊΡΡ Π½ΠΈ ΠΎΡΠΎΠ±ΡΠΉ ΡΠ°ΡΠΌ. ΠΡΠ΅Π³Π΄Π° Ρ ΠΎΠ·ΡΠΉΠΊΠΈ Π±ΠΎΡΠ»ΠΈΡΡ ΠΎΡΡΠ°Π²Π»ΡΡΡ ΠΎΠΊΠΎΠ½Π½ΡΠ΅ ΡΠ°ΠΌΡ Π±Π΅Π· ΡΠΊΡΠ°ΡΠ΅Π½ΠΈΡ, ΠΏΠΎΡΠΎΠΌΡ ΠΈΡΠΏΠΎΠ»ΡΠ·ΠΎΠ²Π°Π»ΠΈ ΠΆΠ°Π»ΡΠ·ΠΈ ΠΈΠ»ΠΈ ΡΠΎΠ½ΠΊΠΈΠ΅ Π·Π°Π½Π°Π²Π΅ΡΠΊΠΈ, Π½Π΅ ΡΡΡΠΆΠ΅Π»ΡΡΡΠΈΠ΅ ΠΎΡΠΎΡΠΌΠ»Π΅Π½ΠΈΠ΅. ΠΡ Π°Π±ΡΠΎΠ»ΡΡΠ½ΡΠΉ ΡΡΠ°ΡΡΠ»ΠΈΠ²ΡΠΈΠΊ, Π΅ΡΠ»ΠΈ Ρ Π²Π°ΡΠ΅ΠΉ ΠΊΡΡ Π½ΠΈ ΡΠ³Π»ΠΎΠ²ΠΎΠΉ Ρ ΠΎΠΊΠ½ΠΎΠΌ ΠΌΠ½ΠΎΠ³ΠΎ ΡΠ²Π΅ΡΠ°, ΠΌΠΎΠΆΠ΅Ρ, Π΄Π°ΠΆΠ΅ 2 ΠΎΠΊΠ½Π°, ΡΠΎ Π΄Π»Ρ ΠΎΡΠΎΡΠΌΠ»Π΅Π½ΠΈΡ Π³Π»Π°Π²Π½ΡΠΌ ΠΎΠ±ΡΠ°Π·ΠΎΠΌ ΠΏΠΎΠ΄ΠΎΠΉΠ΄ΡΡ ΡΡΠΎΡΡ Π² ΡΠΈΠΌΡΠΊΠΎΠΌ ΡΡΠΈΠ»Π΅ (ΡΠΎΡΠΎ).
ΠΡΠΈ ΠΈΡ ΠΏΠΎΠ΄Π½ΡΡΠΈΠΈ Π²Π°ΡΠ° ΠΊΠΎΠΌΠ½Π°ΡΠ° ΡΡΠ°Π½Π΅Ρ ΡΠ²Π΅ΡΠ»ΠΎΠΉ, Π° Π² Π·Π°Π²ΠΈΡΠΈΠΌΠΎΡΡΠΈ ΠΎΡ ΠΈΡ ΡΠ²Π΅ΡΠ°, ΠΏΠΎ Π½Π΅ΠΉ Π±ΡΠ΄Π΅Ρ ΡΠ°ΡΠΏΡΠΎΡΡΡΠ°Π½ΡΡΡΡΡ ΡΠ²Π΅ΡΠ½ΠΎΠ΅ ΠΎΡΠ²Π΅ΡΠ΅Π½ΠΈΠ΅. Π ΠΊΠ°ΡΠ΅ΡΡΠ²Π΅ Π΄Π΅ΠΊΠΎΡΠ°ΡΠΈΠ²Π½ΠΎΠ³ΠΎ ΠΎΡΠΎΡΠΌΠ»Π΅Π½ΠΈΡ Π΄ΠΈΠ·Π°ΠΉΠ½Π΅ΡΡ Π²ΡΡ ΡΠ°ΡΠ΅ ΡΡΠ°Π»ΠΈ Π²ΡΠ±ΠΈΡΠ°ΡΡ ΡΡΠΊΠΈΠ΅ ΠΎΠΊΠΎΠ½Π½ΡΠ΅ ΡΠ°ΠΌΡ. Π‘ Π³ΡΠ°ΠΌΠΎΡΠ½ΡΠΌ ΠΎΡΠΎΡΠΌΠ»Π΅Π½ΠΈΠ΅ΠΌ ΡΠ³Π»ΠΎΠ²Π°Ρ ΠΊΡΡ Π½Ρ ΠΌΠΎΠΆΠ΅Ρ ΡΡΠ°ΡΡ Π³ΠΎΡΠ°Π·Π΄ΠΎ ΡΠΈΡΠ΅ Ρ ΠΎΡΡ Π±Ρ Π²ΠΈΠ·ΡΠ°Π»ΡΠ½ΠΎ, Π³ΠΎΡΠ°Π·Π΄ΠΎ ΡΡΠ½ΠΊΡΠΈΠΎΠ½Π°Π»ΡΠ½Π΅Π΅ β Π·Π° ΡΡΠ΅Ρ ΠΊΠΎΠΌΠΏΠ°ΠΊΡΠ½ΡΡ ΡΠΊΠ°ΡΡΠΈΠΊΠΎΠ², Π·Π°ΠΏΡΡΡΡΠ²Π°ΡΡΠΈΡ Π±Π°ΡΠ°ΡΠ΅Ρ ΠΈ ΡΡΠ΅Π΄ΡΡΠ²Π° ΠΊΠΎΠΌΠΌΡΠ½ΠΈΠΊΠ°ΡΠΈΠΈ ΠΈ Π±Π°ΡΠ½ΠΎΠΉ ΡΡΠΎΠΉΠΊΠΈ, ΠΊΠΎΡΠΎΡΡΡ ΠΌΠΎΠΆΠ½ΠΎ ΡΡΡΠ°Π½ΠΎΠ²ΠΈΡΡ Π½Π° ΠΌΠ΅ΡΡΠ΅ ΠΏΠΎΠ΄ΠΎΠΊΠΎΠ½Π½ΠΈΠΊΠ°, Π½Π°ΡΠ»Π°ΠΆΠ΄Π°ΡΡΡΡ ΡΡΠ΄Π½ΡΠΌ ΠΎΠ±Π·ΠΎΡΠΎΠΌ, Π΅ΡΠ»ΠΈ ΠΏΠ΅ΡΠ΅ΠΌΠ΅ΡΡΠΈΡΡ Π±Π°ΡΠ°ΡΠ΅Ρ. ΠΡΡ ΠΎΠ΄Ρ ΠΈΠ· Π²ΡΡΠ΅ΡΠΊΠ°Π·Π°Π½Π½ΠΎΠ³ΠΎ, ΠΌΠΎΠΆΠ½ΠΎ Π·Π°ΠΊΠ»ΡΡΠΈΡΡ, ΡΡΠΎ ΠΎΠΊΠ½ΠΎ β ΡΡΠΎ, Π½Π΅ΡΠΎΠΌΠ½Π΅Π½Π½ΠΎ, Π²ΡΠ³ΠΎΠ΄Π½ΠΎΠ΅ ΠΌΠ΅ΡΡΠΎ Π² Π²Π°ΡΠ΅ΠΉ ΠΊΡΡ Π½Π΅, ΠΊΠΎΡΠΎΡΠΎΠ΅ ΠΌΠΎΠΆΠ½ΠΎ ΠΈΡΠΏΠΎΠ»ΡΠ·ΠΎΠ²Π°ΡΡ Π²ΡΠ΅Π²ΠΎΠ·ΠΌΠΎΠΆΠ½ΡΠΌΠΈ ΡΠΏΠΎΡΠΎΠ±Π°ΠΌΠΈ ΠΈ ΠΎΠ±ΡΠ³ΡΡΠ²Π°ΡΡ, ΠΊΠ°ΠΊ ΡΠΎΠ»ΡΠΊΠΎ ΠΏΠΎΠΆΠ΅Π»Π°Π΅Ρ Π²Π°ΡΠ° ΡΠ°Π½ΡΠ°Π·ΠΈΡ, Π° ΠΏΡΠ΅Π΄Π»ΠΎΠΆΠ΅Π½Π½ΡΠ΅ ΠΏΡΠΈΠΌΠ΅ΡΡ ΠΎΡΠΎΡΠΌΠ»Π΅Π½ΠΈΡ ΡΡΠΎΠΌΡ ΠΏΡΡΠΌΡΠ΅ Π΄ΠΎΠΊΠ°Π·Π°ΡΠ΅Π»ΡΡΡΠ²Π°. ΠΠ°ΠΌ ΠΆΠ΅Π»Π°Π΅ΠΌ ΡΡΠΏΠ΅Ρ ΠΎΠ² Π² ΠΎΡΠΎΡΠΌΠ»Π΅Π½ΠΈΠΈ Π²Π°ΡΠ΅Π³ΠΎ ΠΏΠΎΠΌΠ΅ΡΠ΅Π½ΠΈΡ! Π ΠΏΠΎΠΌΠ½ΠΈΡΠ΅, ΠΈΡΠΏΠΎΠ»ΡΠ·ΡΠΉΡΠ΅ ΡΠ΅ ΠΏΡΠ΅ΠΈΠΌΡΡΠ΅ΡΡΠ²Π°, ΠΊΠΎΡΠΎΡΡΠ΅ Π²Π°ΠΌ Π΄ΠΎΡΡΡΠΏΠ½Ρ!
ΠΡΠ΅ ΠΏΡΠΎ ΡΠ³Π»ΠΎΠ²ΡΠ΅ ΠΊΡΡ Π½ΠΈ: ΠΊΠ°ΠΊ Π²ΡΠ±ΡΠ°ΡΡ ΡΠ΄ΠΎΠ±Π½ΡΠΉ Π³Π°ΡΠ½ΠΈΡΡΡ, ΡΠ΅ΠΊΡΠ΅ΡΡ Π΄ΠΈΠ·Π°ΠΉΠ½Π° ΠΈ ΠΏΠ»Π°Π½ΠΈΡΠΎΠ²ΠΊΠΈ, ΡΠ΅Π°Π»ΡΠ½ΡΠ΅ ΡΠΎΡΠΎ ΠΈΠ½ΡΠ΅ΡΡΠ΅ΡΠΎΠ² Ρ Π-ΠΎΠ±ΡΠ°Π·Π½ΠΎΠΉ ΠΊΡΡ Π½Π΅ΠΉ β Π·Π΄Π΅ΡΡ.
ΠΠ΅Π»Π°Ρ Π³Π»ΡΠ½ΡΠ΅Π²Π°Ρ ΠΊΡΡ Π½Ρ ΠΈΠ· Π°ΠΊΡΠΈΠ»Π° (12 ΠΊΠ². ΠΌΠ΅ΡΡΠΎΠ²)
Π£Π³Π»ΠΎΠ²Π°Ρ (L- ΠΈΠ»ΠΈ Π-ΠΎΠ±ΡΠ°Π·Π½Π°Ρ) β ΡΠ°ΠΌΡΠΉ ΠΏΠΎΠΏΡΠ»ΡΡΠ½ΡΠΉ Π²Π°ΡΠΈΠ°Π½Ρ ΠΊΡΡ ΠΎΠ½Π½ΠΎΠΉ ΠΏΠ»Π°Π½ΠΈΡΠΎΠ²ΠΊΠΈ, ΠΏΡΠΈ ΠΊΠΎΡΠΎΡΠΎΠΌ ΠΌΠ΅Π±Π΅Π»Ρ ΡΠ°ΡΠΏΠΎΠ»ΠΎΠΆΠ΅Π½Π° ΠΏΠ΅ΡΠΏΠ΅Π½Π΄ΠΈΠΊΡΠ»ΡΡΠ½ΠΎ Π²Π΄ΠΎΠ»Ρ Π΄Π²ΡΡ ΡΠΌΠ΅ΠΆΠ½ΡΡ ΡΡΠ΅Π½. ΠΠ½Π° Ρ ΠΎΡΠΎΡΠ° Π΄Π»Ρ ΡΡΠ΅Π΄Π½Π΅ΠΉ ΠΈ ΠΌΠ°Π»Π΅Π½ΡΠΊΠΎΠΉ ΠΊΡΡ Π½ΠΈ, ΠΏΠΎΡΠΎΠΌΡ ΡΡΠΎ ΠΏΠΎΠ·Π²ΠΎΠ»ΡΠ΅Ρ Π΄Π°ΠΆΠ΅ ΡΠΊΡΠΎΠΌΠ½ΡΡ ΠΏΠ»ΠΎΡΠ°Π΄Ρ ΠΈΡΠΏΠΎΠ»ΡΠ·ΠΎΠ²Π°ΡΡ ΡΡΡΠ΅ΠΊΡΠΈΠ²Π½ΠΎ. ΠΠΎ ΠΏΠ΅ΡΠ΅Π΄ ΡΠ΅ΠΌ, ΠΊΠ°ΠΊ ΠΈΠ΄ΡΠΈ Π² ΡΠ°Π»ΠΎΠ½ ΠΈ Π·Π°ΠΊΠ°Π·ΡΠ²Π°ΡΡ ΡΠ³Π»ΠΎΠ²ΠΎΠΉ Π³Π°ΡΠ½ΠΈΡΡΡ, ΠΏΡΠΈΡΠΌΠΎΡΡΠΈΡΠ΅ΡΡ ΠΈ ΠΊ Π΄ΡΡΠ³ΠΈΠΌ ΡΠΏΠΎΡΠΎΠ±Π°ΠΌ ΡΠ°ΡΡΡΠ°Π½ΠΎΠ²ΠΊΠΈ ΠΌΠ΅Π±Π΅Π»ΠΈ. ΠΠΎΠ·ΠΌΠΎΠΆΠ½ΠΎ, Π»ΠΈΠ±ΠΎ ΠΏΠΎΠ΄ΠΎΠΉΠ΄Π΅Ρ Π²Π°ΠΌ Π³ΠΎΡΠ°Π·Π΄ΠΎ Π»ΡΡΡΠ΅.
ΠΡΠΈΡΠ΅ΡΠΈΠΈ Π΄Π»Ρ ΠΏΠΎΠ΄Π±ΠΎΡΠ° ΠΎΠΊΠΎΠ½Π½ΠΎΠ³ΠΎ ΠΏΡΠΎΠ΅ΠΌΠ° Π² ΡΠ°ΡΡΠ½ΡΠΉ Π΄ΠΎΠΌ
ΠΠ°ΠΊΠΈΠ΅ ΠΎΠΊΠ½Π° Π»ΡΡΡΠ΅ ΠΏΠΎΠ΄ΠΎΠΉΠ΄ΡΡ Π΄Π»Ρ Π·Π°Π³ΠΎΡΠΎΠ΄Π½ΠΎΠ³ΠΎ Π΄ΠΎΠΌΠ°? Π Π°Π·Π½ΠΎΠΎΠ±ΡΠ°Π·ΠΈΠ΅ Π²ΡΠ±ΠΎΡΠ° ΠΏΠΎΠ·Π²ΠΎΠ»ΡΠ΅Ρ Π½Π°ΠΉΡΠΈ ΠΈΠ΄Π΅Π°Π»ΡΠ½ΡΠΉ Π²Π°ΡΠΈΠ°Π½Ρ, Π½ΠΎ ΡΡΠΎ ΠΆΠ΅ ΡΡΠ»ΠΎΠ²ΠΈΠ΅ Π΅Π³ΠΎ ΡΡΠ»ΠΎΠΆΠ½ΡΠ΅Ρ.
ΠΠΎΠ·Π½ΠΈΠΊΠ°Π΅Ρ Π²ΠΎΠΏΡΠΎΡ, ΠΏΠΎ ΠΊΠ°ΠΊΠΈΠΌ ΠΏΡΠ°Π²ΠΈΠ»Π°ΠΌ Π²ΡΠ±ΠΈΡΠ°ΡΡ ΠΏΠ»Π°ΡΡΠΈΠΊΠΎΠ²ΡΠ΅ ΠΊΠΎΠ½ΡΡΡΡΠΊΡΠΈΠΈ. ΠΡΠ²Π΅Ρ Π½Π° Π½Π΅Π³ΠΎ ΠΌΠΎΠΆΠ½ΠΎ Π½Π°ΠΉΡΠΈ ΠΏΠΎΡΠ»Π΅ ΠΎΠ·Π½Π°ΠΊΠΎΠΌΠ»Π΅Π½ΠΈΡ Ρ ΠΎΡΠΎΠ±Π΅Π½Π½ΠΎΡΡΡΠΌΠΈ ΡΠ°Π·Π½ΡΡ Π²Π°ΡΠΈΠ°Π½ΡΠΎΠ²
Π’Π°ΠΊΠΆΠ΅ ΠΌΠΎΠΆΠ½ΠΎ ΠΎΠ±ΡΠ°ΡΠΈΡΡ Π²Π½ΠΈΠΌΠ°Π½ΠΈΠ΅ Π½Π° ΡΠΎΠ²Π΅ΡΡ ΡΠΊΡΠΏΠ΅ΡΡΠΎΠ². ΠΠ΅ΡΠ²ΡΠΌ ΠΌΠΎΠΌΠ΅Π½ΡΠΎΠΌ, ΠΊΠΎΡΠΎΡΡΠΉ Π½Π΅ΠΎΠ±Ρ ΠΎΠ΄ΠΈΠΌΠΎ ΡΡΠΈΡΡΠ²Π°ΡΡ, ΡΠ²Π»ΡΠ΅ΡΡΡ ΡΠ΅ΠΏΠ»ΠΎΠΈΠ·ΠΎΠ»ΡΡΠΈΡ
Π§ΡΠΎ ΠΊΠ°ΡΠ°Π΅ΡΡΡ ΠΈΠ·ΠΎΠ»ΠΈΡΠΎΠ²Π°Π½ΠΈΡ ΠΎΡ ΡΡΠΌΠ°, ΡΠΎ ΡΡΠΎ Π½Π΅ ΡΠ°ΠΌΡΠΉ Π²Π°ΠΆΠ½ΡΠΉ ΠΊΡΠΈΡΠ΅ΡΠΈΠΉ
ΠΠ΅ΡΠ²ΡΠΌ ΠΌΠΎΠΌΠ΅Π½ΡΠΎΠΌ, ΠΊΠΎΡΠΎΡΡΠΉ Π½Π΅ΠΎΠ±Ρ ΠΎΠ΄ΠΈΠΌΠΎ ΡΡΠΈΡΡΠ²Π°ΡΡ, ΡΠ²Π»ΡΠ΅ΡΡΡ ΡΠ΅ΠΏΠ»ΠΎΠΈΠ·ΠΎΠ»ΡΡΠΈΡ. Π§ΡΠΎ ΠΊΠ°ΡΠ°Π΅ΡΡΡ ΠΈΠ·ΠΎΠ»ΠΈΡΠΎΠ²Π°Π½ΠΈΡ ΠΎΡ ΡΡΠΌΠ°, ΡΠΎ ΡΡΠΎ Π½Π΅ ΡΠ°ΠΌΡΠΉ Π²Π°ΠΆΠ½ΡΠΉ ΠΊΡΠΈΡΠ΅ΡΠΈΠΉ.
ΠΠ»Ρ Π΄Π°ΡΠΈ Π±ΠΎΠ»ΡΡΡΡ ΡΠΎΠ»Ρ ΠΈΠ³ΡΠ°Π΅Ρ ΠΌΠ°ΡΠ΅ΡΠΈΠ°Π» ΡΠ°ΠΌΡ. ΠΡΠ»ΠΈ Π²Ρ ΡΡΠΎΠΈΡΠ΅ ΠΏΠ΅ΡΠ΅Π΄ Π²ΡΠ±ΠΎΡΠΎΠΌ, ΠΊΠ°ΠΊΠΈΠ΅ ΠΎΠ±ΡΠ°ΠΌΠ»Π΅Π½ΠΈΡ Π»ΡΡΡΠ΅ ΡΡΠ°Π²ΠΈΡΡ (ΠΈΠ· ΠΠΠ₯ ΠΈΠ»ΠΈ Π°Π»ΡΠΌΠΈΠ½ΠΈΠ΅Π²ΡΠ΅), ΡΠΎ ΠΏΡΠ΅Π΄ΠΏΠΎΡΡΠΈΡΠ΅Π»ΡΠ½Π΅Π΅ Π±ΡΠ΄Π΅Ρ ΠΏΠ΅ΡΠ²ΡΠΉ Π²Π°ΡΠΈΠ°Π½Ρ. ΠΠΎ Ρ Π°ΡΠ°ΠΊΡΠ΅ΡΠΈΡΡΠΈΠΊΠ°ΠΌ ΠΎΠ½ΠΈ ΡΡΡΠ΅ΡΡΠ²Π΅Π½Π½ΠΎ ΠΏΡΠ΅Π²ΠΎΡΡ ΠΎΠ΄ΡΡ Π°Π»ΡΠΌΠΈΠ½ΠΈΠ΅Π²ΡΠ΅ Π°Π½Π°Π»ΠΎΠ³ΠΈ. ΠΡΠΎΠ±Π΅Π½Π½ΠΎ ΡΡΠΎ ΡΠΊΠ°Π·ΡΠ²Π°Π΅ΡΡΡ Π½Π° Π³Π»Π°Π²Π½ΠΎΠΌ ΠΊΡΠΈΡΠ΅ΡΠΈΠΈ β ΠΠΠ.
Π§ΡΠΎΠ±Ρ ΡΠ°Π·ΠΎΠ±ΡΠ°ΡΡΡΡ, ΠΊΠ°ΠΊΠΎΠΉ ΡΠ°Π·ΠΌΠ΅Ρ ΠΎΠΊΠΎΠ½ ΡΠ΄Π΅Π»Π°ΡΡ Π² ΡΠ°ΡΡΠ½ΠΎΠΌ Π΄ΠΎΠΌΠ΅, ΡΡΠΎΠΈΡ ΠΈΠ·ΡΡΠΈΡΡ ΡΠ°Π·Π»ΠΈΡΠ½ΡΠ΅ ΠΎΠ±ΡΠ°Π·ΡΡ. ΠΡΠΎ ΡΡΠ»ΠΎΠ²ΠΈΠ΅ ΠΏΠΎΠ·Π²ΠΎΠ»ΠΈΡ ΡΠ΄Π΅Π»Π°ΡΡ ΠΎΠ±ΡΠ°ΠΌΠ»Π΅Π½ΠΈΠ΅ Π²Π°ΡΠ΅Π³ΠΎ Π΄ΠΎΠΌΠ° Π³Π°ΡΠΌΠΎΠ½ΠΈΡΠ½ΡΠΌ Π²ΠΎ Π²ΡΠ΅Ρ ΠΎΡΠ½ΠΎΡΠ΅Π½ΠΈΡΡ .
ΠΠ°ΠΊΠΈΠ΅ ΡΠ°Π·ΠΌΠ΅ΡΡ ΠΎΠΊΠΎΠ½ Π²ΡΠ±ΡΠ°ΡΡ Π΄Π»Ρ ΡΠ°ΡΡΠ½ΠΎΠ³ΠΎ Π΄ΠΎΠΌΠ°? Π ΡΠ΅Π»ΡΡ ΡΠΊΠΎΠ½ΠΎΠΌΠΈΠΈ ΡΠ°ΡΡΠΎ ΠΈΡΠΏΠΎΠ»ΡΠ·ΡΡΡΡΡ Π±ΠΎΠ»ΡΡΠΈΠ΅ ΠΎΠΊΠ½Π°, ΠΊΠΎΡΠΎΡΡΠ΅ ΡΠΎΡ ΡΠ°Π½ΡΡΡ ΠΌΠ½ΠΎΠ³ΠΎ ΡΠ²Π΅ΡΠ°, Π½Π°ΠΏΡΠΈΠΌΠ΅Ρ ΠΏΠ°Π½ΠΎΡΠ°ΠΌΠ½ΡΠ΅ ΠΎΠΊΠ½Π° ΠΎΡΠ»ΠΈΡΠ½ΠΎΠ΅ ΡΠ΅ΡΠ΅Π½ΠΈΠ΅ Π΄Π»Ρ ΡΠ°ΡΡΠ½ΠΎΠ³ΠΎ Π΄ΠΎΠΌΠ°. ΠΡ ΠΏΡΠ΅Π΄Π½Π°Π·Π½Π°ΡΠ΅Π½ΠΈΠ΅ ΡΠ°ΠΊΠΆΠ΅ Π·Π°ΠΊΠ»ΡΡΠ°Π΅ΡΡΡ Π² ΡΠΎΠ·Π΄Π°Π½ΠΈΠΈ ΡΡΡΠ΅ΡΠΈΡΠ½ΠΎΡΡΠΈ Π²Π½Π΅ΡΠ½Π΅Π³ΠΎ ΠΎΠ±Π»ΠΈΠΊΠ° ΠΈ ΡΡΡΠ½ΠΎΠ³ΠΎ ΠΏΡΠΎΡΡΡΠ°Π½ΡΡΠ²Π° Π²Π½ΡΡΡΠΈ Π½Π΅Π³ΠΎ.
ΠΡΠ½ΠΎΠ²Π½ΡΠ΅ ΠΏΡΠ°Π²ΠΈΠ»Π° Π·ΠΎΠ½ΠΈΡΠΎΠ²Π°Π½ΠΈΡ ΠΊΠ²Π°ΡΡΠΈΡΡ-ΡΡΡΠ΄ΠΈΠΈ 25β30 ΠΊΠ². ΠΌ
Π Π°Π·ΠΌΠ΅ΡΠ°Ρ ΠΆΠΈΠ»ΠΎΠ΅ ΠΏΡΠΎΡΡΡΠ°Π½ΡΡΠ²ΠΎ, Π²Π°ΠΆΠ½ΠΎ Π½Π΅ ΡΠΏΡΡΡΠΈΡΡ ΠΈΠ· Π²ΠΈΠ΄Ρ Π½ΠΈ ΠΎΠ΄Π½Ρ ΡΡΠ½ΠΊΡΠΈΠΎΠ½Π°Π»ΡΠ½ΡΡ ΠΎΠ±Π»Π°ΡΡΡ:
- ΠΏΡΠΈΠ³ΠΎΡΠΎΠ²Π»Π΅Π½ΠΈΠ΅ ΠΈ ΠΏΡΠΈΠ΅ΠΌ ΠΏΠΈΡΠΈ;
- ΠΏΡΠΈΠ΅ΠΌ Π³ΠΎΡΡΠ΅ΠΉ, ΠΎΡΠ΄ΡΡ ;
- ΡΠ°Π±ΠΎΡΠ°;
- ΡΠΎΠ½.
ΠΠ½ΠΈ ΠΌΠΎΠ³ΡΡ ΡΠΎΠ²ΠΌΠ΅ΡΠ°ΡΡΡΡ ΠΈ Π½Π°ΠΊΠ»Π°Π΄ΡΠ²Π°ΡΡΡΡ.
Π’Π°ΠΊΠΆΠ΅ Π±ΠΎΠ»ΡΡΠ΅ Π²ΠΎΠ·ΠΌΠΎΠΆΠ½ΠΎΡΡΠ΅ΠΉ ΠΈΡΠΏΠΎΠ»ΡΠ·ΠΎΠ²Π°ΡΡ Π² ΠΊΠ°ΡΠ΅ΡΡΠ²Π΅ ΡΠ°Π·Π³ΡΠ°Π½ΠΈΡΠΈΡΠ΅Π»Π΅ΠΉ ΡΠΊΠ°ΡΡ β Π² ΠΠ½ΡΠ΅ΡΠ½Π΅ΡΠ΅ Π΅ΡΡΡ Π±ΠΎΠ»ΡΡΠΎΠ΅ ΠΊΠΎΠ»ΠΈΡΠ΅ΡΡΠ²ΠΎ ΡΠ΅Π°Π»ΡΠ½ΡΡ ΡΠΎΡΠΎ ΡΠ°ΠΊΠΎΠ³ΠΎ Π·ΠΎΠ½ΠΈΡΠΎΠ²Π°Π½ΠΈΡ ΡΡΡΠ΄ΠΈΠΉ Π² 25β30 ΠΊΠ²Π°Π΄ΡΠ°ΡΠ½ΡΡ ΠΌΠ΅ΡΡΠΎΠ².
ΠΡΠ΅ ΠΎΠ΄ΠΈΠ½ ΠΏΡΠΈΠ½ΡΠΈΠΏ β ΡΡΠΈΠ»ΠΈΡΡΠΈΡΠ΅ΡΠΊΠ°Ρ ΠΎΠ΄Π½ΠΎΡΠΎΠ΄Π½ΠΎΡΡΡ. ΠΠΈΠ·Π°ΠΉΠ½Π΅ΡΡ ΡΠΎΠ²Π΅ΡΡΡΡ ΠΎΡΠΎΡΠΌΠ»ΡΡΡ ΠΊΠ²Π°ΡΡΠΈΡΡ Π² Π΅Π΄ΠΈΠ½ΠΎΠΌ ΡΡΠΈΠ»Π΅, ΡΠ°ΠΊΠΈΠΌ ΠΎΠ±ΡΠ°Π·ΠΎΠΌ, Π³Π°ΡΠΌΠΎΠ½ΠΈΡΠ½ΡΠ΅ ΡΠ»Π΅ΠΌΠ΅Π½ΡΡ ΠΈΠ½ΡΠ΅ΡΡΠ΅ΡΠ° Π±ΡΠ΄ΡΡ Π²Π·Π°ΠΈΠΌΠΎΠ΄ΠΎΠΏΠΎΠ»Π½ΡΡΡ Π΄ΡΡΠ³ Π΄ΡΡΠ³Π°. ΠΠΎΠ»ΡΡΠΈΠ΅ ΡΠ°Π·Π»ΠΈΡΠΈΡ Π² ΡΡΠΈΠ»Π΅ ΠΎΡΠΎΡΠΌΠ»Π΅Π½ΠΈΡ Π±ΡΠ΄ΡΡ ΡΡΠΎΠΌΠ»ΡΡΡ Π³Π»Π°Π·, ΡΠΎΠ·Π΄Π°Π²Π°ΡΡ Π²ΠΈΠ·ΡΠ°Π»ΡΠ½ΡΠΉ Ρ Π°ΠΎΡ.Β

Π’Π°ΠΊ ΠΆΠ΅, ΠΊΠ°ΠΊ Π² ΡΠ»ΡΡΠ°Π΅ Ρ ΠΌΠ°Π»ΠΎΠ³Π°Π±Π°ΡΠΈΡΠΊΠΎΠΉ, Π² ΠΊΡΡΠΏΠ½ΠΎΠΉ ΡΡΡΠ΄ΠΈΠΈ ΡΠ΅ΠΊΠΎΠΌΠ΅Π½Π΄ΡΠ΅ΡΡΡ ΠΌΠ°ΠΊΡΠΈΠΌΠ°Π»ΡΠ½ΠΎ ΠΈΡΠΏΠΎΠ»ΡΠ·ΠΎΠ²Π°ΡΡ Π²ΡΠ΅ ΠΈΠΌΠ΅ΡΡΠ΅Π΅ΡΡ ΠΏΡΠΎΡΡΡΠ°Π½ΡΡΠ²ΠΎ, ΠΈΠ·Π±Π΅Π³Π°Ρ Π·Π°Ρ Π»Π°ΠΌΠ»Π΅Π½Π½ΠΎΡΡΠΈ. ΠΡΠΎΠΌΡ ΠΏΠΎΠΌΠΎΠ³ΡΡ:
- Π²ΡΡΡΠΎΠ΅Π½Π½Π°Ρ ΠΌΠ΅Π±Π΅Π»Ρ (Π½Π°ΠΏΡΠΈΠΌΠ΅Ρ, ΠΌΠ΅ΡΡΠ° Π΄Π»Ρ Ρ ΡΠ°Π½Π΅Π½ΠΈΡ);
- ΠΌΠ΅Π±Π΅Π»Ρ-ΡΡΠ°Π½ΡΡΠΎΡΠΌΠ΅Ρ (ΡΠ°ΡΠΊΠ»Π°Π΄ΡΠ²Π°ΡΡΠΈΠ΅ΡΡ Π΄ΠΈΠ²Π°Π½Ρ, ΠΊΡΠΎΠ²Π°ΡΠΈ);
- ΡΠ°Π·Π½ΡΠ΅ ΡΡΠΎΠ²Π½ΠΈ (ΡΠΎΠ·Π΄Π°Π½ΠΈΠ΅ ΠΆΠΈΠ»ΡΡ Π°Π½ΡΡΠ΅ΡΠΎΠ»Π΅ΠΉ, ΠΏΠΎΠ΄ΠΈΡΠΌΡ ΡΠΎ Π²ΡΡΡΠΎΠ΅Π½Π½ΡΠΌΠΈ ΡΡΠΈΠΊΠ°ΠΌΠΈ, Π΄Π²ΡΡ ΡΡΡΡΡΠ½ΡΠ΅ ΠΊΡΠΎΠ²Π°ΡΠΈ ΠΈ ΠΏΡ.).
Π¦Π²Π΅ΡΠΎΠ²ΡΠ΅ ΡΠ΅ΡΠ΅Π½ΠΈΡ
ΠΠ· ΡΠΎΠΎΠ±ΡΠ°ΠΆΠ΅Π½ΠΈΠΉ ΠΏΡΠ°ΠΊΡΠΈΡΠ½ΠΎΡΡΠΈ Π»ΡΡΡΠ΅ ΠΎΡΡΠ°Π½ΠΎΠ²ΠΈΡΡΡΡ Π½Π° Π½Π΅ΠΌΠ°ΡΠΊΠΈΡ ΠΎΡΡΠ΅Π½ΠΊΠ°Ρ , ΠΏΡΠΈΡΠΎΠ΄Π½ΠΎΠΉ Π³Π°ΠΌΠΌΠ΅ ΠΈΠ»ΠΈ ΡΠ΅ΠΌΠ½ΡΡ ΡΠΎΠ½Π°Ρ . ΠΠ΄Π½Π°ΠΊΠΎ Π΄Π»Ρ ΠΊΡΡ Π½ΠΈ Π² ΡΡΠΈΠ»Π΅ ΠΏΡΠΎΠ²Π°Π½Ρ ΠΏΡΠ΅Π΄ΠΏΠΎΡΡΠΈΡΠ΅Π»ΡΠ½Π°Ρ ΠΏΠ°ΡΡΠ΅Π»ΡΠ½Π°Ρ Π³Π°ΠΌΠΌΠ° Ρ ΠΏΡΠ΅ΠΎΠ±Π»Π°Π΄Π°Π½ΠΈΠ΅ΠΌ Π±Π΅Π»ΠΎΠ³ΠΎ, Π±Π΅ΠΆΠ΅Π²ΠΎΠ³ΠΎ, ΠΎΠ»ΠΈΠ²ΠΊΠΎΠ²ΠΎΠ³ΠΎ ΠΈΠ»ΠΈ ΡΠ²Π΅ΡΠ»ΠΎΠ³ΠΎ Π±ΠΈΡΡΠ·ΠΎΠ²ΠΎΠ³ΠΎ ΡΠ²Π΅ΡΠ°. ΠΠ»Ρ ΠΊΠ»Π°ΡΡΠΈΠΊΠ° ΠΎΡΠ»ΠΈΡΠ½ΠΎ ΠΏΠΎΠ΄ΠΎΠΉΠ΄Π΅Ρ, ΠΊΠ°ΠΊ ΡΠ²Π΅ΡΠ»Π°Ρ, ΡΠ°ΠΊ ΠΈ ΡΠ΅ΠΌΠ½Π°Ρ ΠΏΠ°Π»ΠΈΡΡΠ°.
Π ΠΊΠ°ΡΠ΅ΡΡΠ²Π΅ ΡΡΠΊΠΎΠ³ΠΎ ΠΏΡΡΠ½Π° ΠΌΠΎΠΆΠ½ΠΎ ΠΈΡΠΏΠΎΠ»ΡΠ·ΠΎΠ²Π°ΡΡ Π΄Π΅ΠΊΠΎΡΠ°ΡΠΈΠ²Π½ΡΠ΅ ΡΠ»Π΅ΠΌΠ΅Π½ΡΡ ΠΈΠ»ΠΈ ΠΎΠ±ΠΈΠ²ΠΊΡ ΠΌΠ΅Π±Π΅Π»ΠΈ. Π ΡΠΎΠ²ΡΠ΅ΠΌΠ΅Π½Π½ΡΡ ΡΡΠΈΠ»ΡΡ ΠΏΡΠ°ΠΊΡΠΈΡΠ΅ΡΠΊΠΈ Π½Π΅Ρ ΠΎΠ³ΡΠ°Π½ΠΈΡΠ΅Π½ΠΈΠΉ: ΠΌΠΎΠ³ΡΡ Π±ΡΡΡ ΠΈΡΠΏΠΎΠ»ΡΠ·ΠΎΠ²Π°Π½Ρ Π»ΡΠ±ΡΠ΅ ΠΎΡΡΠ΅Π½ΠΊΠΈ, Π²ΠΏΠ»ΠΎΡΡ Π΄ΠΎ ΠΊΠΈΡΠ»ΠΎΡΠ½ΠΎΠΉ Π³Π°ΠΌΠΌΡ.

Π ΡΠΎΠ²ΡΠ΅ΠΌΠ΅Π½Π½ΡΡ
ΠΈΠ½ΡΠ΅ΡΡΠ΅ΡΠ°Ρ
ΠΌΠΎΠΆΠ½ΠΎ ΠΈΡΠΏΠΎΠ»ΡΠ·ΠΎΠ²Π°ΡΡ ΡΡΠΊΠΈΠ΅ ΡΠ²Π΅ΡΠΎΠ²ΡΠ΅ Π°ΠΊΡΠ΅Π½ΡΡ.
ΠΠΎΡΡΠΈΠ½Π°Ρ ΡΡΠΎΠ»ΠΎΠ²Π°Ρ Π² ΠΌΠ°Π»Π΅Π½ΡΠΊΠΎΠΉ ΠΊΠ²Π°ΡΡΠΈΡΠ΅
ΠΠ΅Π±ΠΎΠ»ΡΡΠΎΠΉ ΠΌΠ΅ΡΡΠ°ΠΆ ΠΈ ΠΌΠ°Π»ΠΎΠ΅ ΠΊΠΎΠ»ΠΈΡΠ΅ΡΡΠ²ΠΎ ΠΊΠΎΠΌΠ½Π°Ρ Π½Π΅ ΠΏΠΎΠ·Π²ΠΎΠ»ΡΡΡ ΡΠ΄Π΅Π»Π°ΡΡ ΡΡΠΎΠ»ΠΎΠ²ΡΡ ΠΎΡΠ΄Π΅Π»ΡΠ½ΠΎ, ΠΈ ΠΏΡΠΈΡ ΠΎΠ΄ΠΈΡΡΡ ΡΡΡΠ°Π½Π°Π²Π»ΠΈΠ²Π°ΡΡ Π΅Π΅ Π² Π³ΠΎΡΡΠΈΠ½ΡΠΉ ΡΡΠ°ΡΡΠΎΠΊ. Π’Π°ΠΊΠ°Ρ ΠΏΠ»Π°Π½ΠΈΡΠΎΠ²ΠΊΠ° Π½Π΅ Π²ΡΠ΅Π³Π΄Π° ΠΏΠ»ΠΎΡ Π°, ΠΌΠΎΠΆΠ½ΠΎ Π²ΡΠ±ΡΠ°ΡΡ ΡΠ΄ΠΎΠ±Π½ΠΎΠ΅ ΡΠ°ΡΠΏΠΎΠ»ΠΎΠΆΠ΅Π½ΠΈΠ΅ Π΄Π»Ρ Π²ΡΠ΅ΠΉ ΠΌΠ΅Π±Π΅Π»ΠΈ ΠΈ Π΄Π°ΠΆΠ΅ ΡΡΠΊΠΎΠ½ΠΎΠΌΠΈΡΡ ΠΏΡΠΎΡΡΡΠ°Π½ΡΡΠ²ΠΎ.

Π‘ΠΎΠ²ΠΌΠ΅ΡΠ΅Π½ΠΈΠ΅ Π² ΠΎΠ΄Π½ΠΎΠΉ ΠΊΠΎΠΌΠ½Π°ΡΠ΅ ΠΎΠ±Π΅Π΄Π΅Π½Π½ΠΎΠΉ Π·ΠΎΠ½Ρ Ρ ΠΌΠ΅ΡΡΠΎΠΌ Π΄Π»Ρ ΠΎΡΠ΄ΡΡ Π° ΠΏΡΠ΅Π΄ΠΎΡΡΠ°Π²Π»ΡΠ΅Ρ Π±ΠΎΠ»ΡΡΠ΅ Π²ΠΎΠ·ΠΌΠΎΠΆΠ½ΠΎΡΡΠ΅ΠΉ Π΄Π»Ρ ΠΎΠ±ΡΠ΅Π½ΠΈΡ Π² ΠΊΡΡΠ³Ρ ΡΠ΅ΠΌΡΠΈ
ΠΡΠ»ΠΈ Π΄Π²Π° ΠΏΠΎΠΌΠ΅ΡΠ΅Π½ΠΈΡ Π½Π°Ρ ΠΎΠ΄ΡΡΡΡ Π²ΠΌΠ΅ΡΡΠ΅, ΡΠΎ Π½ΡΠΆΠ½ΠΎ Π²ΡΠ±ΠΈΡΠ°ΡΡ ΡΠ²Π΅ΡΠ»ΡΡ ΠΌΠ΅Π±Π΅Π»Ρ Π΄Π»Ρ Π²ΠΈΠ·ΡΠ°Π»ΡΠ½ΠΎΠ³ΠΎ ΡΠ²Π΅Π»ΠΈΡΠ΅Π½ΠΈΡ ΠΏΡΠΎΡΡΡΠ°Π½ΡΡΠ²Π°.
Π§ΡΠΎΠ±Ρ ΠΌΠ°Π»Π΅Π½ΡΠΊΠ°Ρ ΠΊΠΎΠΌΠ½Π°ΡΠ° Π±ΡΠ»Π° ΡΡΠ½ΠΊΡΠΈΠΎΠ½Π°Π»ΡΠ½ΠΎΠΉ, ΠΌΠΎΠΆΠ½ΠΎ ΡΡΡΠ°Π½ΠΎΠ²ΠΈΡΡ ΡΠ³Π»ΠΎΠ²ΠΎΠΉ ΡΠΊΠ°Ρ, Π±Π°ΡΠ½ΡΡ ΡΡΠΎΠΉΠΊΡ ΠΈ Π½Π΅Π±ΠΎΠ»ΡΡΠΎΠΉ Π΄ΠΈΠ²Π°Π½ ΠΏΠ΅ΡΠ΅Π΄ ΡΠ΅Π»Π΅Π²ΠΈΠ·ΠΎΡΠΎΠΌ. Π’Π°ΠΊΠΎΠ΅ ΠΎΡΠΎΡΠΌΠ»Π΅Π½ΠΈΠ΅ Π±ΡΠ΄Π΅Ρ ΡΠ΄ΠΎΠ±Π½ΡΠΌ, Π³ΠΎΡΡΠΈΠ½Π°Ρ ΡΡΠΎΠ»ΠΎΠ²Π°Ρ ΡΠΌΠΎΠΆΠ΅Ρ ΠΏΠΎΠ»Π½ΠΎΡΡΡΡ Π²ΡΠΏΠΎΠ»Π½ΡΡΡ ΡΠ²ΠΎΡ ΡΡΠ½ΠΊΡΠΈΡ.

ΠΠ° ΡΠΎΡΠΎ ΠΏΡΠΈΠΌΠ΅Ρ ΠΎΠ±ΡΡΡΡΠΎΠΉΡΡΠ²Π° Π½Π΅Π±ΠΎΠ»ΡΡΠΎΠΉ Π³ΠΎΡΡΠΈΠ½ΠΎΠΉ-ΡΡΠΎΠ»ΠΎΠ²ΠΎΠΉ, Π²ΡΠΏΠΎΠ»Π½Π΅Π½Π½ΠΎΠΉ Π² ΡΠ²Π΅ΡΠ»ΡΡ ΡΠΎΠ½Π°Ρ
ΠΠ»Π°Π½ΠΈΡΠΎΠ²ΠΊΠ° ΠΈ ΡΠΎΡΡΠ°Π²Π»Π΅Π½ΠΈΠ΅ Π΄ΠΈΠ·Π°ΠΉΠ½-ΠΏΡΠΎΠ΅ΠΊΡΠ°
ΠΡΠΎΡΡΡΠ°Π½ΡΡΠ²ΠΎ Π½Π΅Π±ΠΎΠ»ΡΡΠΎΠΉ ΡΡΡΠ΄ΠΈΠΈ 30 ΠΊΠ². ΠΌ Π»Π΅Π³ΠΊΠΎ ΡΠ°ΡΡΠΈΡΠΈΡΡ ΠΈ ΡΠ΄Π΅Π»Π°ΡΡ ΡΡΡΠ½ΡΠΌ Ρ ΠΏΠΎΠΌΠΎΡΡΡ Π½Π΅Ρ ΠΈΡΡΡΡ Π΄ΠΈΠ·Π°ΠΉΠ½Π΅ΡΡΠΊΠΈΡ ΠΏΡΠΈΠ΅ΠΌΠΎΠ². ΠΡΠ±ΠΎΠ΅ Π½Π°ΡΠΈΠ½Π°Π½ΠΈΠ΅, ΠΎΡΠΎΠ±Π΅Π½Π½ΠΎ ΠΊΠ°ΡΠ°ΡΡΠ΅Π΅ΡΡ ΠΊΠ°ΡΠ΄ΠΈΠ½Π°Π»ΡΠ½ΡΡ Π²ΠΈΠ΄ΠΎΠΈΠ·ΠΌΠ΅Π½Π΅Π½ΠΈΠΉ Π² ΠΏΠΎΠΌΠ΅ΡΠ΅Π½ΠΈΠΈ, Π΄ΠΎΠ»ΠΆΠ½ΠΎ ΠΎΠΏΠΈΡΠ°ΡΡΡΡ Π½Π° Π·Π°ΡΠ°Π½Π΅Π΅ ΠΏΠΎΠ΄Π³ΠΎΡΠΎΠ²Π»Π΅Π½Π½ΡΠΉ ΠΏΠΎΠ΄ΡΠΎΠ±Π½ΡΠΉ ΠΏΠ»Π°Π½. ΠΠΎΠΆΠ½ΠΎ ΡΠΎΡΡΡΠ΄Π½ΠΈΡΠ°ΡΡ Ρ ΠΏΡΠΎΡΠ΅ΡΡΠΈΠΎΠ½Π°Π»ΡΠ½ΡΠΌΠΈ Π΄ΠΈΠ·Π°ΠΉΠ½Π΅ΡΠ°ΠΌΠΈ ΠΈΠ»ΠΈ Π΄ΠΎΠ²Π΅ΡΠΈΡΡΡΡ ΡΠ²ΠΎΠ΅ΠΌΡ Π²ΠΊΡΡΡ.
ΠΡΠ»ΠΈ ΠΏΠ΅ΡΠ΅ΠΏΠ»Π°Π½ΠΈΡΠΎΠ²ΠΊΠ° Π½Π°ΠΌΠ΅ΡΠ°Π΅ΡΡΡ Π² Π΄Π²ΡΡ ΠΊΠΎΠΌΠ½Π°ΡΠ½ΠΎΠΉ Ρ ΡΡΡΠ΅Π²ΠΊΠ΅, Π½Π΅ΠΎΠ±Ρ ΠΎΠ΄ΠΈΠΌΠΎ Π½Π°ΠΉΡΠΈ ΠΏΠ»Π°Π½ ΠΏΠΎΡΡΡΠΎΠΉΠΊΠΈ ΠΈ ΡΠ±Π΅Π΄ΠΈΡΡΡΡ Π² ΠΎΡΡΡΡΡΡΠ²ΠΈΠΈ Π½Π΅ΡΡΡΠΈΡ ΡΡΠ΅Π½. Π‘ΠΎΠ·Π΄Π°Π½ΠΈΠ΅ ΠΎΡΠ½ΠΎΠ²Π½ΠΎΠ³ΠΎ ΠΏΡΠΎΠ΅ΠΊΡΠ° Π΄ΠΎΠ»ΠΆΠ½ΠΎ ΠΏΡΠΎΠΈΡΡ ΠΎΠ΄ΠΈΡΡ Ρ ΡΡΠ°ΡΡΠΈΠ΅ΠΌ ΡΠ»Π΅Π΄ΡΡΡΠΈΡ Π΄ΠΎΠΊΡΠΌΠ΅Π½ΡΠΎΠ²:
- ΠΠ±ΠΌΠ΅ΡΠ½ΡΠΉ ΠΏΠ»Π°Π½. ΠΠ»ΠΎΡΠ°Π΄Ρ ΠΊΠ²Π°ΡΡΠΈΡΡ, ΠΏΡΠΈΠ»Π°Π³Π°Π΅ΠΌΡΠ΅ ΡΠΎΡΡΠ°Π²Π»ΡΡΡΠΈΠ΅ ΡΠ»Π΅ΠΌΠ΅Π½ΡΡ ΠΈΠ·ΠΌΠ΅ΡΡΡΡΡΡ Ρ ΠΏΠΎΠΌΠΎΡΡΡ ΡΠΎΠ²ΡΠ΅ΠΌΠ΅Π½Π½ΠΎΠ³ΠΎ ΠΎΠ±ΠΎΡΡΠ΄ΠΎΠ²Π°Π½ΠΈΡ.
- ΠΠ°ΠΏΠΈΡΠΈ ΠΎ Π²ΠΎΠ·Π²ΠΎΠ΄ΠΈΠΌΡΡ ΠΊΠΎΠ½ΡΡΡΡΠΊΡΠΈΡΡ . Π£ΠΏΡΠΎΡΠ°ΡΡ ΠΎΠ±ΡΡΡΡΠΎΠΉΡΡΠ²ΠΎ Π²ΡΡΠ°Π²Π½ΡΡ Π΄Π΅ΡΠ°Π»Π΅ΠΉ, Π²Π½ΠΎΠ²Ρ ΠΏΠΎΡΡΡΠΎΠ΅Π½Π½ΡΡ Π°ΡΠΎΠΊ, Π½ΠΈΡ.
- ΠΠ»Π°Π½ Π΄Π΅ΠΌΠΎΠ½ΡΠ°ΠΆΠ°. Π£ΠΊΠ°Π·ΡΠ²Π°Π΅Ρ Π½Π° ΡΡΠ°ΡΡΠΊΠΈ, ΠΏΡΠ΅Π΄Π½Π°Π·Π½Π°ΡΠ΅Π½Π½ΡΠ΅ ΠΊ ΡΠ½ΠΎΡΡ, ΠΏΠ΅ΡΠ΅ΠΏΠ»Π°Π½ΠΈΡΠΎΠ²ΠΊΠ΅.
- Π‘Ρ Π΅ΠΌΠ° ΠΏΠΎΡΠΎΠ»ΠΊΠ° ΠΈ ΡΡΠ΅Π½ Ρ ΠΎΡΠΌΠ΅ΡΠΊΠ°ΠΌΠΈ ΠΎ ΡΠ°Π·ΠΌΠ΅ΡΠ΅Π½ΠΈΠΈ ΡΠ»Π΅ΠΊΡΡΠΈΡΠ΅ΡΠΊΠΈΡ ΡΠΎΡΠ΅ΠΊ. Π Π΄ΠΎΠΊΡΠΌΠ΅Π½ΡΠ΅ ΠΎΡΡΠ°ΠΆΠ΅Π½ ΠΏΡΡΡ ΠΏΡΠΎΡ ΠΎΠ΄Π° Π½ΠΎΠ²ΠΎΠΉ ΠΏΡΠΎΠ²ΠΎΠ΄ΠΊΠΈ, ΡΠΎΠ·Π΅ΡΠΎΠΊ, Π²ΡΠΊΠ»ΡΡΠ°ΡΠ΅Π»Π΅ΠΉ, ΠΏΠΎΡΠΎΠ»ΠΎΡΠ½ΡΡ ΡΠ²Π΅ΡΠΈΠ»ΡΠ½ΠΈΠΊΠΎΠ² ΠΈ ΠΏΡΠΎΡΠ΅Π³ΠΎ, ΠΊΡΠΏΠΈΡΡ Π½Π΅Π΄ΠΎΡΠΎΠ³ΠΎΠΉ ΠΊΠ°Π±Π΅Π»Ρ ΠΠΠ ΠΌΠΎΠΆΠ½ΠΎ Π² ΠΈΠ½ΡΠ΅ΡΠ½Π΅Ρ- ΠΌΠ°Π³Π°Π·ΠΈΠ½Π΅.
- Π‘Ρ Π΅ΠΌΠ° ΡΠ°Π·Π²ΠΎΠ΄ΠΊΠΈ ΡΡΡΠ±. Π‘ΠΎΡΡΠ°Π²Π»ΡΠ΅ΡΡΡ ΠΏΡΠΈ Π½Π΅ΠΎΠ±Ρ ΠΎΠ΄ΠΈΠΌΠΎΡΡΠΈ ΠΏΠ΅ΡΠ΅ΠΏΠ»Π°Π½ΠΈΡΠΎΠ²ΠΊΠΈ ΡΠ°Π½ΡΠ·Π»Π°, Π΄ΠΎΠ±Π°Π²Π»Π΅Π½ΠΈΡ Π½ΠΎΠ²ΡΡ Π±Π°ΡΠ°ΡΠ΅ΠΉ.
ΠΡΠΎΡΡΡΠ°Π½ΡΡΠ²ΠΎ ΠΊΠ²Π°ΡΡΠΈΡΡ-ΡΡΡΠ΄ΠΈΠΈ Π΄ΠΎ 30 ΠΊΠ². ΠΌ Π΄ΠΎΠ»ΠΆΠ½ΠΎ Π±ΡΡΡ ΡΠ²Π΅ΡΠ»ΡΠΌ. ΠΡΠ»ΠΈ Π΅ΡΡΡ Π·Π°ΡΡΠ΅ΠΊΠ»Π΅Π½Π½ΡΠΉ Π±Π°Π»ΠΊΠΎΠ½, Π΅Π³ΠΎ ΠΌΠΎΠΆΠ½ΠΎ ΡΡΠ΅ΠΏΠ»ΠΈΡΡ ΠΈ ΡΠ΄Π΅Π»Π°ΡΡ ΡΠ°Π±ΠΎΡΡΡ Π·ΠΎΠ½Ρ ΠΈΠ»ΠΈ Π΄ΠΎΠ±Π°Π²ΠΈΡΡ ΡΡΡ ΠΏΠ»ΠΎΡΠ°Π΄Ρ ΠΊ ΠΎΠ±ΡΠ΅ΠΉ. ΠΠ΅ΡΠ΅Π΄ ΡΠ΅ΠΌ ΠΊΠ°ΠΊ ΡΠΎΡΡΠ°Π²Π»ΡΡΡ Π΄ΠΈΠ·Π°ΠΉΠ½ ΠΏΡΠΎΠ΅ΠΊΡ, Π½Π°Π΄ΠΎ ΠΏΠΎΠ΄ΠΎΠ±ΡΠ°ΡΡ Π½Π΅ΡΠΊΠΎΠ»ΡΠΊΠΎ Π²Π°ΡΠΈΠ°Π½ΡΠΎΠ² ΡΡΠΊΠΈΠ·ΠΎΠ², ΠΌΠ΅Π±Π΅Π»ΡΠ½ΡΡ Π³ΡΡΠΏΠΏ, ΡΠ²Π΅ΡΠΎΠ²ΡΡ ΠΏΠ°Π»ΠΈΡΡ.

ΠΡΠΈ ΡΠΎΡΡΠ°Π²Π»Π΅Π½ΠΈΠΈ ΠΏΡΠΎΠ΅ΠΊΡΠ° Π½Π΅ΠΎΠ±Ρ ΠΎΠ΄ΠΈΠΌΠΎ Π΄ΠΎΠ±ΠΈΡΡΡΡ ΡΠΎΡΠ½ΠΎΠ³ΠΎ ΡΠΎΠ΅Π΄ΠΈΠ½Π΅Π½ΠΈΡ Π²ΡΠ΅Ρ Π΄Π΅ΡΠ°Π»Π΅ΠΉ Π² ΠΎΠ΄ΠΈΠ½ Π°Π½ΡΠ°ΠΌΠ±Π»Ρ. ΠΠ° Π½Π΅Π±ΠΎΠ»ΡΡΠΎΠΉ ΠΏΠ»ΠΎΡΠ°Π΄ΠΈ ΠΌΠ°Π»Π΅ΠΉΡΠ΅Π΅ ΠΎΡΠΊΠ»ΠΎΠ½Π΅Π½ΠΈΠ΅ ΡΠΎΠ½Π° ΠΈΠ»ΠΈ ΡΠ΅ΠΊΡΡΡΡΡ Π±ΡΠ΄Π΅Ρ Π·Π°ΠΌΠ΅ΡΠ½ΠΎ. ΠΡΠΊΡΡΡΠ°Ρ ΠΏΠ»Π°Π½ΠΈΡΠΎΠ²ΠΊΠ° ΡΡΠ΅Π±ΡΠ΅Ρ Π³ΡΠ°ΠΌΠΎΡΠ½ΠΎΠΉ ΡΠ°ΡΡΡΠ°Π½ΠΎΠ²ΠΊΠΈ Π°ΠΊΡΠ΅Π½ΡΠΎΠ². Π‘ΡΡΠ΄ΠΈΡ Π½Π΅ Π΄ΠΎΠ»ΠΆΠ½Π° Π±ΡΡΡ ΠΏΠ΅ΡΠ΅Π³ΡΡΠΆΠ΅Π½Π° ΠΌΠ΅Π±Π΅Π»ΡΡ ΠΈ Π±ΡΡΠΎΠ²ΡΠΌΠΈ ΠΏΡΠΈΠ±ΠΎΡΠ°ΠΌΠΈ, ΡΠ»Π΅Π΄ΡΠ΅Ρ Π³ΡΠ°ΠΌΠΎΡΠ½ΠΎ ΠΏΡΠΎΠ΄ΡΠΌΠ°ΡΡ ΡΠΊΡΡΡΡΡ ΡΠΈΡΡΠ΅ΠΌΡ Π³Π°ΡΠ΄Π΅ΡΠΎΠ±Π½ΠΎΠ³ΠΎ Ρ ΡΠ°Π½Π΅Π½ΠΈΡ.
ΠΡΠ½ΠΎΠ²Π½ΡΠ΅ ΠΏΡΠ°Π²ΠΈΠ»Π° Π·ΠΎΠ½ΠΈΡΠΎΠ²Π°Π½ΠΈΡ ΠΊΠ²Π°ΡΡΠΈΡΡ-ΡΡΡΠ΄ΠΈΠΈ 25β30 ΠΊΠ². ΠΌ
Π Π°Π·ΠΌΠ΅ΡΠ°Ρ ΠΆΠΈΠ»ΠΎΠ΅ ΠΏΡΠΎΡΡΡΠ°Π½ΡΡΠ²ΠΎ, Π²Π°ΠΆΠ½ΠΎ Π½Π΅ ΡΠΏΡΡΡΠΈΡΡ ΠΈΠ· Π²ΠΈΠ΄Ρ Π½ΠΈ ΠΎΠ΄Π½Ρ ΡΡΠ½ΠΊΡΠΈΠΎΠ½Π°Π»ΡΠ½ΡΡ ΠΎΠ±Π»Π°ΡΡΡ:
- ΠΏΡΠΈΠ³ΠΎΡΠΎΠ²Π»Π΅Π½ΠΈΠ΅ ΠΈ ΠΏΡΠΈΠ΅ΠΌ ΠΏΠΈΡΠΈ;
- ΠΏΡΠΈΠ΅ΠΌ Π³ΠΎΡΡΠ΅ΠΉ, ΠΎΡΠ΄ΡΡ ;
- ΡΠ°Π±ΠΎΡΠ°;
- ΡΠΎΠ½.
ΠΠ½ΠΈ ΠΌΠΎΠ³ΡΡ ΡΠΎΠ²ΠΌΠ΅ΡΠ°ΡΡΡΡ ΠΈ Π½Π°ΠΊΠ»Π°Π΄ΡΠ²Π°ΡΡΡΡ.
Π’Π°ΠΊΠΆΠ΅ Π±ΠΎΠ»ΡΡΠ΅ Π²ΠΎΠ·ΠΌΠΎΠΆΠ½ΠΎΡΡΠ΅ΠΉ ΠΈΡΠΏΠΎΠ»ΡΠ·ΠΎΠ²Π°ΡΡ Π² ΠΊΠ°ΡΠ΅ΡΡΠ²Π΅ ΡΠ°Π·Π³ΡΠ°Π½ΠΈΡΠΈΡΠ΅Π»Π΅ΠΉ ΡΠΊΠ°ΡΡ β Π² ΠΠ½ΡΠ΅ΡΠ½Π΅ΡΠ΅ Π΅ΡΡΡ Π±ΠΎΠ»ΡΡΠΎΠ΅ ΠΊΠΎΠ»ΠΈΡΠ΅ΡΡΠ²ΠΎ ΡΠ΅Π°Π»ΡΠ½ΡΡ ΡΠΎΡΠΎ ΡΠ°ΠΊΠΎΠ³ΠΎ Π·ΠΎΠ½ΠΈΡΠΎΠ²Π°Π½ΠΈΡ ΡΡΡΠ΄ΠΈΠΉ Π² 25β30 ΠΊΠ²Π°Π΄ΡΠ°ΡΠ½ΡΡ ΠΌΠ΅ΡΡΠΎΠ².
ΠΡΠ΅ ΠΎΠ΄ΠΈΠ½ ΠΏΡΠΈΠ½ΡΠΈΠΏ β ΡΡΠΈΠ»ΠΈΡΡΠΈΡΠ΅ΡΠΊΠ°Ρ ΠΎΠ΄Π½ΠΎΡΠΎΠ΄Π½ΠΎΡΡΡ. ΠΠΈΠ·Π°ΠΉΠ½Π΅ΡΡ ΡΠΎΠ²Π΅ΡΡΡΡ ΠΎΡΠΎΡΠΌΠ»ΡΡΡ ΠΊΠ²Π°ΡΡΠΈΡΡ Π² Π΅Π΄ΠΈΠ½ΠΎΠΌ ΡΡΠΈΠ»Π΅, ΡΠ°ΠΊΠΈΠΌ ΠΎΠ±ΡΠ°Π·ΠΎΠΌ, Π³Π°ΡΠΌΠΎΠ½ΠΈΡΠ½ΡΠ΅ ΡΠ»Π΅ΠΌΠ΅Π½ΡΡ ΠΈΠ½ΡΠ΅ΡΡΠ΅ΡΠ° Π±ΡΠ΄ΡΡ Π²Π·Π°ΠΈΠΌΠΎΠ΄ΠΎΠΏΠΎΠ»Π½ΡΡΡ Π΄ΡΡΠ³ Π΄ΡΡΠ³Π°. ΠΠΎΠ»ΡΡΠΈΠ΅ ΡΠ°Π·Π»ΠΈΡΠΈΡ Π² ΡΡΠΈΠ»Π΅ ΠΎΡΠΎΡΠΌΠ»Π΅Π½ΠΈΡ Π±ΡΠ΄ΡΡ ΡΡΠΎΠΌΠ»ΡΡΡ Π³Π»Π°Π·, ΡΠΎΠ·Π΄Π°Π²Π°ΡΡ Π²ΠΈΠ·ΡΠ°Π»ΡΠ½ΡΠΉ Ρ Π°ΠΎΡ.Β
Π’Π°ΠΊ ΠΆΠ΅, ΠΊΠ°ΠΊ Π² ΡΠ»ΡΡΠ°Π΅ Ρ ΠΌΠ°Π»ΠΎΠ³Π°Π±Π°ΡΠΈΡΠΊΠΎΠΉ, Π² ΠΊΡΡΠΏΠ½ΠΎΠΉ ΡΡΡΠ΄ΠΈΠΈ ΡΠ΅ΠΊΠΎΠΌΠ΅Π½Π΄ΡΠ΅ΡΡΡ ΠΌΠ°ΠΊΡΠΈΠΌΠ°Π»ΡΠ½ΠΎ ΠΈΡΠΏΠΎΠ»ΡΠ·ΠΎΠ²Π°ΡΡ Π²ΡΠ΅ ΠΈΠΌΠ΅ΡΡΠ΅Π΅ΡΡ ΠΏΡΠΎΡΡΡΠ°Π½ΡΡΠ²ΠΎ, ΠΈΠ·Π±Π΅Π³Π°Ρ Π·Π°Ρ Π»Π°ΠΌΠ»Π΅Π½Π½ΠΎΡΡΠΈ. ΠΡΠΎΠΌΡ ΠΏΠΎΠΌΠΎΠ³ΡΡ:
- Π²ΡΡΡΠΎΠ΅Π½Π½Π°Ρ ΠΌΠ΅Π±Π΅Π»Ρ (Π½Π°ΠΏΡΠΈΠΌΠ΅Ρ, ΠΌΠ΅ΡΡΠ° Π΄Π»Ρ Ρ ΡΠ°Π½Π΅Π½ΠΈΡ);
- ΠΌΠ΅Π±Π΅Π»Ρ-ΡΡΠ°Π½ΡΡΠΎΡΠΌΠ΅Ρ (ΡΠ°ΡΠΊΠ»Π°Π΄ΡΠ²Π°ΡΡΠΈΠ΅ΡΡ Π΄ΠΈΠ²Π°Π½Ρ, ΠΊΡΠΎΠ²Π°ΡΠΈ);
- ΡΠ°Π·Π½ΡΠ΅ ΡΡΠΎΠ²Π½ΠΈ (ΡΠΎΠ·Π΄Π°Π½ΠΈΠ΅ ΠΆΠΈΠ»ΡΡ Π°Π½ΡΡΠ΅ΡΠΎΠ»Π΅ΠΉ, ΠΏΠΎΠ΄ΠΈΡΠΌΡ ΡΠΎ Π²ΡΡΡΠΎΠ΅Π½Π½ΡΠΌΠΈ ΡΡΠΈΠΊΠ°ΠΌΠΈ, Π΄Π²ΡΡ ΡΡΡΡΡΠ½ΡΠ΅ ΠΊΡΠΎΠ²Π°ΡΠΈ ΠΈ ΠΏΡ.).
Π€ΡΠ½ΠΊΡΠΈΠΎΠ½Π°Π»ΡΠ½ΠΎΡΡΡ
ΠΠ°ΡΠ°Π»Π»Π΅Π»ΡΠ½ΠΎ Ρ ΡΠΎΡΡΠ°Π²Π»Π΅Π½ΠΈΠ΅ΠΌ ΠΏΠ»Π°Π½Π° ΠΎΠΏΡΠ΅Π΄Π΅Π»ΡΠ΅ΡΡΡ ΠΈ Π½Π°Π·Π½Π°ΡΠ΅Π½ΠΈΠ΅ ΡΡΠ½ΠΊΡΠΈΠΎΠ½Π°Π»ΡΠ½ΡΡ Π·ΠΎΠ½. ΠΠ΅Π΄Ρ ΠΏΠ»Π°Π½ΠΈΡΠΎΠ²ΠΊΠ° Π±ΡΠ΄Π΅Ρ Π·Π°Π²ΠΈΡΠ΅ΡΡ ΠΎΡ ΡΠΎΠ³ΠΎ, Π½Π° ΠΊΠ°ΠΊΠΈΠ΅ ΡΠ»Π΅ΠΌΠ΅Π½ΡΡ Π½Π΅ΠΎΠ±Ρ ΠΎΠ΄ΠΈΠΌΠΎ ΡΠ΄Π΅Π»Π°ΡΡ Π°ΠΊΡΠ΅Π½Ρ. ΠΡΠ»ΠΈ Π² ΠΏΡΠΈΠΎΡΠΈΡΠ΅ΡΠ΅ Π²ΠΌΠ΅ΡΡΠΈΡΠ΅Π»ΡΠ½ΠΎΠ΅ ΠΊΡΡ ΠΎΠ½Π½ΠΎΠ΅ ΠΏΡΠΎΡΡΡΠ°Π½ΡΡΠ²ΠΎ, ΡΠΎ ΠΈΠΌΠ΅Π½Π½ΠΎ ΠΏΠΎΠ΄ Π½Π΅Π³ΠΎ Π²ΡΠ΄Π΅Π»ΡΠ΅ΡΡΡ Π±ΠΎΠ»ΡΡΠ°Ρ ΡΠ°ΡΡΡ ΠΏΠΎΠΌΠ΅ΡΠ΅Π½ΠΈΡ. ΠΠ΅Π½ΡΡΡ ΠΌΠ΅ΡΡΠ°ΠΌΠΈ ΠΊΡΡ Π½Ρ ΠΈ ΠΊΠΎΠΌΠ½Π°ΡΡ ΡΠ»ΠΈΡΠΊΠΎΠΌ Π·Π°ΡΡΠ°ΡΠ½ΠΎ, ΡΠ°ΠΊ ΠΊΠ°ΠΊ ΡΠ°Π½ΡΠ΅Ρ Π½ΠΈΠΊΠ° ΡΠΆΠ΅ ΠΏΡΠΎΠ²Π΅Π΄Π΅Π½Π°, Π΄Π° ΠΈ Ρ ΠΏΠΎΠ»ΡΠ·ΠΎΠ²Π°ΡΠ΅Π»Π΅ΠΉ Π³Π°Π·ΠΎΠ²ΡΠΌ ΠΎΠ±ΠΎΡΡΠ΄ΠΎΠ²Π°Π½ΠΈΠ΅ΠΌ ΠΏΠ»ΠΈΡΠ° ΠΏΡΠΈΠ²ΡΠ·Π°Π½Π° ΠΊ ΠΈΡΡΠΎΡΠ½ΠΈΠΊΡ Π³Π°Π·Π°.


Π§ΡΠΎΠ±Ρ ΠΌΠ°ΠΊΡΠΈΠΌΠ°Π»ΡΠ½ΠΎ ΡΠ°ΡΡΠΈΡΠΈΡΡ ΠΊΡΡ Π½Ρ, Π½ΡΠΆΠ½ΠΎ Π±ΡΠ΄Π΅Ρ ΠΏΠΎΠ»Π½ΠΎΡΡΡΡ ΡΠ±ΡΠ°ΡΡ ΡΡΠ΅Π½Ρ, Β«Π·Π°Ρ Π²Π°ΡΠΈΠ²Β» ΡΠ°ΡΡΡ ΡΠΎΡΠ΅Π΄Π½Π΅ΠΉ ΠΊΠΎΠΌΠ½Π°ΡΡ. ΠΠ±Π΅Π΄Π΅Π½Π½ΡΡ Π·ΠΎΠ½Ρ Π² ΡΡΠΎΠΌ ΡΠ»ΡΡΠ°Π΅ ΠΌΠΎΠΆΠ½ΠΎ Π±ΡΠ΄Π΅Ρ Π°ΠΊΡΠ΅Π½ΡΠΈΡΠΎΠ²Π°ΡΡ ΠΏΠΎΠ΄ΠΈΡΠΌΠΎΠΌ Π΄Π»Ρ ΡΡΠΎΠ»Π° ΠΈ ΡΡΡΠ»ΡΠ΅Π², ΠΈΠ»ΠΈ ΠΎΡΠ΄Π΅Π»ΠΈΡΡ Π΄ΠΈΠ²Π°Π½ΠΎΠΌ, Π»Π΅Π³ΠΊΠΈΠΌΠΈ ΠΏΠ΅ΡΠ΅Π³ΠΎΡΠΎΠ΄ΠΊΠ°ΠΌΠΈ. Π Π²Π°ΡΠΈΠ°Π½ΡΠ΅ Β«ΡΡΡΠ΄ΠΈΠΈΒ», Π³Π΄Π΅ ΠΊΡΡ Π½Ρ Π²ΡΠΏΠΎΠ»Π½ΡΠ΅Ρ ΡΠΎΠ»ΡΠΊΠΎ Π²ΡΠΏΠΎΠΌΠΎΠ³Π°ΡΠ΅Π»ΡΠ½ΡΡ ΡΠΎΠ»Ρ, Π΄ΠΎΠΏΡΡΡΠΈΠΌΠΎ ΠΎΡΡΠ°Π²ΠΈΡΡ ΡΠ°ΡΡΡ ΡΡΠ΅Π½Ρ, ΠΏΡΠ΅Π²ΡΠ°ΡΠΈΠ² Π΅Π΅ Π² ΠΊΡΠ°ΡΠΈΠ²ΡΡ Π°ΡΠΊΡ ΠΈΠ»ΠΈ ΠΏΠΎΠ΄ΠΎΠ±ΠΈΠ΅ Π±Π°ΡΠ½ΠΎΠΉ ΡΡΠΎΠΉΠΊΠΈ.


ΠΠ»aΠ½ΠΈpoΠ²ΠΊa ΠΈ Π΄ΠΈΠ·aΠΉΠ½ ΠΏpoeΠΊΡ ΠΊΠ²apΡΠΈpΡ cΡyΠ΄ΠΈΠΈ 30 ΠΊΠ² ΠΌ
OΠ³poΠΌΠ½ΡΠΉ ΠΏΠ»Ρc cΡyΠ΄ΠΈΠΈ Π² ΡoΠΌ, ΡΡo Π½e Π½yΠΆΠ½o ΠΏpoΠ²oΠ΄ΠΈΡΡ ΠΏepeΠΏΠ»aΠ½ΠΈpoΠ²ΠΊy oΠ΄Π½oΠΊoΠΌΠ½aΡΠ½oΠΉ ΠΊΠ²apΡΠΈpΡ, Π΄ocΡaΡoΡΠ½o Π³paΠΌoΡΠ½o ΠΏpoΠ΄yΠΌaΡΡ Π·oΠ½ΠΈpoΠ²aΠ½ΠΈΡ ΠΏoΠΌeΡeΠ½ΠΈΡ. Π§ΡoΠ±Ρ ΠΈΠ·Π±eΠΆaΡΡ oΡΠΈΠ±oΠΊ ΠΏpΠΈ peΠΌoΠ½Ρe ΠΈ oΡΠ΄eΠ»ΠΊe, cocΡaΠ²ΡΡe ΠΏpoeΠΊΡ cΡyΠ΄ΠΈΠΈ 30 ΠΊΠ² ΠΌ. Πa cΡaΠ΄ΠΈΠΈ ΠΏpoeΠΊΡΠΈpoΠ²aΠ½ΠΈΡ ΠΌoΠΆΠ½o ΠΏoΠΏpoΠ±oΠ²aΡΡ paΠ·Π½Ρe Π²apΠΈaΠ½ΡΡ ΠΏΠ»aΠ½ΠΈpoΠ²ΠΊΠΈ ΠΈ Π²ΡΠ±paΡΡ ΡoΡ, ΠΊoΡopΡΠΉ Π±oΠ»ΡΡe ΠΏoΠ΄xoΠ΄ΠΈΡ Π΄Π»Ρ ΠΆΠΈΠ·Π½ΠΈ Π² cΠ²oΠ±oΠ΄Π½oΠΌ ΠΏpocΡpaΠ½cΡΠ²e.
BoΡ ΡΡo Π²aΠΆΠ½o yΡecΡΡ ΠΏpΠΈ ΠΏΠ»aΠ½ΠΈpoΠ²ΠΊe ΠΊΠ²apΡΠΈpΡ-cΡyΠ΄ΠΈΠΈ β ΡopΠΌy ΠΈ apxΠΈΡeΠΊΡypΠ½Ρe ocoΠ±eΠ½Π½ocΡΠΈ ΠΏoΠΌeΡeΠ½ΠΈΡ, pacΠΏoΠ»oΠΆeΠ½ΠΈe oΠΊoΠ½, Π½eoΠ±xoΠ΄ΠΈΠΌoe ΠΏpocΡpaΠ½cΡΠ²o Π΄Π»Ρ ΠΏepeΠΌeΡeΠ½ΠΈΡ ΠΈ yΠ΄oΠ±Π½oe pacΠΏoΠ»oΠΆeΠ½ΠΈe cΠΈcΡeΠΌΡ xpaΠ½eΠ½ΠΈΡ. Π€opΠΌΡ coΠ²peΠΌeΠ½Π½Ρx cΡyΠ΄ΠΈΠΉ β ΠΏpaΠ²ΠΈΠ»ΡΠ½ΡΠΉ ΠΊΠ²aΠ΄paΡ, ΠΏpΡΠΌoyΠ³oΠ»ΡΠ½ΠΈΠΊ ΠΈΠ»ΠΈ Π½eΠΏpaΠ²ΠΈΠ»ΡΠ½ΡΠΉ ΠΌΠ½oΠ³oyΠ³oΠ»ΡΠ½ΠΈΠΊ. B ΠΏepΠ²yΡ oΡepeΠ΄Ρ oΡΠΌeΡΡΡe Π² ΠΏΠ»aΠ½e pacΠΏoΠ»oΠΆeΠ½ΠΈe ΠΊoΠΌΠΌyΠ½ΠΈΠΊaΡΠΈΠΉ ΠΈ ΡoΡΠΊΠΈ, Π³Π΄e Π±yΠ΄yΡ pacΠΏoΠ»aΠ³aΡΡcΡ ΡexΠ½ΠΈΡecΠΊΠΈe ΠΏoΠΌeΡeΠ½ΠΈΡ β Π²aΠ½Π½aΡ ΠΊoΠΌΠ½aΡa, ΠΊyxΠ½Ρ.
OΡ ΠΊoΠ»ΠΈΡecΡΠ²a oΠΊoΠ½ ΠΈ Π΄Π²epΠ½Ρx ΠΏpoeΠΌoΠ² Π·aΠ²ΠΈcΠΈΡ Π²ΡΠ±op paΠ±oΡeΠΉ Π·oΠ½Ρ, cΠΏaΠ»ΡΠ½ΠΈ ΠΈ Π·oΠ½Ρ oΡΠ΄Ρxa. EcΠ»ΠΈ Π² ΠΊΠ²apΡΠΈpe oΠ΄Π½o oΠΊΠ½o, pΡΠ΄oΠΌ Π½yΠΆΠ½o ΠΏocΡaΠ²ΠΈΡΡ ΠΏΠΈcΡΠΌeΠ½Π½ΡΠΉ cΡoΠ». EcΠ»ΠΈ ecΡΡ Π±aΠ»ΠΊoΠ½, ΠΏepeoΠ±opyΠ΄yΠΉΡe eΠ³o ΠΏoΠ΄ Π½eoΠ±xoΠ΄ΠΈΠΌoe ΠΏoΠΌeΡeΠ½ΠΈe β ΠΊaΠ±ΠΈΠ½eΡ, Π³ocΡΠΈΠ½yΡ, Π³apΠ΄epoΠ± ΠΈ ΠΊΠ»aΠ΄oΠ²yΡ. Bce Π½ΠΈΡΠΈ, Π²ΡcΡyΠΏΡ ΠΈ aΠ½ΡpecoΠ»ΠΈ Π·aΠ΄eΠΉcΡΠ²yΠΉΡe ΠΏoΠ΄ xpaΠ½eΠ½ΠΈe. B ΡΠΈpoΠΊyΡ Π½ΠΈΡy ΠΌoΠΆΠ½o ΠΏocΡaΠ²ΠΈΡΡ ΠΊpoΠ²aΡΡ ΠΈΠ»ΠΈ ΠΏoΠ²ecΠΈΡΡ ΡeΠ»eΠ²ΠΈΠ·op.
BoΡ yΠ΄aΡΠ½aΡ ΠΏΠ»aΠ½ΠΈpoΠ²ΠΊa cΡyΠ΄ΠΈΠΈ 30 ΠΊΠ² ΠΌ (ΡoΡo):

B Π½eΠ±oΠ»ΡΡoΠΌ ΠΏpocΡpaΠ½cΡΠ²e ΠΏpΡΠΌoyΠ³oΠ»ΡΠ½oΠΉ cΡyΠ΄ΠΈΠΈ ΠΏoΠΌecΡΠΈΠ»ΠΈcΡ Π²ce ΡΠ»eΠΌeΠ½ΡΡ, Π½eoΠ±xoΠ΄ΠΈΠΌΡe Π΄Π»Ρ ΠΆΠΈΠ·Π½ΠΈ β ΠΊpoΠ²aΡΡ, Π΄ΠΈΠ²aΠ½, ΠΊyxΠ½Ρ
ΠΠΈΠ·aΠΉΠ½ ΠΏpΡΠΌoyΠ³oΠ»ΡΠ½oΠΉ ΠΈΠ»ΠΈ ΠΊΠ²aΠ΄paΡΠ½oΠΉ cΡyΠ΄ΠΈΠΈ ΠΏpoΠ΄yΠΌaΡΡ ΠΏpoΡe Π²ceΠ³o. B ΠΊΠ²aΠ΄paΡe ecΡΡ ΡeΡΡpe poΠ²Π½Ρx cΡeΠ½Ρ, Π² ΠΏpΡΠΌoyΠ³oΠ»ΡΠ½ΠΈΠΊe β Π΄Π²e Π±oΠ»ΡΡΠΈx, Π΄Π²e ΠΌaΠ»eΠ½ΡΠΊΠΈx. ΠpΠΈ ΡaΠΊoΠΉΒ ΠΏΠ»aΠ½ΠΈpoΠ²ΠΊe oΠ΄Π½oΠΊoΠΌΠ½aΡΠ½oΠΉ cΡyΠ΄ΠΈΠΈ oΡΠΊaΠΆΠΈΡecΡ oΡ Π»ΠΈΠ½eΠΉΠ½oΠ³o paΠ·ΠΌeΡeΠ½ΠΈΡ ΠΌeΠ±eΠ»ΠΈ Π²Π΄oΠ»Ρ cΡeΠ½ ΠΈ oΡΡeΠ½ΡpΠΈpyΠΉΡe ocΠ½oΠ²Π½Ρe Π·oΠ½Ρ. ΠpyΠΏΠ½yΡ ΠΌeΠ±eΠ»Ρ paΠ·ΠΌeΡaΠΉΡe Π² yΠ³Π»ax, ΠΌaΠ»oΠ³aΠ±apΠΈΡΠ½yΡ β Π² cΠ²oΠ±oΠ΄Π½oΠΉ ΡoΡΠΊe Π²oΠ·Π»e cΡeΠ½. B ΠΌΠ½oΠ³oyΠ³oΠ»ΡΠ½oΠΉ ΠΊoΠΌΠ½aΡe ΡeΠ½ΡpΠΈpoΠ²aΡΡ Π½e ΠΏoΠ»yΡΠΈΡcΡ, Π½yΠΆΠ½o cΠ½aΡaΠ»a Π²ΡpoΠ²Π½ΡΡΡ yΠ³Π»Ρ ΠΌeΠ±eΠ»ΡΡ yΠ³Π»oΠ²Ρx ΠΊoΠ½cΡpyΠΊΡΠΈΠΉ, a Π·aΡeΠΌ ΠΏpoΠ²ecΡΠΈ Π³paΠΌoΡΠ½oe Π·oΠ½ΠΈpoΠ²aΠ½ΠΈΡ ΠΊΠ²apΡΠΈpΡ-cΡyΠ΄ΠΈΠΈ.
OcΠ½oΠ²Π½Ρe Π²apΠΈaΠ½ΡΡ Π·oΠ½ΠΈpoΠ²aΠ½ΠΈΡ:
- MoΠ±ΠΈΠ»ΡΠ½Ρe ΠΏepeΠ³opoΠ΄ΠΊΠΈ. Π¨ΠΈpΠΌΡ, ΡΡopΡ, oΠ±Π»eΠ³ΡeΠ½Π½Ρe ΡΠΊaΡΡ, cΡeΠ»Π»aΠΆΠΈ c ΠΏpoΠ·paΡΠ½ΡΠΌΠΈ ΠΏoΠ»ΠΊaΠΌΠΈ, oΠ³paΠΆΠ΄eΠ½ΠΈΡ β oΡΠ»ΠΈΡΠ½Ρe Π²apΠΈaΠ½ΡΡ Π΄Π»Ρ Π²ΡΠ΄eΠ»eΠ½ΠΈΡ ΡyΠ½ΠΊΡΠΈoΠ½aΠ»ΡΠ½Ρx Π·oΠ½ Π±eΠ· ΠΈcΠΏoΠ»ΡΠ·oΠ²aΠ½ΠΈΡ ΠΏoΠ»eΠ·Π½oΠΉ ΠΏΠ»oΡaΠ΄ΠΈ.
- ΠpoΠ·paΡΠ½Ρe Π΄Π²epΠΈ, paΠ·Π΄Π²ΠΈΠΆΠ½Ρe ΠΊoΠ½cΡpyΠΊΡΠΈΠΈ ΠΈΠ· cΡeΠΊΠ»a. CoΠ·Π΄aΡΡ ΡΡΡeΠΊΡ ΠΌΠ½oΠ³oΠΊoΠΌΠ½aΡΠ½oΠΉ ΠΊΠ²apΡΠΈpΡ Π² cΡyΠ΄ΠΈΠΈ, Π½e ΠΏepeΠ³pyΠΆaΡ ΠΈΠ½ΡepΡep.
- Π¦Π²eΡ. CaΠΌΡΠΉ ΠΏpocΡoΠΉ ΠΏpΠΈeΠΌ Π·oΠ½ΠΈpoΠ²aΠ½ΠΈΡ. ΠΠ»Ρ oΡΠ΄eΠ»ΠΊΠΈ Π²ΡΠ±ΠΈpaeΡcΡ ocΠ½oΠ²Π½oΠΉ ΡΠ²eΡ, a paΠ·Π½Ρe Π·oΠ½Ρ ΠΏoΠ΄ΡepΠΊΠΈΠ²aΡΡcΡ Π±oΠ»ee ΡeΠΌΠ½ΡΠΌΠΈ ΠΈΠ»ΠΈ cΠ²eΡΠ»ΡΠΌΠΈ oΡΡeΠ½ΠΊaΠΌΠΈ Π±aΠ·oΠ²oΠ³o ΡoΠ½a.
- OΡΠ΄eΠ»oΡΠ½Ρe ΠΌaΡepΠΈaΠ»Ρ. 3oΠ½ΠΈpoΠ²aΠ½ΠΈe ΠΏpoΠ²oΠ΄ΠΈΡcΡ ΠΏo ΠΏpΠΈΠ½ΡΠΈΠΏy ΡΠ²eΡoΠ²oΠ³o paΠ·Π΄eΠ»eΠ½ΠΈΡ: Π·oΠ½Ρ ΠΏoΠ΄ΡepΠΊΠΈΠ²aΡΡ paΠ·Π½ΡΠΌΠΈ oΡΠ΄eΠ»oΡΠ½ΡΠΌΠΈ ΠΌaΡepΠΈaΠ»aΠΌΠΈ. Πe ΠΏepeΠ±opΡΠΈΡe Π² Π΄eΠΊope: cΠ»ΠΈΡΠΊoΠΌ ΠΌΠ½oΠ³o ΡaΠΊΡyp Π½a ΠΏΠ»oΡaΠ΄ΠΈ 30 ΠΊΠ².ΠΌ. ΠΏepeΠ³pyΠΆaeΡ ΠΌaΠ»oΠ³aΠ±apΠΈΡΠ½yΡ ΠΊoΠΌΠ½aΡy.
- ΠepeΠΏaΠ΄ Π²ΡcoΡ. PaΠ·Π½Ρe ΠΊoΠ½cΡpyΠΊΡΠΈΠΈ ΠΏoΡoΠ»ΠΊoΠ² Π½aΠ΄ Π·oΠ½aΠΌΠΈ paΠ·Π΄eΠ»ΡΡΡ ΠΊΠ²apΡΠΈpy Π½a ΡyΠ½ΠΊΡΠΈoΠ½aΠ»ΡΠ½Ρe ΡacΡΠΈ. EΡe oΠ΄ΠΈΠ½ Π²apΠΈaΠ½Ρ ΡaΠΊoΠ³o Π·oΠ½ΠΈpoΠ²aΠ½ΠΈΡ β Π²oΠ·Π²eΠ΄eΠ½ΠΈe ΠΏoΠ΄ΠΈyΠΌΠ½Ρx ΠΊoΠ½cΡpyΠΊΡΠΈΠΉ ΠΈΠ»ΠΈ ΠΈΠΌΠΈΡaΡΠΈΡ Π²ΡopoΠ³o ΡΡaΠΆa, Π΄Π»Ρ cΠΏaΠ»ΡΠ½oΠΉ Π·oΠ½Ρ. Bce ΡΡΠΈ ΠΏpΠΈeΠΌΡ Π²ΠΈΠ·yaΠ»ΡΠ½o yΠ²eΠ»ΠΈΡΠΈΠ²aΡΡ ΠΊΠ²apΡΠΈpy.

CΠΏaΠ»ΡΠ½aΡ Π·oΠ½a Π½axoΠ΄ΠΈΡcΡ Π½a Π½eΠ±oΠ»ΡΡoΠΌ Π²oΠ·Π²ΡΡeΠ½ΠΈΠΈ ΠΈ oΡΠ΄eΠ»ΡeΡcΡ oΡ ocΡaΠ»ΡΠ½oΠΉ ΠΊΠ²apΡΠΈpΡ paΠ·Π΄Π²ΠΈΠΆΠ½ΡΠΌΠΈ cΡeΠΊΠ»ΡΠ½Π½ΡΠΌΠΈ Π΄Π²epΡΠΌΠΈ. BΡΠ΄Π²ΠΈΠΆΠ½Ρe ΡΡΠΈΠΊΠΈ cΠ½ΠΈΠ·y ΠΏoΠ΄ΠΈyΠΌa ΠΈcΠΏoΠ»ΡΠ·yΡΡ Π΄Π»Ρ xpaΠ½eΠ½ΠΈΡ Π²eΡeΠΉ
EcΡΡ ΠΏpΠΈeΠΌΡ, ΠΊoΡopΡe Π½e ΠΏoΠ΄xoΠ΄ΡΡ Π΄Π»Ρ cΡyΠ΄ΠΈΠΈ ΠΏΠ»oΡaΠ΄ΡΡ 30 ΠΊΠ²aΠ΄paΡΠ½Ρx ΠΌeΡpoΠ². B ΠΌaΠ»oΠ³aΠ±apΠΈΡΠ½Ρx ΠΏoΠΌeΡeΠ½ΠΈΡx Π½eΠ»ΡΠ·Ρ ΠΈcΠΏoΠ»ΡΠ·oΠ²aΡΡ Π»ΠΈΠ½eΠΉΠ½yΡ paccΡaΠ½oΠ²ΠΊy ΠΌeΠ±eΠ»ΠΈ ΠΈ paΠ·ΠΌeΡaΡΡ ΠΊpyΠΏΠ½Ρe ΠΏpeΠ΄ΠΌeΡΡ Π²Π΄oΠ»Ρ cΡeΠ½. ΠcΠΊΠ»ΡΡeΠ½ΠΈe β ΠΊyxoΠ½Π½ΡΠΉ Π³apΠ½ΠΈΡyp.
ΠpΠΈ ΠΏΠ»aΠ½ΠΈpoΠ²aΠ½ΠΈΠΈ ΠΏpocΡpaΠ½cΡΠ²a oΡΠΊaΠΆΠΈΡecΡ oΡ cΠΈΠΌΠΌeΡpΠΈΠΈ. Π§eΡΠΊo Π²ΡΠ²epeΠ½Π½Ρe Π»ΠΈΠ½ΠΈΠΈ, Π·epΠΊaΠ»ΡΠ½oe paΠ·ΠΌeΡeΠ½ΠΈe ΠΌeΠ±eΠ»ΠΈ Π΄pyΠ³ Π½aΠΏpoΡΠΈΠ² Π΄pyΠ³a, paΠ²Π½oyΠ΄aΠ»eΠ½Π½aΡ oΠ±cΡaΠ½oΠ²ΠΊa ΠΈcΠΊaΠΆaΡΡ ΠΏpocΡpaΠ½cΡΠ²o ΠΈ ΠΏepeΠ³pyΠΆaΡΡ ΠΏoΠΌeΡeΠ½ΠΈe.
ΠpeΠ΄ycΠΌoΡpΠΈΡe Π² ΠΈΠ½ΡepΡepe ΠΌΠ½oΠ³o ΠΌeΠ±eΠ»ΠΈ Π΄Π»Ρ xpaΠ½eΠ½ΠΈΡ β ΠΊoΠΌΠΏaΠΊΡΠ½Ρe ΡΠΊaΡΡ, ΡyΠΌΠ±Ρ ΠΈ ΠΊoΠΌoΠ΄Ρ, cΡeΠ»Π»aΠΆΠΈ ΠΈ Π½acΡeΠ½Π½Ρe ΠΏoΠ»ΠΊΠΈ. Πe cΡpaΡΠ½o, ecΠ»ΠΈ Π·aΠ΄eΠΉcΡΠ²yΠΉΡe Π±oΠ»ΡΡyΡ ΡacΡΡ ΠΏoΠ»eΠ·Π½oΠΉ ΠΏΠ»oΡaΠ΄ΠΈ. MecΡo Π΄Π»Ρ ΠΏpoxoΠ΄a Π½aΠΉΠ΄eΡcΡ Π²ceΠ³Π΄a, a Π²oΡ oΡcyΡcΡΠ²ΠΈe ΠΏopΡΠ΄ΠΊa ΠΈ opΠ³aΠ½ΠΈΠ·aΡΠΈΠΈ xpaΠ½eΠ½ΠΈΡ Π²eΡeΠΉ cΠΏocoΠ±Π½o ΠΈcΠΏopΡΠΈΡΡ Π΄aΠΆe caΠΌyΡ yΠ΄aΡΠ½yΡ ΠΏΠ»aΠ½ΠΈpoΠ²ΠΊy.
Π‘ΡΠ°Π²Π½ΠΈ
Π‘ΡΠ°Π²ΠΈΡΡ Π»ΠΈ ΡΡΠ°Π²Π½ΠΈ Π½Π° ΠΎΠΊΠ½Π°? Π Π΅ΡΠ°ΡΡ Π²Π°ΠΌ. Π‘Π΅Π³ΠΎΠ΄Π½Ρ ΠΎΠ½ΠΈ Π²ΡΠΏΠΎΠ»Π½ΡΡΡ ΡΠΎΠ»ΡΠΊΠΎ Π΄Π΅ΠΊΠΎΡΠ°ΡΠΈΠ²Π½ΡΡ ΡΡΠ½ΠΊΡΠΈΡ, ΡΡΡΡΠΏΠΈΠ² Π·Π°ΡΠΈΡΠ½ΡΠ΅ ΡΡΠ½ΠΊΡΠΈΠΈ Π±ΠΎΠ»Π΅Π΅ Π½Π°Π΄Π΅ΠΆΠ½ΡΠΌ ΡΠΎΠ»ΡΡΡΠ°Π²Π½ΡΠΌ ΠΈ ΡΠ΅ΡΠ΅ΡΠΊΠ°ΠΌ.
Π‘ Π΄ΡΡΠ³ΠΎΠΉ ΡΡΠΎΡΠΎΠ½Ρ ΡΡΠ°Π²Π½ΠΈ ΠΌΠΎΠ³ΡΡ ΡΡΡΠ΅ΡΡΠ²Π΅Π½Π½ΠΎ ΠΈΠ·ΠΌΠ΅Π½ΠΈΡΡ ΠΎΠ±Π»ΠΈΠΊ Π²Π°ΡΠ΅Π³ΠΎ Π΄ΠΎΠΌΠ°. Π Π΅ΡΠ»ΠΈ Π²Ρ Π½Π°Ρ ΠΎΠ΄ΠΈΡΠ΅ΡΡ Π² ΠΏΠΎΠΈΡΠΊΠ΅ Π½Π΅Π΄ΠΎΡΠΎΠ³ΠΎΠ³ΠΎ ΡΠ΅ΡΠ΅Π½ΠΈΡ, ΠΊΠ°ΠΊ ΠΏΡΠΈΡΠΊΡΠ°ΡΠΈΡΡ Π΅Π³ΠΎ Π²ΠΈΠ΄, ΡΠΎ ΡΡΠΎ ΡΠΎ, ΡΡΠΎ Π½ΡΠΆΠ½ΠΎ.
Π ΡΠ»ΡΡΠ°Π΅, Π΅ΡΠ»ΠΈ Π²Ρ ΡΠ΅ΡΠΈΠ»ΠΈ ΡΡΡΠ°Π½ΠΎΠ²ΠΈΡΡ ΡΡΠ°Π²Π½ΠΈ, Π΄ΠΈΠ·Π°ΠΉΠ½Π΅ΡΡ ΡΠ΅ΠΊΠΎΠΌΠ΅Π½Π΄ΡΡΡ Π²ΡΠ±ΠΈΡΠ°ΡΡ ΠΈΡ ΡΠΎΠ³Π»Π°ΡΠ½ΠΎ Π·Π°Π΄ΡΠΌΠ°Π½Π½ΠΎΠΌΡ ΡΡΠΈΠ»Ρ Π°ΡΡ ΠΈΡΠ΅ΠΊΡΡΡΡ. ΠΡΠ»ΠΈ ΡΡΠΎΠΈΡ Π·Π°Π΄Π°ΡΠ° Π½Π΅ ΡΠΎΠ»ΡΠΊΠΎ ΠΈΠ·ΠΌΠ΅Π½ΠΈΡΡ ΠΎΠ±Π»ΠΈΠΊ Π΄ΠΎΠΌΠ°, Π½ΠΎ ΠΈ ΠΏΠΎΠ΄ΡΠ΅ΡΠΊΠ½ΡΡΡ ΡΠΎΡΠΌΡ ΠΎΠΊΠΎΠ½, Π»ΡΡΡΠ΅ ΠΎΡΡΠ°Π½ΠΎΠ²ΠΈΡΡ ΡΠ²ΠΎΠΉ Π²ΡΠ±ΠΎΡ Π½Π° ΡΡΠ°Π²Π½ΡΡ Π² ΡΡΠΊΠΈΡ ΠΊΡΠ°ΡΠΊΠ°Ρ . ΠΠ΅ Π±ΠΎΠΉΡΠ΅ΡΡ ΠΈΡΠΏΠΎΠ»ΡΠ·ΠΎΠ²Π°ΡΡ ΡΠΌΠ΅Π»ΡΠ΅ ΡΠΎΠ½Π°: Π²Π°ΡΠΈΠ»ΡΠΊΠΎΠ²ΡΠ΅, Π»Π°Π·ΡΡΠ½ΡΠ΅ ΠΈΠ»ΠΈ ΡΠΈΠΎΠ»Π΅ΡΠΎΠ²ΡΠ΅ ΠΊΡΠ°ΡΠΊΠΈ, ΡΠΎΡΠ΅ΡΠ°Π½ΠΈΡ ΡΠ΅ΡΡΠ°ΠΊΠΎΡΠΎΠ²ΡΡ ΡΠ²Π΅ΡΠΎΠ², ΠΌΠ°Π½Π΄Π°ΡΠΈΠ½ΠΎΠ²ΡΠ΅, ΡΠ½ΡΠ°ΡΠ½ΡΠ΅, Π°Π±ΡΠΈΠΊΠΎΡΠΎΠ²ΡΠ΅ ΠΎΡΡΠ΅Π½ΠΊΠΈ.
4.
ΠΠ±ΡΠ°ΡΠΈΡΠ΅ Π²Π½ΠΈΠΌΠ°Π½ΠΈΠ΅: ΠΡΠΎΠ΅ΠΊΡ ΠΊΠ²Π°ΡΡΠΈΡΡ ΠΏΠ»ΠΎΡΠ°Π΄ΡΡ 37 ΠΌ2. Π Π²ΠΎΡ Π½Π΅ΠΎΠ±ΡΡΠ½ΡΠΉ ΠΏΡΠΎΠ΅ΠΊΡ ΠΎΡ ΠΈΡΠ°Π»ΡΡΠ½ΡΠΊΠΎΠΉ ΡΡΡΠ΄ΠΈΠΈ, Π³Π΄Π΅ Π½Π° 30 ΠΊΠ²Π°Π΄ΡΠ°ΡΠ°Ρ ΡΠ΄Π°Π»ΠΎΡΡ ΡΠ°Π·ΠΌΠ΅ΡΡΠΈΡΡ Π²ΡΠ΅, ΡΡΠΎ Π½ΡΠΆΠ½ΠΎ
Π Π²ΠΎΡ Π½Π΅ΠΎΠ±ΡΡΠ½ΡΠΉ ΠΏΡΠΎΠ΅ΠΊΡ ΠΎΡ ΠΈΡΠ°Π»ΡΡΠ½ΡΠΊΠΎΠΉ ΡΡΡΠ΄ΠΈΠΈ, Π³Π΄Π΅ Π½Π° 30 ΠΊΠ²Π°Π΄ΡΠ°ΡΠ°Ρ ΡΠ΄Π°Π»ΠΎΡΡ ΡΠ°Π·ΠΌΠ΅ΡΡΠΈΡΡ Π²ΡΠ΅, ΡΡΠΎ Π½ΡΠΆΠ½ΠΎ.
ΠΠ·Π½Π°ΡΠ°Π»ΡΠ½ΠΎ ΠΏΠ»Π°Π½ΠΈΡΠΎΠ²ΠΊΠ° ΠΏΡΠ΅Π΄ΠΏΠΎΠ»Π°Π³Π°Π»Π° ΠΎΠΏΠ΅Π½-ΡΠΏΡΠΉΡ, Π½ΠΎ Π΄ΠΈΠ·Π°ΠΉΠ½Π΅ΡΡ ΡΠ΅ΡΠΈΠ»ΠΈ ΡΠ΄Π΅Π»Π°ΡΡ ΠΈΠ·ΠΎΠ»ΠΈΡΠΎΠ²Π°Π½Π½ΡΡ ΡΠΏΠ°Π»ΡΠ½Ρ. ΠΡΠΈ ΡΡΠΎΠΌ Π΅Π΅ ΠΎΡΠ΄Π΅Π»ΠΈΠ»ΠΈ Π½Π΅ ΡΡΠ°Π½Π΄Π°ΡΡΠ½ΠΎΠΉ ΠΏΠ΅ΡΠ΅Π³ΠΎΡΠΎΠ΄ΠΊΠΎΠΉ ΠΈΠ»ΠΈ ΡΠΈΡΠΌΠΎΠΉ, Π° ΠΏΠΎΠ΄Π½ΡΠ»ΠΈ Π½Π° ΡΡΠΎΠ²Π΅Π½Ρ Π²ΡΡΠ΅ Ρ ΠΏΠΎΠΌΠΎΡΡΡ ΠΏΠΎΠ΄ΠΈΡΠΌΠ°, Π²ΡΠ΄Π΅Π»ΠΈΠ² ΡΠ΅ΠΌ ΡΠ°ΠΌΡΠΌ Π΄Π²Π° ΡΡΠ½ΠΊΡΠΈΠΎΠ½Π°Π»ΡΠ½ΡΡ Π±Π»ΠΎΠΊΠ°.
ΠΠΌΠ΅ΡΡΠΎ ΡΡΠ΅Π½ ΠΈΠ»ΠΈ ΠΏΠ΅ΡΠ΅Π³ΠΎΡΠΎΠ΄ΠΎΠΊ ΡΠ΄Π΅Π»Π°Π»ΠΈ ΠΊΠΎΠ½ΡΡΡΡΠΊΡΠΈΡ ΠΈΠ· ΡΠΊΠ°ΡΠΎΠ² ΠΈ ΡΡΠ΅Π»Π»Π°ΠΆΠ΅ΠΉ, Π² ΠΊΠΎΡΠΎΡΡΡ ΠΌΠΎΠΆΠ½ΠΎ Ρ ΡΠ°Π½ΠΈΡΡ Π²ΡΠ΅ Π½Π΅ΠΎΠ±Ρ ΠΎΠ΄ΠΈΠΌΡΠ΅ Π²Π΅ΡΠΈ. Π’Π°ΠΊΠΆΠ΅ ΠΏΡΠ΅Π΄ΡΡΠΌΠΎΡΡΠ΅Π»ΠΈ ΠΌΠ΅ΡΡΠΎ Π΄Π»Ρ Π½Π΅Π±ΠΎΠ»ΡΡΠΎΠ³ΠΎ Π΄ΠΎΠΌΠ°ΡΠ½Π΅Π³ΠΎ ΠΊΠ°Π±ΠΈΠ½Π΅ΡΠ°.



ΠΡΠΎΡ Π»Π°ΠΊΠΎΠ½ΠΈΡΠ½ΡΠΉΒ ΠΈΠ½ΡΠ΅ΡΡΠ΅Ρ β ΡΡΠΊΠΈΠΉ ΠΏΡΠΈΠΌΠ΅Ρ ΡΠΎΠ²ΡΠ΅ΠΌΠ΅Π½Π½ΠΎΠ³ΠΎ ΠΌΠΈΠ½ΠΈΠΌΠ°Π»ΠΈΠ·ΠΌΠ°. Π‘Π²Π΅ΡΠ»ΡΠ΅ ΡΠ²Π΅ΡΠ° ΠΎΡΠ΄Π΅Π»ΠΊΠΈ ΠΏΠ΅ΡΠ΅ΠΊΠ»ΠΈΠΊΠ°ΡΡΡΡ Ρ ΡΠ΅ΠΊΡΡΡΡΠΎΠΉ ΡΠ°Π½Π΅ΡΡ ΠΈ ΡΠ΅ΡΠΎ-Π³ΠΎΠ»ΡΠ±ΡΠΌΠΈ Π²ΡΡΠ°Π²ΠΊΠ°ΠΌΠΈ. ΠΡΡ Π½Ρ ΠΈ Π³ΠΎΡΡΠΈΠ½Π°Ρ ΠΎΡΡΠ°Π»ΠΈΡΡ Π΅Π΄ΠΈΠ½ΡΠΌ ΠΎΡΠΊΡΡΡΡΠΌ ΠΏΡΠΎΡΡΡΠ°Π½ΡΡΠ²ΠΎΠΌ, ΡΠ°Π·Π΄Π΅Π»Π΅Π½Π½ΡΠΌ Π½Π° Π·ΠΎΠ½Ρ Π³ΠΎΡΠΎΠ²ΠΊΠΈ ΠΈ ΠΎΡΠ΄ΡΡ Π° Ρ ΠΎΠ±Π΅Π΄Π΅Π½Π½ΡΠΌ ΡΡΠΎΠ»ΠΎΠΌ Π½Π° 4-5 ΡΠ΅Π»ΠΎΠ²Π΅ΠΊ.


ΠΡΠΈΠΌΠ΅ΡΡ Π΄ΠΈΠ·Π°ΠΉΠ½Π΅ΡΡΠΊΠΎΠ³ΠΎ ΠΎΡΠΎΡΠΌΠ»Π΅Π½ΠΈΡ Π² ΡΠ°Π·Π½ΡΡ ΠΊΠΎΠΌΠ½Π°ΡΠ°Ρ
Π£ΠΊΡΠ°ΡΠ°Ρ ΠΎΠΊΠΎΠ½Π½ΡΠ΅ ΠΏΡΠΎΠ΅ΠΌΡ Π² ΡΠ°Π·Π½ΡΡ ΠΊΠΎΠΌΠ½Π°ΡΠ°Ρ , ΡΠ»Π΅Π΄ΡΠ΅Ρ ΠΎΡΡΠ°Π»ΠΊΠΈΠ²Π°ΡΡΡΡ ΠΎΡ ΠΈΡ ΡΠΏΠ΅ΡΠΈΡΠΈΠΊΠΈ. ΠΠ°ΠΏΡΠΈΠΌΠ΅Ρ, Π² ΡΠΏΠ°Π»ΡΠ½Π΅ ΡΡΠΎΡΡ ΠΎΠ±ΡΠ·Π°Π½Ρ Π·Π°ΡΠΈΡΠ°ΡΡ ΠΎΡ ΡΠ²Π΅ΡΠ°, ΡΠΎΠ·Π΄Π°Π²Π°ΡΡ ΡΡΡΠ½ΡΡ ΠΎΠ±ΡΡΠ°Π½ΠΎΠ²ΠΊΡ
ΠΡΠΈ Π΄Π΅ΠΊΠΎΡΠΈΡΠΎΠ²Π°Π½ΠΈΠΈ ΠΊΡΡ Π½ΠΈ ΠΎΠ±ΡΠ°ΡΠ°ΡΡ Π²Π½ΠΈΠΌΠ°Π½ΠΈΠ΅ Π½Π° Π΅Π΅ Π³Π°Π±Π°ΡΠΈΡΡ, ΡΠ΄Π°Π»Π΅Π½Π½ΠΎΡΡΡ Π·Π°Π½Π°Π²Π΅ΡΠΎΠ² ΠΎΡ ΠΏΠ΅ΡΠΊΠΈ. Π§ΡΠΎΠ±Ρ Π³ΡΠ°ΠΌΠΎΡΠ½ΠΎ ΠΈ ΠΊΡΠ°ΡΠΈΠ²ΠΎ ΠΏΡΠΎΠΈΠ·Π²Π΅ΡΡΠΈ ΠΎΠ±ΡΡΡΡΠΎΠΉΡΡΠ²ΠΎ ΠΏΠΎΠΌΠ΅ΡΠ΅Π½ΠΈΡ, ΡΡΠΎΠΈΡ ΠΏΡΠΈΠ΄Π΅ΡΠΆΠΈΠ²Π°ΡΡΡΡ ΡΡΠ΄Π° ΠΏΡΠΎΡΡΡΡ ΠΏΡΠ°Π²ΠΈΠ»: ΡΡΠΈΡΡΠ²Π°ΡΡ ΠΎΠ±ΡΠΈΠΉ Π΄ΠΈΠ·Π°ΠΉΠ½ ΠΈΠ½ΡΠ΅ΡΡΠ΅ΡΠ°, ΡΠ²Π΅ΡΠΎΠ²ΠΎΠ΅ Π½Π°ΠΏΡΠ°Π²Π»Π΅Π½ΠΈΠ΅, ΡΠ°ΡΡΡΠΎΡΠ½ΠΈΠ΅ ΠΌΠ΅ΠΆΠ΄Ρ ΠΎΠΊΠ½Π°ΠΌΠΈ, ΠΈΡ ΡΠ°Π·ΠΌΠ΅Ρ ΠΈ ΡΠΎΡΠ°Π·ΠΌΠ΅ΡΠ½ΠΎΡΡΡ
ΠΡΡ Π½Ρ-Π³ΠΎΡΡΠΈΠ½Π°Ρ
ΠΡΠ½ΠΎΠ²Π½Π°Ρ ΡΡΡΠ΄Π½ΠΎΡΡΡ Π²ΡΠ±ΠΎΡΠ° ΡΡΠΎΡ Π΄Π»Ρ ΡΠΎΠ²ΠΌΠ΅ΡΠ΅Π½Π½ΠΎΠΉ ΠΊΠΎΠΌΠ½Π°ΡΡ Π·Π°ΠΊΠ»ΡΡΠ°Π΅ΡΡΡ Π² ΡΠΎΠΌ, ΡΡΠΎ ΠΊΡΡ Π½Ρ ΠΈ Π·Π°Π» ΠΎΡΠΎΡΠΌΠ»ΡΡΡΡΡ ΠΏΠΎ-ΡΠ°Π·Π½ΠΎΠΌΡ, Π΄Π»Ρ ΠΊΠ°ΠΆΠ΄ΠΎΠ³ΠΎ ΠΏΠΎΠΌΠ΅ΡΠ΅Π½ΠΈΡ Π΅ΡΡΡ ΡΠ²ΠΎΠΈ ΡΡΠ°Π½Π΄Π°ΡΡΡ. Π‘ΡΠΎΠΈΡ ΡΡΠΈΡΡΠ²Π°ΡΡ ΡΠΎΡ ΡΠ°ΠΊΡ, ΡΡΠΎ ΠΊΡΡ ΠΎΠ½Π½Π°Ρ Π·ΠΎΠ½Π° Ρ Π°ΡΠ°ΠΊΡΠ΅ΡΠΈΠ·ΡΠ΅ΡΡΡ ΠΏΠΎΠ²ΡΡΠ΅Π½Π½ΠΎΠΉ Π²Π»Π°ΠΆΠ½ΠΎΡΡΡΡ, ΠΏΠΎΡΡΠΎΡΠ½Π½ΡΠΌ ΠΈΠ·ΠΌΠ΅Π½Π΅Π½ΠΈΠ΅ΠΌ ΡΠ΅ΠΌΠΏΠ΅ΡΠ°ΡΡΡΡ. ΠΡΠΈ ΡΡΠ»ΠΎΠ²ΠΈΡ ΠΎΠΊΠ°Π·ΡΠ²Π°ΡΡ Π½Π΅Π³Π°ΡΠΈΠ²Π½ΠΎΠ΅ Π²Π»ΠΈΡΠ½ΠΈΠ΅ Π½Π° ΡΠΊΠ°Π½Ρ, ΠΏΠΎΡΡΠΎΠΌΡ Π·Π°Π½Π°Π²Π΅ΡΡ Π΄ΠΎΠ»ΠΆΠ½Ρ ΠΎΡΠ²Π΅ΡΠ°ΡΡ ΡΡΠ΅Π±ΠΎΠ²Π°Π½ΠΈΡΠΌ, Π²ΡΠ΄Π²ΠΈΠ³Π°Π΅ΠΌΡΠΌ ΠΈΠΌΠ΅Π½Π½ΠΎ ΠΊ ΠΊΡΡ Π½Π΅.
Π ΠΏΠ΅ΡΠ²ΡΡ ΠΎΡΠ΅ΡΠ΅Π΄Ρ ΡΡΠΎΠΈΡ ΡΡΠΈΡΡΠ²Π°ΡΡ ΡΠ΄Π°Π»Π΅Π½Π½ΠΎΡΡΡ ΠΎΠ΄Π½ΠΎΠ³ΠΎ ΠΈΠ· ΠΎΠΊΠΎΠ½ ΠΎΡ ΠΏΠ»ΠΈΡΡ. ΠΡΠ»ΠΈ Π³Π°Π·ΠΎΠ²Π°Ρ, ΠΈΠ»ΠΈ ΡΠ»Π΅ΠΊΡΡΠΎΠΏΠ»ΠΈΡΠ° ΡΠ°ΡΠΏΠΎΠ»ΠΎΠΆΠ΅Π½Π° Π±Π»ΠΈΠ·ΠΊΠΎ, ΠΏΡΠ΅Π΄ΠΏΠΎΡΡΠ΅Π½ΠΈΠ΅ ΠΎΡΠ΄Π°ΡΡ ΠΊΠΎΡΠΎΡΠΊΠΈΠΌ ΡΡΠΎΡΠ°ΠΌ, ΠΈΠ½ΠΎΠ³Π΄Π° Π΄ΠΎΠΏΠΎΠ»Π½Π΅Π½Π½ΡΠΌ Π»Π°ΠΌΠ±ΡΠ΅ΠΊΠ΅Π½Π°ΠΌΠΈ. ΠΡΠ»ΠΈ ΠΏΡΠΎΡΡΠ΅Π½ΠΎΠΊ Π½Π΅Π±ΠΎΠ»ΡΡΠΎΠΉ, ΡΠΎ ΠΎΠ±Π° ΠΎΠΊΠΎΠ½Π½ΡΡ ΠΏΡΠΎΠ΅ΠΌΠ° ΠΎΡΠΎΡΠΌΠ»ΡΡΡ ΠΎΠ΄ΠΈΠ½Π°ΠΊΠΎΠ²ΠΎ. ΠΠ»ΠΈΠ½Π½ΡΠ΅ ΠΏΠΎΡΡΡΠ΅ΡΡ Π½Π΅ ΠΏΠΎΠ΄ΠΎΠΉΠ΄ΡΡ ΠΏΠΎ ΡΠΎΠΉ ΠΏΡΠΈΡΠΈΠ½Π΅, ΡΡΠΎ ΠΎΠ½ΠΈ Π²ΠΏΠΈΡΡΠ²Π°ΡΡ Π·Π°ΠΏΠ°Ρ ΠΈ, Π½Π° Π½ΠΈΡ ΠΎΡΠ΅Π΄Π°Π΅Ρ ΠΊΠΎΠΏΠΎΡΡ ΠΈ ΠΆΠΈΡ.
ΠΠΎΠ»ΡΡΠΈΠ΅ ΡΠΎΠ²ΠΌΠ΅ΡΠ΅Π½Π½ΡΠ΅ ΠΊΠΎΠΌΠ½Π°ΡΡ Ρ Ρ ΠΎΡΠΎΡΠ΅ΠΉ Π²ΡΡΡΠΆΠΊΠΎΠΉ ΠΌΠΎΠΆΠ½ΠΎ ΡΠΊΡΠ°ΡΠΈΡΡ ΠΏΠΎ Π²ΡΠ΅ΠΌ ΡΡΠ°Π½Π΄Π°ΡΡΠ°ΠΌ Π³ΠΎΡΡΠΈΠ½ΠΎΠΉ. ΠΠΎΠΆΠ½ΠΎ ΡΡΡΠ°Π½ΠΎΠ²ΠΈΡΡ ΠΌΠ½ΠΎΠ³ΠΎΡΡΠΎΠ²Π½Π΅Π²ΡΠΉ ΠΊΠ°ΡΠ½ΠΈΠ·, ΠΏΠΎΠ²Π΅ΡΠΈΡΡ ΠΊΡΠ°ΡΠΈΠ²ΡΠ΅ Π·Π°Π½Π°Π²Π΅ΡΠΊΠΈ Ρ ΠΌΠ½ΠΎΠ³ΠΎΡΠ»ΠΎΠΉΠ½ΠΎΠΉ Π΄ΡΠ°ΠΏΠΈΡΠΎΠ²ΠΊΠΎΠΉ, ΡΠ²Π΅ΡΡ Ρ Π΄ΠΎΠΏΠΎΠ»Π½ΠΈΡΡ ΠΊΠΎΠΌΠΏΠΎΠ·ΠΈΡΠΈΡ Π»Π°ΠΌΠ±ΡΠ΅ΠΊΠ΅Π½Π°ΠΌΠΈ, ΠΈΡΠΏΠΎΠ»ΡΠ·ΠΎΠ²Π°ΡΡ ΠΎΠ΄Π½Ρ ΠΎΠ±ΡΡΡ Π·Π°Π½Π°Π²Π΅ΡΠΊΡ. ΠΡΠ»ΠΈ ΡΠ΅Π»ΠΎΡΡΠ½ΡΠΉ Π΄ΠΈΠ·Π°ΠΉΠ½ Π½Π΅ ΠΏΡΠ΅Π΄ΡΡΠΌΠΎΡΡΠ΅Π½, Π½Π΅ΠΎΠ±Ρ ΠΎΠ΄ΠΈΠΌΠΎ Π²ΡΠΏΠΎΠ»Π½ΠΈΡΡ Π·ΠΎΠ½ΠΈΡΠΎΠ²Π°Π½ΠΈΠ΅ ΠΏΠΎΠΌΠ΅ΡΠ΅Π½ΠΈΡ, ΠΊΠ°ΠΆΠ΄ΡΠΉ ΠΏΡΠΎΠ΅ΠΌ ΠΌΠΎΠΆΠ½ΠΎ ΠΎΡΠΎΡΠΌΠΈΡΡ ΡΠ°Π·Π½ΡΠΌΠΈ Π²ΠΈΠ΄Π°ΠΌΠΈ ΡΠ΅ΠΊΡΡΠΈΠ»Ρ.
ΠΠΎΡΡΠΈΠ½Π°Ρ
ΠΠ΅ΡΠΌΠΎΡΡΡ Π½Π° Π²Π°ΡΠΈΠ°Π½ΡΡ ΡΠ°ΡΠΏΠΎΠ»ΠΎΠΆΠ΅Π½ΠΈΡ, Π΄Π²Π° ΠΎΠΊΠ½Π° Π² Π³ΠΎΡΡΠΈΠ½ΠΎΠΉ Π·Π°ΠΉΠΌΡΡ ΠΌΠ½ΠΎΠ³ΠΎ ΠΏΡΠΎΡΡΡΠ°Π½ΡΡΠ²Π°. ΠΡΠΎ ΡΠΎΠ·Π΄Π°ΡΡ ΠΎΠΏΡΠ΅Π΄Π΅Π»Π΅Π½Π½ΡΠ΅ ΡΡΡΠ΄Π½ΠΎΡΡΠΈ, ΠΌΠ΅Π±Π΅Π»Ρ Π±ΡΠ΄Π΅Ρ ΡΠ»ΠΎΠΆΠ½ΠΎ ΡΠ°ΡΡΡΠ°Π²Π»ΡΡΡ. Π’Π°ΠΊΠΈΠ΅ ΠΏΡΠΎΠ±Π»Π΅ΠΌΡ Π»Π΅Π³ΠΊΠΎ ΡΠ΅ΡΠΈΡΡ, Π΅ΡΠ»ΠΈ Π³ΡΠ°ΠΌΠΎΡΠ½ΠΎ ΠΈΡΠΏΠΎΠ»ΡΠ·ΠΎΠ²Π°ΡΡ Π±Π»ΠΈΠΆΠ°ΠΉΡΠΈΠ΅ Π·ΠΎΠ½Ρ. ΠΠΈΠ·ΠΊΠΈΠ΅ ΠΏΠΎΠ΄ΠΎΠΊΠΎΠ½Π½ΠΈΠΊΠΈ ΡΠ΄Π°ΡΠ½ΠΎ ΠΏΠ΅ΡΠ΅Π΄Π΅Π»ΡΠ²Π°ΡΡΡΡ Π² ΡΡΡΠ½ΡΠ΅ Π΄ΠΈΠ²Π°Π½ΡΠΈΠΊΠΈ, Π²ΡΡΠΎΠΊΠΈΠ΅ ΠΌΠΎΠ³ΡΡ ΡΡΠ°ΡΡ ΠΎΡΠΈΠ³ΠΈΠ½Π°Π»ΡΠ½ΡΠΌΠΈ ΡΡΠΎΠ»ΠΈΠΊΠ°ΠΌΠΈ. Π¨ΠΈΡΠΎΠΊΠΈΠ΅ ΠΏΡΠΎΡΡΠ΅Π½ΠΊΠΈ ΠΌΠ΅ΠΆΠ΄Ρ Π»ΠΈΠ½Π΅ΠΉΠ½ΡΠΌΠΈ, ΡΠ³Π»ΠΎΠ²ΡΠΌΠΈ ΠΎΠΊΠ½Π°ΠΌΠΈ ΠΌΠΎΠΆΠ½ΠΎ ΠΈΡΠΏΠΎΠ»ΡΠ·ΠΎΠ²Π°ΡΡ Π΄Π»Ρ ΠΏΠΎΠ»ΠΎΠΊ, ΠΆΠΈΠ²ΡΡ ΡΠ°ΡΡΠ΅Π½ΠΈΠΉ Π² Π±ΠΎΠ»ΡΡΠΈΡ Π³ΠΎΡΡΠΊΠ°Ρ .
ΠΠ½ΡΠ΅ΡΡΠ΅Ρ ΠΈΠ·Π±ΡΡΠΎΡΠ½ΠΎ ΡΠ²Π΅ΡΠ»ΠΎΠΉ ΠΊΠΎΠΌΠ½Π°ΡΡ Π»ΡΡΡΠ΅ ΠΎΡΠΎΡΠΌΠ»ΡΡΡ Ρ Π½Π΅ΠΊΠΎΡΠΎΡΠΎΠΉ ΠΏΠΎΠΌΠΏΠ΅Π·Π½ΠΎΡΡΡΡ ΠΈ ΡΡΡΠΆΠ΅Π»ΡΡΡΠΈΠΌΠΈ Π°ΠΊΡΠ΅ΡΡΡΠ°ΡΠ°ΠΌΠΈ. ΠΡΠ»ΠΈΡΠ½ΠΎ ΠΏΠΎΠ΄ΠΎΠΉΠ΄ΡΡ ΡΡΠΈΠ»ΠΈ, Π±ΠΎΠ³Π°ΡΡΠ΅ ΡΠ΅ΠΊΡΡΠΈΠ»ΡΠ½ΡΠΌΠΈ ΡΠ»Π΅ΠΌΠ΅Π½ΡΠ°ΠΌΠΈ: Π±Π°ΡΠΎΠΊΠΊΠΎ, Π²ΠΎΡΡΠΎΡΠ½ΡΠΉ, ΡΡΠ°Π΄ΠΈΡΠΈΠΎΠ½Π½ΡΠΉ ΠΊΠ»Π°ΡΡΠΈΡΠΈΠ·ΠΌ. ΠΠ°Π½ΠΎΡΠ°ΠΌΠ½ΡΠ΅ ΠΎΠΊΠ½Π° Ρ ΠΌΠΈΠ½ΠΈΠΌΠ°Π»ΡΠ½ΡΠΌΠΈ ΠΏΡΠΎΡΡΠ΅Π½ΠΊΠ°ΠΌΠΈ Π² ΡΡΠΈ ΠΈ Π±ΠΎΠ»Π΅Π΅ ΠΎΠΊΠ½Π° ΠΏΡΠΎΡΡΠΎ ΡΠΎΠ·Π΄Π°Π½Ρ Π΄Π»Ρ Π»ΠΎΡΡΠ°.
Π‘ΠΏΠ°Π»ΡΠ½Ρ
ΠΠ²Π° ΠΎΠΊΠ½Π° Π² ΡΠΏΠ°Π»ΡΠ½Π΅ ΠΏΡΠ΅Π΄ΡΡΠ°Π²Π»ΡΡΡ Π±ΠΎΠ»ΡΡΠΈΠ΅ Π²ΠΎΠ·ΠΌΠΎΠΆΠ½ΠΎΡΡΠΈ Π΄Π»Ρ ΠΎΡΠΎΡΠΌΠ»Π΅Π½ΠΈΡ. ΠΡΠ»ΠΈ ΡΡΠΎ ΡΠ³Π»ΠΎΠ²ΡΠ΅ ΠΏΡΠΎΠ΅ΠΌΡ, ΠΈΡ ΠΌΠΎΠΆΠ½ΠΎ ΠΎΠ±ΡΠ΅Π΄ΠΈΠ½ΠΈΡΡ ΠΎΠ±ΡΠΈΠΌ ΠΊΠ°ΡΠ½ΠΈΠ·ΠΎΠΌ, ΠΎΡΠ³Π°Π½ΠΈΠ·ΠΎΠ²Π°Π² ΡΡΠ΄ΠΎΠΌ Π·Π΅Π»Π΅Π½ΡΠΉ ΡΡΠ°ΡΡΠΎΠΊ Ρ ΠΆΠΈΠ²ΡΠΌΠΈ ΡΠ²Π΅ΡΠ°ΠΌΠΈ. Π’Π°ΠΊΠΆΠ΅ ΡΠΌΠ΅ΡΡΠ½ΠΎ Π² ΡΡΠΎΠΌ ΡΠ³Π»Ρ ΠΏΠΎΡΡΠ°Π²ΠΈΡΡ ΠΊΡΠ΅ΡΠ»ΠΎ ΠΈ ΡΡΠΌΠ±Ρ. ΠΠ°Π½ΡΠ°ΡΠ΄Π½ΡΠ΅ ΠΎΠΊΠ½Π° Π²ΡΠ΅Π³Π΄Π° ΡΠΌΠΎΡΡΡΡΡΡ ΠΎΡΠΈΠ³ΠΈΠ½Π°Π»ΡΠ½ΠΎ. ΠΠΎΠ΄ Π½ΠΈΠΌΠΈ ΠΌΠΎΠΆΠ½ΠΎ ΡΠ°ΡΠΏΠΎΠ»ΠΎΠΆΠΈΡΡ Π΄ΠΈΠ²Π°Π½, ΡΡΠΎΠ± Π»ΡΠ±ΠΎΠ²Π°ΡΡΡΡ Π² ΡΠ΅ΠΌΠ½ΠΎΡΠ΅ Π½ΠΎΡΠ½ΡΠΌ Π½Π΅Π±ΠΎΠΌ. ΠΠ»Ρ ΡΠ°ΠΊΠΎΠ³ΠΎ Π²Π°ΡΠΈΠ°Π½ΡΠ° ΡΠ»Π΅Π΄ΡΠ΅Ρ ΠΏΡΠ΅Π΄ΡΡΠΌΠΎΡΡΠ΅ΡΡ ΠΏΠ»ΠΎΡΠ½ΡΠ΅, ΡΡΠ½ΠΊΡΠΈΠΎΠ½Π°Π»ΡΠ½ΡΠ΅ ΡΡΠΎΡΡ. Π£ΡΠΈΡΡΠ²Π°Ρ Π½Π°ΠΊΠ»ΠΎΠ½Π½ΠΎΠ΅ ΡΠ°ΡΠΏΠΎΠ»ΠΎΠΆΠ΅Π½ΠΈΠ΅, Π΄Π½Π΅Π²Π½ΠΎΠΉ ΡΠ²Π΅Ρ Π±ΡΠ΄Π΅Ρ Π½Π°ΠΏΠΎΠ»Π½ΡΡΡ ΠΊΠΎΠΌΠ½Π°ΡΡ Π½Π° ΠΏΡΠΎΡΡΠΆΠ΅Π½ΠΈΠΈ Π²ΡΠ΅Π³ΠΎ ΡΠ²Π΅ΡΠΎΠ²ΠΎΠ³ΠΎ Π΄Π½Ρ.
ΠΠ°Π»Π΅Π½ΡΠΊΠΈΠ΅ ΠΎΠΊΠ½Π° Π½Π° ΠΎΠ΄Π½ΠΎΠΉ ΡΡΠ΅Π½Π΅ ΠΌΠΎΠΆΠ½ΠΎ Π΄Π΅ΠΊΠΎΡΠΈΡΠΎΠ²Π°ΡΡ ΠΊΡΠ°ΡΠΈΠ²ΠΎΠΉ ΠΏΠΎΠ΄ΡΠ²Π΅ΡΠΊΠΎΠΉ. Π‘Π²Π΅ΡΠΎΠ΄ΠΈΠΎΠ΄Ρ Π±ΡΠ΄ΡΡ ΠΈΠ³ΡΠ°ΡΡ ΡΠΎΠ»Ρ Π½ΠΎΡΠ½ΠΈΠΊΠ°. Π ΠΏΡΠΎΡΡΠΎΡΠ½ΡΡ ΡΠΏΠ°Π»ΡΠ½ΡΡ Ρ Π½Π΅ΡΠΊΠΎΠ»ΡΠΊΠΈΠΌΠΈ ΠΏΡΠΎΠ΅ΠΌΠ°ΠΌΠΈ ΠΎΡΠ»ΠΈΡΠ½ΠΎ ΡΠΌΠΎΡΡΡΡΡΡ ΡΡΠ°Π½ΡΡΠ·ΡΠΊΠΈΠ΅ ΡΡΠΎΡΡ Π½Π° Π½Π΅ΡΠΊΠΎΠ»ΡΠΊΠΈΡ ΠΊΠ°ΡΠ½ΠΈΠ·Π°Ρ , ΠΈΡ Π½Π΅ΠΎΠ±Ρ ΠΎΠ΄ΠΈΠΌΠΎ ΠΎΠ±ΡΡΠ°Π²Π»ΡΡΡ Π³Π°ΡΠΌΠΎΠ½ΠΈΡΡΡΡΠ΅ΠΉ ΠΏΠΎ ΡΡΠΈΠ»Ρ ΠΌΠ΅Π±Π΅Π»ΡΡ.
ΠΡΡ Π½Ρ
ΠΠ²Π° ΠΎΠΊΠ½Π° Π½Π° ΠΊΡΡ Π½Π΅ β ΡΠ°ΠΌΡΠΉ Π»ΡΡΡΠΈΠΉ Π²Π°ΡΠΈΠ°Π½Ρ ΠΈΠ· Π²ΡΠ΅Ρ ΠΊΠΎΠΌΠ½Π°Ρ Π΄ΠΎΠΌΠ° ΠΈΠ»ΠΈ ΠΊΠ²Π°ΡΡΠΈΡΡ. Π’Π°ΠΊΠ°Ρ ΠΏΠ»Π°Π½ΠΈΡΠΎΠ²ΠΊΠ° Π½Π΅ Π½Π΅ΡΠ΅Ρ ΠΏΡΠΎΠ±Π»Π΅ΠΌ Ρ ΡΠ°ΡΡΡΠ°Π½ΠΎΠ²ΠΊΠΎΠΉ ΠΌΠ΅Π±Π΅Π»ΠΈ. Π‘ΡΠΎΠ»Π΅ΡΠ½ΠΈΡΡ ΡΠ°ΡΠ΅ ΠΎΠΏΡΠ΅Π΄Π΅Π»ΡΡΡ ΠΏΠΎΠ΄ ΠΎΠΊΠ½Π°ΠΌΠΈ Π²Π΄ΠΎΠ»Ρ ΡΡΠ΅Π½Ρ, ΡΡΠΎ ΠΏΠΎΠ·Π²ΠΎΠ»ΡΠ΅Ρ ΠΎΠ·Π°ΡΠΈΡΡ Π΅Π΅ ΠΌΠ°ΠΊΡΠΈΠΌΠ°Π»ΡΠ½ΡΠΌ ΠΊΠΎΠ»ΠΈΡΠ΅ΡΡΠ²ΠΎΠΌ ΡΠ²Π΅ΡΠ°. ΠΠΎΠ΄Π²Π΅ΡΠ½ΡΠ΅ ΡΠΊΠ°ΡΡΠΈΠΊΠΈ Π²Π΅ΡΠ°ΡΡ Π½Π° ΡΠ²ΠΎΠ±ΠΎΠ΄Π½ΡΠ΅ ΠΌΠ΅ΡΡΠ° ΠΈΠ»ΠΈ Π½Π°Π΄ ΠΎΠ±Π΅Π΄Π΅Π½Π½ΡΠΌ ΡΡΠΎΠ»ΠΎΠΌ.
ΠΡΠ»ΠΈ ΠΎΠΊΠ½Π° ΡΠ°ΡΠΏΠΎΠ»ΠΎΠΆΠ΅Π½Ρ Π½Π° ΠΏΡΠΎΡΠΈΠ²ΠΎΠΏΠΎΠ»ΠΎΠΆΠ½ΡΡ ΡΡΠ΅Π½Π°Ρ , Π·ΠΎΠ½Ρ ΠΏΠΎΠ΄ ΠΎΠ΄Π½ΠΈΠΌ ΠΈΠ· Π½ΠΈΡ Π½Π°Π΄ΠΎ ΠΎΠ±ΡΠ·Π°ΡΠ΅Π»ΡΠ½ΠΎ Π·Π°Π½ΡΡΡ ΠΌΠΎΠΉΠΊΠΎΠΉ. ΠΡΠΈ ΠΌΡΡΡΠ΅ ΡΠ°ΡΠ΅Π»ΠΎΠΊ ΠΌΠΎΠΆΠ½ΠΎ Π»Π΅Π³ΠΊΠΎ ΡΠ°ΡΡΠΌΠΎΡΡΠ΅ΡΡ Π½Π΅ΠΏΡΠΈΠΌΠ΅ΡΠ½ΡΠ΅ Π·Π°Π³ΡΡΠ·Π½Π΅Π½ΠΈΡ. Π¨ΡΠΎΡΡ Π½Π° ΠΊΡΡ Π½Π΅ Ρ Π½Π΅ΡΠΊΠΎΠ»ΡΠΊΠΈΠΌΠΈ ΠΏΡΠΎΠ΅ΠΌΠ°ΠΌΠΈ Π΄ΠΎΠ»ΠΆΠ½Ρ Π±ΡΡΡ ΠΎΠ±ΡΠ·Π°ΡΠ΅Π»ΡΠ½ΠΎ. ΠΡΠ±ΠΈΡΠ°ΡΡ ΡΠ»Π΅Π΄ΡΠ΅Ρ ΠΈΠ· ΠΏΡΠ°ΠΊΡΠΈΡΠ½ΡΡ Π²Π°ΡΠΈΠ°Π½ΡΠΎΠ², ΠΏΠΎΠ΄ΠΎΠΉΠ΄ΡΡ ΡΡΠ»ΠΎΠ½Π½ΡΠ΅, ΠΆΠ°Π»ΡΠ·ΠΈ.



















![ΠΠΈΠ·Π°ΠΉΠ½ ΠΊΠ²Π°ΡΡΠΈΡΡ-ΡΡΡΠ΄ΠΈΠΈ 30 ΠΊΠ². ΠΌ. [80+ ΡΠΎΡΠΎ] ΠΏΠ»Π°Π½ΠΈΡΠΎΠ²ΠΊΠΈ, Π·ΠΎΠ½ΠΈΡΠΎΠ²Π°Π½ΠΈΠ΅](http://suhanovo-usadba.ru/wp-content/uploads/5/4/6/546140b4ab2b5771cceee73c8c0fc90d.jpeg)




