Дополнительные помещения
Нередко в домах небольшие кухни. Чтобы максимально увеличить их площадь, вместо подоконника закажите столешницу, которая будет объединена с рабочей поверхностью. Закажите подвесные шкафы до потолка: вы можете на верхние полки установить предметы и посуду, которой редко пользуетесь.
В последнее время многие хозяйки не пользуются духовками. Вместо обычной печи установите варочную поверхность, а пространство под ней превратите в шкафчик.

Дополнительная рабочая поверхность на кухне
В туалетных комнатах рационально установить водонагреватель. Его несложно спрятать за декоративной съемной панелью. Если вы не являетесь приверженцем многочасовых ванн и в семье нет маленьких детей, замените ванну на душевую кабинку или гидробокс. На освободившееся место установите стиральную машинку.

Душевая кабина со стиральной машиной в одном помещении
Отделка бани внутри своими руками (+200 Фото). Дизайны и Планировка красивых интерьеров
Перепланировка трехкомнатной квартиры в четырехкомнатную
В последнее время становится популярным кардинальное зонирование жилья, когда все пространство квартиры делится на общественную и спальную зону. Этот проект – прекрасный пример, как небольшую трешку превратить в удобное четко отзонированное пространство.
- 1 из 1
На фото:
Светлая лаконичная мебель и большое количество зеркал превратили небольшое помещение в просторную гостевую зону.
Сведения о квартире: 3-комнатная квартира площадью 127 кв. м на 7-ом этаже 9-ти этажного дома в центре Кишинева.
Владельцы квартиры: молодая семейная пара.
Пожелания клиентов: сделать три спальные комнаты.
План 4-комнатной квартиры после кардинальной перепланировки трехкомнатной квартиры.
Изначальная планировка квартиры была полностью изменена. Из гостиной, расположенной в глубине квартиры, сделали две дополнительные спальни, а новая гостиная заняла пространство прихожей и прилегающей к ней комнаты.
Интересная находка – стеклянный проем между кухней и коридором. Так архитектор Евгений Трифан решил проблему темного коридора – в дневное время его освещает естественный свет из кухни.
Системы хранения со светлыми фасадами, белые стены и зеркала визуально увеличивают и освежают пространство квартиры.
Кухня исключительно функциональна — все бытовые приборы спрятаны в кухонной мебели. Столовая зона примыкает к гостиной. При необходимости ее можно скрыть, задвинув стеклянные двери и задернув шторы.
Для каждой спальни были подобраны художественные фотографии, они стали визитными карточками спальных комнат.
Вместо стандартных бра в этой спальне использовались оригинальные светильники в виде прожекторов.
Ванная комната — самая главная лаунж-зона всей квартиры. Имитация окна с видом на океан, теплые натуральные материалы, направленное освещение — все это создает ощущение покоя и умиротворенности и помогает отрешиться от городской суеты.
Планировка интерьера, Трехкомнатные квартиры, Четырехкомнатные квартиры, Молдавия, Кишинев, Квартиры, Интерьер, Описания проектов, 3D, Трифан Евгений
- Комментировать в FB
- Комментировать в VK
Особенности перепланировок трехкомнатных квартир
Кроме самих комнат, в квартире имеется санузел (чаще всего раздельный), сравнительно просторная кухня, прихожая, балкон или лоджия, кладовка. Стены, расположенные между комнатами, чаще всего капитальные, несущие, потому сносить их полностью запрещается, а на частичный демонтаж требуется разрешение.

В первую очередь планировка на прямую зависит от количества проживающих в квартире человек и их запросов.
Самое главное при «перестройке» небольшой «трешки» – можно аккуратно уместить все необходимое. Минимальная площадь такой типовой квартиры – около 50 кв. м., максимальная – больше, чем 90 кв. м. При наличии проходных комнат, их обычно стараются сделать отдельными. Когда кухня тесновата, ее присоединяют к гостиной, объединяют с лоджией.

Перед тем как приступить к перепланировке, важно провести тщательное ознакомление с планом жилого пространства
4 вариант
В четырёхкомнатной квартире был большой коридор из которого были отдельные входы на кухню и во все комнаты, а также в туалет и в ванную. После перепланировки четырехкомнатной хрущевки в этой квартире объединили две небольшие смежные комнаты и часть коридора и в результате получили большой просторный зал, обеденную зону, кухню и небольшой коридор.
Перепланировка 4 комнатной квартиры хрущевки в трёхкомнатную
При такой перепланировке 3х комнатной квартиры сносятся перегородки между смежными комнатами и коридором, поэтому необходимо будет получить разрешение на перепланировку. Обычно в четырёхкомнатных квартирах живёт много людей и поэтому по утрам появляется очередь в туалет и чтобы этого избежать можно поставить дополнительный унитаз в ванную комнату. Если делать дополнительный туалет то должно соблюдаться правило в котором говорится что обязательно вход в один из туалетов должен быть из коридора.
Дизайн-проект 3-комнатной квартиры площадью 61 кв. м.
3 4 10 3
Дизайн-проект квартиры выполнен в современном стиле – с признаками минимализма и эко-стиля. Он отличается широким применением текстуры дерева и естественной цветовой гаммой с оттенками белого, серого и коричневого. В результате получилось функциональное и комфортное для жизни пространство, наполненное теплой расслабляющей атмосферой.
Кухня-гостиная
В дизайн-проекте 3-комнатной квартиры в отделке гостиной доминирует текстура дерева, переходящая со стены на потолок. Неповторимой вид интерьеру придает прямоугольная конструкция с аквариумом, которая не выглядит громоздко благодаря подсветке по периметру. Великолепное панно в верхней части конструкции и оригинальные часы на стене – стильные дополнения дизайн-проекта.
Меблировка комнаты состоит из просторного дивана с интересной фактурой ткани и закрепленной на стену полки, над которой установили панель темной окраски – идеальный фон для экрана и декора.
Рабочее пространство расположено в нише, где установлен угловой гарнитур с белыми фасадами в минималистичном стиле. Удобное расположение бытовой техники упрощает приготовление блюд, а отделка фартука «под дерево» поддерживает общую идею дизайн-проекта 3-комнатной квартиры.
Столовая зона подчеркнута эксклюзивными подвесами с отражающей поверхностью. Овальная форма столешницы и акцентная желтая окраска стульев позволила оживить дизайн-проект, придать ему свежесть.
Спальня
В оформлении спальни присутствуют те же элементы оформления, что и в дизайн-проекте гостиной, а для придания индивидуальности использовали монохромные изображения в рамках и необычные предметы декора. Кроме кровати, спальня содержит встроенные шкафы и рабочее место возле окна с полками для книг по краям.
Детская
Пространство оформлено в приятных светлых тонах. Комплект встроенной мебели позволил создать рабочее место и разместить книги, а также телевизор с акустикой.
В дизайн-проекте 3-комнатной квартиры детская комната выглядит очень стильно благодаря интересному абстрактному рисунку на стене.
Санузел
В дизайн-проекте санузла строгие линии и отделка в белом цвете удачно дополнены «теплыми» фрагментами в коричневых тонах и панно с природным мотивом.
Архитектор:Art-Ugol
Год строительства:2016 г.
Страна:Россия, Новосибирск
Площадь:61 м2
Площадь
- Стандарт сейчас: от 56 до 80 кв.м, где гостиная от 15, спальня от 12, вторая спальня от 10 и кухня от 9 кв. м.
- Сталинка: 69-78/ 41-53/ 8-12 м². Или другой вариант: 54-59/ 39-45/ 6 м²
- Хрущевка: 65-71/ 7 м².
- Квартиры более 90 кв. м. – элитные.
Постепенно отходит в прошлое известная «чешка», а уровень потолков повышается до 3-х м. Имеются свободные участки, которые легко зонируются, увеличивается таким образом жилая функциональность.
Современные квартиры с тремя комнатами довольно комфортные и рациональные. Подходит для большой или средней семьи. Варианты настолько удобны, что перепланировку редко делают. Такой тип жилья свободен в пользовании пространством. А планировка выбирается в зависимости от предпочтений членов семьи.
Цвета оформления
С помощью дизайнерских приемов можно визуально избавиться от недостатков планировки. Например, маленькие комнаты можно визуально увеличить, если сделать стены светлыми.
Для оформления стен лучше всего подходят молочный белый, бежевый и светло-коричневый оттенки. Яркие акцентные цвета выгодно выделят комнату и сделают ее выразительной.
Белый цвет дизайнеры часто комбинируют с зеленым. Именно эти два цвета вместе улучшают настроение и способствуют расслаблению. Например, в светлых комнатах будет выгодно смотреться зеленая мебель, узоры на занавесках. Также дизайнеры рекомендуют делать акцентный цвет во всех комнатах одинаковым, не смотря на разный фоновый цвет.
Санузлы декорировать не рекомендуется, так как эта комната должна быть исключительно функциональной.
Фото квартиры в различных стилях
Неоклассика отличается особой опрятностью и роскошью. В интерьере присутствуют изящные аксессуары, декоративные элементы и растительные орнаменты. В оформлении такого дизайна соблюдаются строгие пропорции и приветствуется лаконичность.
Для классического направления уместны акцентные детали в виде картин или зеркал в изящных рамах, столов на резных ножках и дивана с бархатной или атласной обшивкой. Окна идеально украсят массивные портьеры, а завершающим штрихом станет шикарная дорогая люстра.
На фото дизайн кухни-гостиной в двухкомнатной квартире 70 кв., оформленной в современном стиле.
Скандинавский интерьер выполняется в белой, либо пастельной цветовой палитре. Элементы мебели имеют натуральные оттенки или яркое исполнение. Общий фон разбавляют красочными элементами в виде картин, ваз, посуды, зеленых растений или прочих деталей оживляющих пространство.
В стиле прованс предполагается светлая гамма в комбинации с натуральными материалами. Отличительной чертой является наличие оштукатуренных стен, имеющих небольшие неровности, деревянной мебели, узорчатого текстиля и цветочных растений. Особенно выгодно обстановку дополнят винтажные конструкции, керамика, натуральные ткани и другие аутентичные детали.
На фото кухня-гостиная, совмещенная с балконом в интерьере квартиры 70 кв., в стиле неоклассика.
Стиль лофт предполагает помещение с высокими потолками, широкими оконными проемами и демонтированными перегородками. Для отделки уместно использование строительного кирпича, или его имитации. Атмосферу промышленного дизайна можно дополнить трубами или железобетонными конструкциями. Необычный акцент создаст современная техника на фоне голых необработанных стен.
На фото интерьер кухни в скандинавском стиле в трешке 70 квадратных метров.
Деревенские нотки в интерьере лофта
Поскольку большая часть мебели выдержана в стиле лофт, а цвета прохладные, можно ожидать, что интерьер будет холодным. Однако этого не произошло. Что, несомненно,благодаря сучковатым деревянным элементам в деревенском стиле, которых здесь много. Это не только пол, но и часть мебели, выполненная на заказ по задумке дизайнера. Этот материал привносит атмосферу домашнего тепла и уюта, необычную для стиля лофт.

В спальне для изготовления мебели использовалась также переработанная древесина. Из этого материала изготовлены тумбочки, комод, кровать с изголовьем и даже зеркальная рама.

Комната самого маленького члена семьи выполнена в тех же цветах, что и остальная часть квартиры. Радостная нота привнесена акцентами желтого цвета, которые появляются на ковре и лампе. Мебель достаточно прочная, чтобы хорошо служить ребенку, когда вырастет.
Перепланировка: умное использование существующего пространства
Первый шаг в превращении 3 комнат в 4 — это креативное использование существующего пространства. Перепланировка позволяет вам преобразовать уже существующие помещения, не трогая стены или создавая новые. Сначала определите, какие помещения вы готовы объединить. Возможно, у вас есть гостиная, столовая и кабинет, которые можно превратить в открытое пространство. Далее, задумайтесь о том, как можно разделить это помещение на функциональные зоны. Например, вы можете использовать стол-бар или книжную полку в качестве разделителя. Это поможет создать впечатление отдельных комнат, сохраняя при этом свет и пространство.
Теперь, когда вы определились с планом разделения пространства, подумайте о том, какие изменения нужно внести. Может быть, вы захотите добавить новую мебель или переставить существующую, чтобы подчеркнуть новые функциональные зоны. Имейте в виду, что только ваша фантазия будет ограничивать вас.
Добавление эстакады или второго этажа: вертикальное разделение помещений
Если у вас достаточно высоты потолков, то добавление эстакады или даже второго этажа может быть отличным способом создать новое помещение. Этот подход особенно подходит для домов с открытой планировкой, где вертикальное пространство может быть недостаточно использовано.
Установка эстакады или второго этажа позволит вам разделить вашу комнату на два или более отдельных пространства. Вы сможете использовать верхнюю часть как спальню или офис, а нижнюю часть — как гостиную или кабинет
Важно убедиться, что новое пространство будет соответствовать вашим потребностям и будет сочетаться с остальной частью дома
Легкий лофт | Трансформация 3-х комнатной квартиры в 4-х комнатную
Гостиная-кухня
Зона гостиной выполнена в песочной цветовой гамме, а кухни – наоборот, в белой. Таким образом, вместе они образуют контраст, который чувствуется и в материалах — глянцевый керамогранит, матовая декоративная штукатурка, грубый кирпич, дерево на полу.

В гостиной собрано много природных материалов, здесь есть как картины с галькой, так и натуральная природная галька. Форма стен искривлена и приближена к форме камня, при этом на них нанесена грубая декоративная штукатурка под камень. Кирпич на стенах также натуральный, все перегородки в квартире сделаны из кирпича. Пространство разделено на зоны.

Детская
ч
Детская предназначена для ребенка, которому сейчас еще 1,5 года, но интерьер построен так, что детская будет актуальна и когда ребенок станет старше. В ней много желтых, солнечных оттенков. Изначально запроектировано место для рабочего стола, который понадобится в дальнейшем. Помещение детской объединено с балконом, поэтому его конфигурация сложная и интересная. Есть зона для сна, а рядом расположен шкаф для одежды. Есть здесь также и учебная зона для занятий, а также зона для пассивного отдыха с диваном и зона для активного отдыха. Во всю стену нарисована карта мира, на которой можно рисовать мелом, что всегда очень нравится детям. Деление на зоны поддержано индивидуальным освещением.

Ванная
Ванная выходит в спальню родителей, поэтому предназначена только для хозяев. Интерьер ванной создан в природных оттенках и материалах. Дерево на стене, плитка под камень, светильники натуральных форм, галька на полу. Потолок затемнен, что создает ощущение уюта и уединенности.

Санузел
Помещение предназначалось в качестве гостевого и детского санузла. По цветовому решению и стилю санузел продолжает идею гостиной. В нем использованы также различные материалы – декоративная штукатурка, керамогранит под дерево, мозаика, белая глянцевая плитка, матовое стекло с печатью. В этом санузле есть и техническая составляющая – в шкафу расположены стиральная машина и водонагреватель.

Особенности дизайна больших квартир
Создавая концепцию квартиры, необходимо брать во внимание следующие нюансы:
- Каждое помещение большой квартиры несет одну функциональную нагрузку. Если в двухкомнатных апартаментах, гостиная это одновременно место для приема гостей и спальня, то в четырехкомнатной квартире – это только уголок для приема гостей.
- Такая недвижимость позволяет сделать планировку, невозможную с ограниченным количеством спален – обустроить кабинет, спортзал, библиотеку и т.д.;
- Если 4 комнаты в распоряжении небольшой семьи – возможно сделать удачную перепланировку – организовать просторную совмещенную гостиную и кухню для шумных вечеринок и несколько небольших спален.
- Как правило, четырехкомнатная квартира – угловая, поэтому требует утепления наружных стен.
15 вариантов планировки трёхкомнатной квартиры
Для большой семьи каждый сантиметр площади и его грамотное использование уже будет играть важную роль в сохранении мира и душевной гармонии.
Планируя квартиру с двумя отдельными спальнями и общей комнатой, предусмотрите место для всей семьи и личные уголки для каждого. Вам может помочь объединить пространство открытая планировка и совмещение, например гостиной с кухней, но оставьте себе и возможность для уединения.
Вариант №1
Устройте на лоджии уютный уголок для чаепития или работы. А в детской спальне множество проблем решит двухэтажная кровать вместо двух отдельных. Больше места для игр, при этом у каждого ребёнка — своя территория для отдыха.
Вариант №2
Удачная планировка этой квартиры обеспечила окном каждую комнату. Обязательно используйте все возможности естественного освещения — полезного для самочувствия и настроения. Без света можно оставить разве что технические помещения, вроде кладовой или прихожей, но не спальню или гостиную.
Вариант №3
Даже в комнатах с открытой планировкой не избежать правильного зонирования, помогающего выжать максимум пользы из пространства. Для отделения зоны отдыха от обеденного уголка в гостиной используйте ковры и освещение. Для выделения рабочего места в спальне подойдут ширмы и стеллажи.
Вариант №4
Если детская пока не нужна, а место для гардеробной нашлось где-то ещё, используйте вторую комнату как кабинет. Устройте идеальный домашний офис для бизнеса или уголок творчества. Но и диван поставьте на всякий случай, чтобы было где оставить на ночь неожиданных гостей.
Вариант №5
Примыкающий к гостиной дворик или лоджия — фактически дополнительная комната в тёплое время года. Отнеситесь к ней соответственно — предусмотрите освещение, устройте место для отдыха. Но если осень и зима холодные и дождливые, убедитесь, что вам есть куда убрать летнюю мебель.
Вариант №6
Если вы живёте с друзьями, общая гостиная и две изолированные спальни — очень хороший вариант, чтобы иметь и возможность уединиться, и устроить совместную вечеринку. Если санузел примыкает только к одной из комнат, очередей по утрам не избежать.
Вариант №7
Маленькая комната, примыкающая к просторной спальне, — отличный вариант для семьи с подрастающим ребёнком. Так у него будет собственное место для игр, отдыха и учёбы. Но родители совсем рядом, если ночью что-то напугает.
Вариант №8
Если в квартире два уровня, то на первом этаже оставьте кухню и гостиную. На втором логично разместить главную спальню, для максимального уединения. В идеале ванная должна быть и на первом, и на втором этаже — хозяйская и гостевой санузел.
Вариант №9
У этой квартиры интересная планировка. Фактически здесь два крыла, и в каждом — свой санузел и зона гардеробной. Очень удобно для большой семьи.
Вариант №10
Большая открытая планировка совмещённой с кухней гостиной и столовой, да ещё и с внутренним двориком, создаёт в этой квартире массу вариантов для использования. Оптимально для многолюдных вечеринок с кулинарными изысками — готовить для гостей здесь очень удобно.
Вариант №11
Ванная нестандартной формы на первый взгляд может быть проблемой. Но такова цена её довольно большого размера. Разместите здесь душ или угловую ванну, и место останется и для стиральной машины, и для сушилки.
Вариант №12
Размещение гардеробной рядом со спальней — более привычный вариант. Но если устроить её в прихожей, можно найти массу плюсов. Например, так можно спокойно собираться на работу, не беспокоя тех, кому вставать позже.
Вариант №13
Спальни стоит размещать как можно дальше от источников шума. К примеру, будет лучше, если в противоположном от них конце дома будет гостиная с телевизором, кухня с работающей техникой. Для оптимальной тишины окна спален не должны выходить на улицу с активным движением.
Вариант №14
Когда семья растёт, гостевая спальня превращается в детскую. Всё равно нужно где-то размещать гостей? Поставьте в гостиной удобный диван, раскладывающийся для сна.
Вариант №15
Иногда очень хочется отделить зону столовой от гостиной. Например, используя приёмы визуального зонирования — продуманное освещение, размещение мебели и ковров. А летом совместные обеды и ужины просто устраивайте на балконе или во внутреннем дворике.
Характеристики планировок домов «брежневка»
«Брежневка» уступает т.н. «Новой» планировке, но всё же немного лучше, чем «хрущевка». Встречается около сорока видов модификаций планировок построек этого типа. Изначально планировка предусматривала восьми и девятиэтажные, но есть и пятиэтажные варианты.
Большинство «брежневок» строились из панели, но есть и кирпичные варианты. Сделанные из панели «брежневки» отличаются от «хрущевок» наличием чуть большей по площади кухни — 6,8 — 7,4 кв.м. и потолков высотой 2.7 метра(имеются ввиду панельные серий II-29, II-49, I-1605/9, II- 18/9, I-515/9m, I-515/9ш, 1-Лг-602, 1ЛГ504Д2, 1-Лг-606, 121, 1-Лг-600). В остальном они имеют те же смежные комнаты и туалет с ванной комнатой, а так же мусоропровод между этажами и лифт.
Кирпичные варианты, представлены сериями 1-528КП-41 высотой в 9 эт. и 1-528КП-80 высотой в 14 этажей. «Брежневки», в основной своей массе имеют этажность 9 — 17 этажей, в то время, видимо, все устремления были поближе к космосу, в результате появилось много серий в виде одно-двух подъездных «башен».
Встроенные гардеробные
Очень остро стоит вопрос о расширении системы хранения для жильцов небольших или просторных трехкомнатных квартир. Отличным вариантом станут встроенные гардеробные, которые будут прекрасным местом для хранения вещей, в также дадут возможность не использовать массивные шкафы или комоды в дизайне квартир.
Чтобы правильно разместить встроенные гардеробные, лучше обратиться за помощью к специалистам. Они помогут выбрать место, где расположение скрытой системы хранения не будет мешать или значительно уменьшать размеры комнаты.
Преимущества:
- Встроенные гардеробные позволяют экономить полезную площадь,
- При помощи них можно выгодно зонировать пространство комнат,
- Удобство и комфорт в хранении вещей.
Недостатки:
- встроенные гардеробные нельзя перемещать,
- необходимость изготовлять подобный элемент интерьера на заказ, что значительно дороже.
Формат четырехкомнатной квартиры
Такой формат подразумевает отдельный угол для каждого члена семьи. Да, у каждого будет не много места, однако гарантированное уединение и изоляция от других сожителей. Для многих семей с подрастающими детьми это очень важный параметр. Кроме этого, если рассматривать дизайн проекты двухкомнатных квартир 60 квадратов, то будет отчетливо видно, что все они построены на базе типовых квартир в панельных домах. Реже кто-то самостоятельно дробит свободную площадь на четыре комнаты, хотя так делать будет правильней, поскольку под задачи каждого человека будет отводиться определенная площадь, а планировка будет полностью соответствовать требованиям всех жильцов.
При наличии 4 комнат на такой территории сильно страдает объем санузла и кухни. Тут приходится уже прибегать к различным ухищрениям, позволяющим сэкономить пространство. Это и складная, многофункциональная мебель, и вынос холодильника в коридор или в жилую комнату, и, опять-таки, снос какой-то перегородки, за счет чего делается общая зона – гостиная совместно с кухней.
На самом деле создать грамотный проект для такой четырехкомнатной квартиры – дело очень непростое. Работать с ограниченным пространством и предпочтениями увеличенного количества жильцов – задача не из простых, но при должном опыте дизайнер должен справиться с этой работой. Тем более столько комнат на 60 квадратов – это уже, можно сказать, типичная ситуация, под которую зачастую есть много готовых решений, особенно для типовых планировок.
Начинаем с кухни
Теперь вы получили довольно просторное помещение. Плиту, холодильник и шкафы можно переместить на балкон: там будет основная рабочая зона. А вот в самой кухне можно установить большой стол или даже кухонный мягкий уголок, ведь места для этого теперь будет вполне достаточно.
Кстати, если между кухней и балконом был широкий, массивный подоконник из бетона, какой часто встречается в домах 75 серии, не всегда имеет смысл демонтировать его. Демонтаж связан с большими проблемами: на эту непростую работу может уйти целый день.
стандартная планировка квартиры в домах 75 серии
Вывезти строительный мусор и аккуратно выровнять и замаскировать стены – дополнительные хлопоты. Поэтому многие люди принимают весьма удачное решение: используют подоконник в качестве кухонного стола. Можно установить на него небольшую столешницу и соответственно декорировать его, а можно просто обклеить моющимися обоями или клеёнкой, чтобы новый столик гармонично смотрелся в интерьере помещения.
Ещё один шаг – работа со стеной, разделяющей кухню с гостиной (и иногда коридором).
Совмещенная кухня с гостиной
Сносить эту стенку имеет смысл только если вам очень хочется увеличить полезное пространство, которого критически не хватает. В противном случае можно просто пробить в ней проем и изящно его декорировать. Тогда и кухня, и гостиная значительно увеличиваются зрительно, что наверняка придется по вкусу любому владельцу квартиры.
Главная / Советы и идеи / Планировка / Как из типовой трёшки сделать четырёхкомнатную квартиру
Руслан Кирничанский, Венера Солнцева Fri, 10 May 2019 07:00:00 +0300
Статья о перепланировке двушки вызвала живой отклик у наших читателей. Тема изменения пространства оказалась весьма актуальной — нас попросили написать о том, как превратить трёхкомнатную квартиру в четырёхкомнатную. За советом мы обратились к нашему эксперту, архитектору Руслану Кирничанскому. Он уже рассказал нам о том, как можно испортить потолок и как организовать пространство, если с вами живут 20 кошек. А сегодня вы узнаете о двух вариантах перепланировки в доме серии М-30 — именно про перепланирование этой квартиры просили рассказать читатели нашей страницы в «Фейсбук».
Руслан Кирничанский, архитектор-дизайнер, эксперт и дизайн-критик

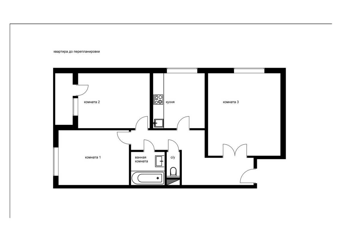
Было три комнаты, а стало четыре
Представим ситуацию — сын женился и в ближайшем будущем станет отцом. Так как глава молодой семьи — аспирант, то пока он не может позволить себе приобретение отдельного жилья. Как же можно изменить трёхкомнатную квартиру?
Требования следующие: комната для бабушки, комната для родителей, комната для дочери-подростка и комната для семьи сына, кухня, разделённый санузел и места для встраивания шкафов. В этой квартире четыре окна, а организация спален в комнате без окон запрещена.
Решение: изменяем конфигурацию некоторых стен, немного сокращаем кухню и организуем её… в коридоре, по центру квартиры. Этот вариант идеален: получилось четыре спальни (в каждой есть окно), ликвидирован коридор, вся инфраструктура квартиры расположена в центре, что не препятствует системе передвижения и не создаёт конфликтных ситуаций.
Обратите внимание, что фактически кухонное оборудование осталось в пределах старой кухни — этот вариант переделки подчиняется нормативным актам и техническому регламенту, значит, можно получить разрешение на реализацию этой переделки. Изменение конфигурации внутренних стен позволяет разместить в кухне обеденный стол. На плане в комнате № 3 я выделил красным цветом часть несущей стены, которую необходимо оставить и дополнительно укрепить
Снос несущих конструкций запрещён, поэтому в этом варианте мы делаем проёмы в стене
На плане в комнате № 3 я выделил красным цветом часть несущей стены, которую необходимо оставить и дополнительно укрепить. Снос несущих конструкций запрещён, поэтому в этом варианте мы делаем проёмы в стене.
Совет: обеспечьте хорошую систему вентиляции в кухне-коридоре через общедомовые вентиляционные шахты. Это сделает использование кухни более комфортным: не допустит повышения уровня влажности и обеспечит удаление запахов.
Стандартный план
Планировка 4-комнатной хрущёвки предусматривает следующие помещения:
- две спальни, расположенные в самой дальней зоне;
- третья комната – гостиная, являющаяся проходной для этих спален;
- четвёртая комната – ещё одна спальня, расположенная по соседству от кухни;
- кухня, ванная и туалет располагаются по соседству с прихожей, близко от входа;
- в конце прихожей по соседству с гостиной имеется гардеробный отсек.
Следующая исторически более поздняя разновидность многоэтажного дома – панельный 9-этажный дом, «брежневка» – обладает некоторыми отличиями от «хрущёвки». Спальни и гостиные, кухня и санузел расположены примерно так же, как и в 4-комнатных «хрущёвках», но отличаются по площади.
В Санкт-Петербурге и Москве за последние несколько лет выполняется программа реновации – старые «хрущёвки», многие из которых признаны аварийными, подлежат расселению и разборке. Взамен строительные компании по указу федеральных и местных властей возведут новостройки, в которых площадь комнат немного подрастёт. Кухни, санузлы и коридоры (включая прихожие) станут заметно больше.
Кирпичные «хрущёвки» и «брежневки», вне зависимости от числа комнат в квартирах, обладают меньшей продуваемостью и улучшенной звукоизоляцией.
Как выбрать и оценить планировку: советы и рекомендации специалистов
От правильного выбора планировки перед покупкой квартиры зависит благополучие и атмосфера в семье. Она зависит от типа постройки и ее серии. Расположение комнат может быть нескольких видов. Путем переделки получают открытые студии.
Квартирные электрические провода и часть проводки переносят на одну стену. Электрощит выносят в специальный закрытый отсек в подъезде. Архитектурные планировки с тупыми или острыми углами можно обыграть с помощью подходящей мебели.
Лучше, если это будет третий этаж
Затем обращают внимание на расположение комнат, их размер, форму. Важная информация – количество окон, наличие лоджии, балкона, их размеры
Сразу стоит определить стены, несущие нагрузку, толщину перегородок. Необходимо просчитать расстояние от входной двери до лифта и мусоропровода.
Необходимо понимать, что свободная планировка совсем не означает беспрепятственную возможность разрушать и устанавливать стены. Все перегородки должны быть установлены строго по плану БТИ.
Выбирая дизайн 3-комнатной квартиры, стоит учитывать, что один стиль может не подойти для обустройства комнат в панельном и кирпичном доме. Также большое значение имеет общая площадь жилья. Для минимальных и средних квадратур подойдет минимализм, можно комнаты перепланировывать на свое усмотрение.
Удачные варианты перепланировки
Многие сейчас пробуют делать перепланировку в «хрущевках». Прежде, чем приступать к такой работе, необходимо ознакомиться с планом дома и узнать, какие стены у вас несущие. Чаще всего делают следующие варианты перепланировок:
- из однокомнатной квартиры можно сделать студию, если вас не устраивает маленькая кухня. Этот вариант подойдет для проживания одного человека;
- если у вас в двушке есть проходная комната, ее можно объединить со второй и сделать просторную однокомнатную квартиру;
- в трехкомнатных и четырехкомнатных квартирах также часто объединяют комнаты;
- чтобы, напротив, разделить пространство внутри комнаты, можно сделать арку, колонну или дополнительную стену – это актуально для больших семей в однушках и двушках.
Все об особенностях перепланировки “хрущевки” смотрите в следующем видео.
Идеи для декора и дизайна в панельном доме
- Стиль. Панельным квартирам, наиболее подходящим будет дизайн в стиле кантри или же в этническом стиле.
- Убрать весь ненужный хлам и вещи интерьера, которые вы будете менять.
- Прихожая. Вместительная мебель: шкаф — купе, стол для туалета, подставка для обуви подойдет в самый раз.
- Коридор. Вдоль стены можно поставить небольшие тумбы для хранения зонтов, шапок, коробок с обувью.
- Туалет и ванная, если они объединены, то прекрасно будет смотреться угловая ванна, раковина, бельевой шкафчик, полочка под туалетные принадлежности и стиральная машина.

Сан узел гармонично будет смотреться в не темных тонах.




![Дизайн квартиры 70 кв. м. [60+ фото] планировки 2,3,4-комнатных](http://suhanovo-usadba.ru/wp-content/uploads/f/4/8/f481f6fd14802b238d07cda8c12eaa7d.jpeg)
























