7 Сделайте интерьер в духе исторического здания
Часто в сталинских квартирах хочется подчеркнуть их эпоху, ведь в этих широких стенах и высоких потолках она все еще живет. И дизайнеры идут этим путем — каждый по своему. Например, в этом случае архитектор предложил стиль американской классики. Классический декор и характерная для интерьеров 30–50-х гг. мебель, освещение и аксессуары очень органично вписались в интерьерную структуру дома. Ощущение масштабности и спокойствия чувствуется уже с порога.
А в этой квартире получилось «шутливое ретро» — столешницы, как будто сделанные из разделочных столов советских столовых, забавный смеситель «в стене», техника в том же стиле, и конечно, аксессуары. Выглядит очень мило и здорово.
Расскажите немного о себе
Я закончила Санкт-Петербургский государственный университет промышленных технологий и дизайна по специальности дизайнер среды. В этой сфере работаю более 6 лет. Делаю проекты для абсолютно разных квартир, работаю с загородными домами и таунхаусами по всей России.
Дизайнер Вера Тауш
Больше всего меня вдохновляет работа с квартирами в старом фонде Санкт-Петербурга, с домами, в которых чувствуется история. Наверное, это связано с тем, что я сама выросла в историческом центре Петербурга в похожем старом доме. У меня есть своя строительная бригада, которой я доверяю такую ответственную работу как дизайнерский ремонт в старом фонде.
Фото: @vera_interior_design
Стены
Штукатурку, скорее всего, придётся снимать или реставрировать, потому что она будет отслаиваться или осыпаться. После удаления слоя старой штукатурки стены чистят, грунтуют и заново штукатурят. Финальный этап: шпаклёвка, шлифовка и грунтовка. Процесс затратный и трудоёмкий. Вывоз мусора, в который превратятся разобранные перегородки и снятая штукатурка, станет дополнительной статьёй расходов.
Можно сэкономить и обшить стены листами гипсокартона на металлическом профиле. Гипсокартон со стекловолоконным полотном, кроме того, повысит звукоизоляцию помещения — очень кстати, если по соседству живут пианисты и скрипачи.
В попытке спасти исторический кирпич в «сталинке», нужно быть готовым к пережиткам советского прошлого в виде осыпающегося раствора между швами и остатков клея, которые будут сниматься вместе с кусками кирпича. Удаление старых растворов, замазку швов и обработку кирпича лучше доверить специалистам, уже имеющим подобный опыт работы.
Компактная мебель
Небольшая площадь кухни диктует условие подобрать компактный, но очень функциональный интерьер. Возможно даже расположение высоких шкафчиков по аналогии с советскими пеналами до двух-двух с половиной метров.
Встроенные шкафы очень вместительные и позволяют разместить все кухонные принадлежности.
Увеличить места хранения также можно за счет мебельного цоколя с выдвижными ящичками. Если заменить широкий и глубокий сталинский подоконник на мраморный или гранитный, можно его использовать в качестве рабочей зоны.
Место под шкафами можно использовать функционально с помощью ящиков.
Для небольшой кухни выбирается линейная планировка расположения мебельного гарнитура, для более просторной — Г-образная или П-образная, но при условии возможности прохода между элементами мебели шириной не меньше 1 метра. К сожалению, разместить на маленькой кухне кухонные угловые диванчики не всегда представляется возможным. Стол и стулья — прекрасный вариант.
Мебель-трансформер решает проблему нехватки места на маленькой кухне.
Пол
Ремонт пола в «сталинке» начинается после сноса перегородок и снятия старых покрытий со стен и потолка.

Вам могут достаться подгнившие или изъеденные насекомыми деревянные брусья и их придётся заменить и обработать специальным защитным составом. Для тепло- и звукоизоляции между брусьями засыпают керамзит. На брусья кладут ОСП (ориентированно-стружечная плита) или ГВЛ (гипсоволокнистый лист). Ремонт пола в «сталинке» — это также гидроизоляционная лента во влажных зонах.
Если вам достались железобетонные перекрытия, вероятно придётся заделывать щели и укладывать гидроизоляцию под черновую стяжку.
Из плюсов: в «сталинках» часто встречается легендарный советский паркет, который пригоден для реставрации.
Высокие потолки — одно из главных достояний квартиры!
Огромные потолки — архитектурное достояние сталинской квартиры, которое нужно использовать максимально правильно при создании собственного интерьера. Большое количество свободного пространства в верхней части помещения всегда на руку, ведь оно позволяет устанавливать практически любые подвесные конструкции. Здесь имеют место быть и натяжные полотна, и многоуровневые гипсокартонные потолки, способные подарить комнатам уникальную атмосферу.
Высокие потолки в сталинской квартире сделаны с помощью кессонной техники и выкрашены в черный цвет: гостиная комната в двух цветах
Какой дизайн можно сделать в 1 и 2-комнатной сталинке при помощи высоких потолков:
Объемный;
Дизайн верхней части сталинки можно выполнить с использованием нескольких уровней, украшенных различной подсветкой или необыкновенным лепным декором. С помощью игры света и тени, а также своеобразных отделочных фактур получится сделать не только уникальным само помещение, ни и визуально увеличить его объем. Дизайн прихожей в сталинке особенно хорош, если высокие потолки украшены при помощи разноуровневого освещения: центральной люстры с хрусталем и точечных скрытых светильников, дополнить можно столом лофт.
Двухуровневый высокий потолок в сталинке украшен с помощью освещения: центральной дизайнерской люстры и точечных прожекторов по периметру
Зонирующий;
Высокие сталинские потолки помогут разделить большое пространство на несколько функциональных фон для большего удобства проживания. Особенно это подойдет людям, которые предпочитают одну большую комнату двум или трем маленьким (актуально для стиля лофт в сталинке). В этом случае может понадобиться внедрение в интерьер дополнительных архитектурных элементов, предметов мебели или декора. Это может быть даже отдельно стоящая ширма-перегородка или мягкий угловой диванчик.
Зонирование в сталинке произведено с помощью разноплановой отделки потолка плюс дополнительно установленного шкафа с аркой посередине: кухня-гостиная в неоклассическом стиле интерьера
Двухуровневый;
Иногда высота потолков в сталинке может достигать от трех до почти четырех метров. Это же настоящее достояние для любителей двухуровневых квартир. Можно запросто разделить помещение на две части: внизу соорудить, например, кухню, ванную и гостиную (насколько позволяет планировка), а на втором ярусе сделать аутентичную спальню с низкой двуспальной кроватью, вход в которую будет проложен через небольшую лестницу.
Двухуровневый интерьер в маленькой сталинке с высокими потолками выполнен при помощи инженерной конструкции и подъемной лестницы: внизу — кухня-гостиная, наверху — спальня (современный стиль)
Функциональный;
Можно использовать высокие сталинские потолки и для сооружения систем хранения. Часто так получается, что наверху остается много пространства, особенно над дверьми и арками. Ниши, как правило, заполняют встроенными шкафами светлых оттенков, чтобы визуально не уменьшать площадь. В таких полочках удобно содержать консервацию, книги и пр. Единственное, необходимо заранее продумать, как до них добираться. Нужно просто приобрести удобную стремянку, рельсовые или откидные лесенки, закрепленные к стене.
Дизайн большой сталинской квартиры с высокими потолками: системы хранения в гостиной комнате расположены не только по периметру помещения, но и над входными проемами (стиль интерьера — фьюжн)
Перепланировка
«Сталинками» называют кирпичные многоквартирные дома, которые начали строить в 1933 году. Последние «сталинки» появились в начале 1960-х, а потом окончательно уступили место типовым «хрущёвкам», которые должны были решить проблему острой нехватки жилья.

Как продлить жизнь ремонту
Все знают, как сложно сохранить любимую квартиру в первозданном виде, удержать свежесть и лоск. Получая отделку «под ключ», мы сначала сдуваем пылинки, а спустя пару-тройку месяцев уже отводим взгляд от царапин на ламинате. Чтобы квартира и через пять лет после ремонта была «как новенькая», нужно учесть несколько важных моментов.
Архитектурный стиль сталинских домов, возведенных в довоенный период, определяют как постконструктивизм, послевоенную застройку относят уже к так называемому сталинскому ампиру — самобытному советскому направлению в архитектуре, отличавшемуся монументальностью и помпезностью. Закатом сталинского ампира считается 1955 год, когда было принято постановление об устранении архитектурных излишеств в строительстве. В этот период на смену сталинской архитектуре начинают постепенно приходить утилитарные «хрущёвки», но до 1960 года ещё возводятся здания переходного типа, сохранившие за собой монументальность, но утративших фасадный декор.

Этой информацией необходимо владеть, чтобы выяснить, можно ли сносить внутренние стены в угоду перепланировке.
Как правило, перегородки в «сталинках» ненесущие, а значит можно получить разрешение на их снос, но перегородки могут быть не единственным препятствием на пути перепланировки, задумке могут помешать ещё и опорные балки, которые зачастую можно спрятать только за счёт серьезного понижения потолка. А ведь высокие потолки — одно из главных достоинств «сталинок». Будьте готовы к тому, что возможности перепланировки могут быть ограничены.
Культурное наследие: что сохранить в «сталинке» при ремонте
Тут, конечно, зависит от стиля, которые выбрали заказчики, и их пожеланий, но я бы рекомендовал стараться сохранить оригинальный антураж по максимуму: декоративные дверные ручки, паркет, двери, люстры. По возможности, нужно сохранить 100% лепного декора: карнизы, молдинги, розетки на потолке.
При сохранении лепнины ни о каком отпуске потолков речи быть не может, поэтому здесь существует тонкость с проводкой, но это решаемо. Главное — выбрать хороших строителей и продумать систему освещения.

Классическая лепнина в «сталинке» в сочетании с современной минималистичной люстрой. Дизайнер-декоратор Полина Сотникова, Trust Load

Если планировку иногда можно и даже нужно менять, то декоративные молдинги и лепнину лучше оставить. Так и сделала дизайнер Алёна Сковородникова в проекте квартиры на Кутузовском проспекте. Кроме того, в квартире остался оригинальный паркет
От чего можно спокойно избавиться, так это от старой мебели, которая уже изжила себя и не вписывается в концепцию. Как минимум, на неё стоит надеть чехлы и поменять обивку. Другие же приметы того времени можно отлично вписать в современный интерьер. Например, ковры, объёмное освещение, широкие рамы, зеркала.

Раньше ковёр на стенах был практически в каждом советском доме, потом этот предмет стал признаком старого «бабушкиного», изжившего себя интерьера, но вот он снова возвращается как смелый и немного эксцентричный элемент стиля. Да и трюмо, которое стояло в каждой советской квартире, может смело вписаться в современный интерьер. Дизайнер Алёна Сковородникова

Можно использовать электрофурнитуру тех времен, стилизованную сантехнику, шпонированную тумбу на ножках, гипсовую лепнину в стиле ар-деко. Главное, не переборщить и комбинировать с современными трендами, например, акцентом на минимализм.

Шпонированная тумбочка и чехословацкое кресло в двухкомнатной квартире в доме 1937 года постройки у станции метро «Пролетарская». Дизайнер Лидия Лиханская

Старый дубовый шкаф в гармоничном окружении современной минималистичной мебели. «Сталинка» в историческом центре Москвы между зоопарком и Домом Правительства, дизайнер Елена Маркина
Для оформления «сталинок» наиболее актуальный из интерьерных стилей, как мне кажется, неоклассика — сочетание современных элементов с классическими. В качестве классических элементов может выступать декор на стенах и потолках. Гармонично будет смотреться mid-century в сочетании с мебелью и декором в стиле СССР.

Элегантный интерьер в стиле mid-century с использованием советской мебели в центре Киева. Студия Emil Dervish
Гостиная, объединенная с кухней: углы и скругленности
– В отделке мы использовали сочетание простых белых поверхностей и понятных геометрических форм. А дополнили их фактурным деревом и оригинальными предметами искусства местных дизайнеров, – поясняет Алексей. – Такой контраст делает интерьер многогранным и сложным. С одной стороны, мы видим классические приемы минимализма, а с другой – показываем его статусность и состоятельность.


В зоне кухни дизайнеры расположили большой полубарный остров, за которым удобно как сидеть, так и стоять. Столешница сделана с фактурной деревянной поверхностью, а в дверцах верхних шкафчиков кухни использованы классические витражи.
В боковой нише спрятан холодильник. Рядом с ним расположен выдвижной шкаф для хранения.


В зоне гостиной – диван с регулируемой глубиной сиденья и полочкой в спинке. Ее можно использовать как для хранения, так и для дополнительного сиденья в обеденной зоне.
– Арочные окна здесь мы дополнили некоторыми скругленными по форме элементами, которые поддержали их оригинальный дизайн. Например, круглым журнальным столиком со скрытым хранением. А фактурный фасад комода в зоне ТВ перекликается с фактурой столешницы.


Стиль
Никаких стилевых противопоказаний в принципе нет, но делать ультрасовременные ремонты в «сталинках» не принято. Как правило, дизайнеры пытаются фрагментарно сохранить атмосферу ушедшей эпохи, спасают паркеты и лепнину, устраивают домашние библиотеки.


Миксовать современность можно как с массивными мебельными объектами в стиле «профессорская квартира» (помните такую в кинофильме «Москва слезам не верит»?), так и с объектами в стиле советского мид-сенчури.
Если вы не располагаете подлинным ретро, на помощь придут нарочито состаренные фактуры и стилизованная мебель.

Подготовка к ремонту: 5 дельных советов
Если подготовиться к ремонту правильно, он пройдет безболезненно.
Ремонт квартиры в «сталинке» — это прежде всего предотвращение возможных аварийных ситуаций. Состояние труб и электропроводки стоит проверить заранее. Ржавые трубы обычно меняют на металлопластиковые, а древнюю алюминиевую электропроводку — на медную, которая готова к мощностям современных электроприборов. В целом на предмет исправности и изношенности в старом фонде нужно проверять всё, это оградит вас от неприятных сюрпризов в будущем.
Бренды, представленные в проекте
Отделка: краска, Benjamin Moore; керамическая плитка, VallelungaНапольное покрытие: паркетная доска, KharsСантехника: Villeroy & Boch; полотенцесушитель, MargaroliСмесители: NicolazziМебель: встроенная мебель из МДФ, Mr.Doors; мягкая мебель, «Эстетика»; столики, стулья, EichholtzТехника: Smeg; LibcherДекор: аксессуары, постеры, EichholtzОсвещение: Visual Comfort; Currey & Co; Eichholtz
Голландский интерьерный бренд Eichholtz, из коллекций которого дизайнер подбирала предметы декора, в этом году отмечает 25-летие. Этому событию приурочен конкурс дизайн-проектов, в котором принимает участие и Елена Маркина.
Хотите, чтобы ваш проект был опубликован на INMYROOM? Присылайте фотографии интерьера на wow@inmyroom.ru
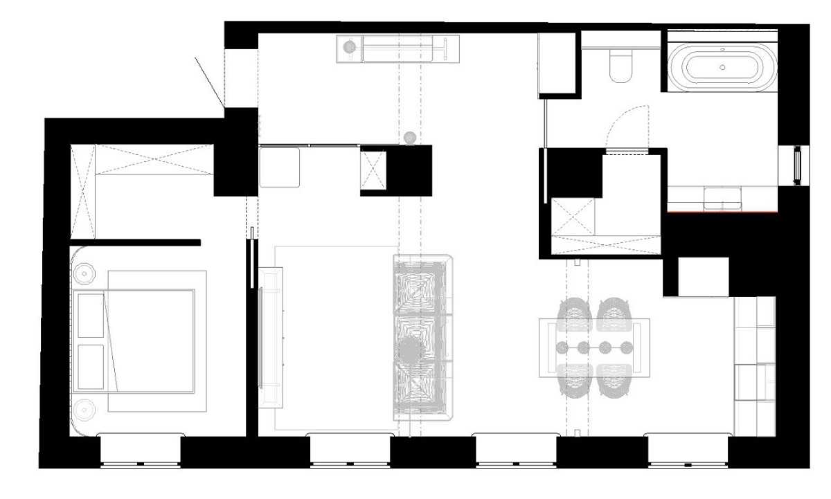
Планировка: стоило лишь убрать длинный коридор…
Изначально в квартире был длинный узкий коридор на входе, три отдельные жилые комнаты, обособленная кухня и раздельные санузлы – стандартная трехкомнатная сталинка без особого ремонта.

Планировка до…

…и после.
По словам Юлии Барылюк, архитекторки студии, которая работала над проектом, в процессе проектирования было разработано очень много разных вариантов перепланировки, но остановились в итоге на одном: с большой просторной прихожей, общим пространством кухни и гостиной, отдельной спальней с гардеробной и объединенным санузлом, который удалось увеличить за счет нежилых зон. Дополнительно еще и кладовку получилось вместить – для хранения разных бытовых предметов.
Особенности ремонта в старом фонде
Отдельно стоит рассказать о ремонте в старом фонде. Это всегда сложный процесс с кучей сюрпризов. Никогда не знаешь, что скрывается под слоями старой отделки. В этой квартире при демонтаже мы обнаружили деревянную балку, встроенную в стену. Она не была отмечена на чертежах, но и убирать ее было нельзя.



Фото: @vera_interior_design
Балка выполняла несущую нагрузку и подпирала верхнее перекрытие. Конечно, изначально в проекте я никак не могла ее предусмотреть, поэтому всю планировку пришлось немного поменять прямо по ходу ремонта. Кроме того, выяснилось, что часть стен необходимо заменить — они испортились от времени и прогнили от постоянных протечек
Вот почему в старом фонде так важно заказывать авторский надзор и работать с надежной, проверенной бригадой строителей




Фото: @vera_interior_design
Преимущества домов сталинской постройки
Одно из главных преимуществ «сталинки» — высокие потолки, от 300 до 420 см (иногда даже больше — прим. D4U). Четырёхметровые потолки с лёгкостью поддаются перепланировке, можно организовать второй этаж в качестве спального места.

Современный лофт в московском доме сталинской застройки с потолками 4,7 метра позволил сделать из пространства в 64 м² полноценную двухъярусную квартиру. Дизайнер Елена Савченко

Уютная двухъярусная зона — гостиная и спальня. Ярус2
В «сталинках», как правило, большие окна и широкие подоконники. В среднем ширина окна — более метра, а высота около 1,5 метров, что добавляет помещению света и простора.

Арочные окна — ещё одна примета сталинских домов. Они изящно смотрятся как со стороны фасада дома, так и из квартиры. Realt

Светлая просторная гостиная в московской «сталинке», дизайнер Марина Меренкова


Иногда можно встретить эркерный тип окон. Это настоящий подарок для любителей наполненных светом пространств. «Сталинка» на северо-западе Москвы, дизайнерское бюро Puro

Даже типичные для сталинских домов крошечные кухни смотрятся чуть более просторно благодаря большим окнам и обилию света. Проект «сталинки» в Москве, дизайнер Марина Меренкова
Широкие подоконники могут компенсировать недостаток метров в маленьких кухнях и стать дополнительной функциональной зоной. Их можно использовать, например, вместо полки или как столешницу. Ну, а если открывается красивый вид, такое решение не только функционально, но и эстетически целесообразно.
Высокие потолки сталинских домов также помогут компенсировать маленький метраж кухонь
Важно с умом использовать это пространство и сделать встроенные системы хранения до потолка, как это реализовано в проекте «Реинкарнация», бюро МARI GRI. Удобно и атмосферно — завтракать и любоваться красивым видом из окна
Дом сталинской эпохи в центре Минска, дизайнерское бюро JL Studio

Удобно и атмосферно — завтракать и любоваться красивым видом из окна. Дом сталинской эпохи в центре Минска, дизайнерское бюро JL Studio

Подоконники в гостиной виртуозно переделаны: внизу расположены полки, где можно хранить книги, а на самом подоконнике можно их читать, расположившись с комфортом. Проект квартиры на Фрунзенской в Москве дизайнера Павла Железнова
В зависимости от типа и года постройки «сталинки» могут выгодно отличаться большим метражом отдельных комнат, кухонь или коридоров. Большие площади характерны для зданий, построенных с 1930-х годов и до начала войны, особенно часто встречаются в номенклатурных «сталинках», предназначенных для партийных руководителей, деятелей науки, военных и прочих привилегированных слоёв населения.

Просторная гостиная 24 м² позволяет свободно зонировать пространство. Квартира для молодого человека в сталинском доме 1952 года постройки, дизайнер Павел Герасимов
Просторная гостиная сталинского дома располагает к приятным посиделкам с гостями. В подобном месте можно даже устроить квартирник, не опасаясь гнева соседей, так как звукоизоляция в таких постройках довольно хорошая. Проект квартиры «Сталинский ампир», дизайнер Евгений Бобрик
Просторная спальня с огромным эркерным окном. «Сталинка» на северо-западе Москвы, 83 м², дизайнерское бюро Puro
В «сталинке» с высокими потолками можно поставить шкафы до потолка. Так и полезного пространства больше, и сам шкаф, благодаря скрытым решениям, не будет выделяться.

Наверное, каждая семья, проживавшая в сталинском доме, имела большую коллекцию книг. Книжный стеллаж до потолка — то, что может позволить себе владелец такой квартиры, а лестница у шкафа — это стильное напоминание о симпатичном букинистическом магазинчике где-нибудь в восточной части Берлина. Проект квартиры на Якиманке, студия дизайна 22etazh

Антресоли — тоже одна из типичных черт построек советской эпохи. Их можно использовать как дополнительное пространство для хранения вещей. Если антресолей нет в изначальном плане квартиры, их можно сделать на заказ. Проект «сталинки», дизайнер Павел Герасимов

За счёт высоких потолков шкафы в спальне можно сделать узкими, что позволит сберечь пространство комнаты. Дизайнер Марина Моренкова
Статьи по теме

29.02.2024
ТОП-15 лучших электрических варочных панелей 2023-2024 годов
В качестве помощника для выбора современной модели представляем наш рейтинг лучших электрических варочных панелей (на 4, 3 и 2 конфорки) 2023-2024 годов, составленный, по отзывам продавцов и покупателей ТК «Ланской», а также профессиональных экспертов…

12.02.2024
7 устаревших решений для ванной комнаты и чем их заменить
Мода и прогресс не стоят на месте. Посмотрим, какие отделочные и сантехнические решения в ванной комнате в 2024 году считаются устаревшими, и что современный интерьерный дизайн может предложить взамен.

06.02.2024
Мифы о ремонте, в которые пора перестать верить
Ремонт — популярный «герой» российского фольклора, про него сочиняют пословицы, травят анекдоты и слагают мифы, в которые пора перестать верить. Мы собрали ТОП-7 самых распространенных заблуждений.

23.01.2024
ТОП-7 лучших островных кухонных вытяжек 2023-2024 годов
В качестве ориентира при выборе представляем наш рейтинг лучших
островных кухонных вытяжек 2023-2024 годов, составленный на основе отзывов
продавцов и покупателей ТК «Ланской», а также экспертов-специалистов…
Пол и потолок
Если потолок в сталинке обычно не вызывает проблем — его можно заштукатурить, выровнять, наклеить на него потолочную монолитную плитку, навесить натяжной потолок, то с полом список работ будет больше.
Все погрешности старого потолка легко скрываются под навесной конструкцией.
Старый пол демонтируют, так как многие доски обычно уже сгнили к этому моменту. Под досками обычно обнаруживаются горы мусора, а если до ремонта были проблемы с канализационными трубами, то еще и пропитанные зловонным запахом. Мусор этот необходимо собрать и выбросить, а промежутки между лагами засыпать керамзитом для создания тепло- и звукоизоляционного слоя.
Замена пола даёт возможность сделать его тёплым и улучшить звукоизоляцию.
Пирог пола каждый делает на свое усмотрение.
Существует больше десятка вариантов пирога:
- Керамзит до 20 см, сетка для армирования, стяжка до 4 см, ламинат или паркет.
- 2 слоя фанеры на лаги толщиной 15мм по уровню с сохранением горизонтали, подложка, линолеум или ламинат.
Ламинат отлично подходит для современного ремонта кухни.
С чего начать ремонт
Несмотря на то, что кухня в сталинке обычно небольшого размера и иногда может по площади не превышать 5 квадратов, собираясь её ремонтировать, необходимо настраиваться на большие расходы. И дело не только в необходимости замены окон, дверей, труб и электропроводки.
Толстые стены в старых домах дают возможность сделать дополнительные шкафы и даже холодильник.
Придется перестилать полы, выравнивать стены и потолок, а при возможности даже производить перепланировку помещения, так как вся семья прекрасно разместившаяся на роскошных сталинских метрах, в маленькую кухню просто-напросто вмещаться не будет.
Перед началом ремонта необходимо сделать проект новой кухни, отражающий её будущий интерьер. Разметить места, где будет стоять мойка, посудомойка, мебельный гарнитур — от этого будут зависеть выводы коммуникаций и электропроводки.
Чтобы кухня была удобной, нужно заранее продумать расположение мебели, техники и розеток
Как из квартиры в сталинском доме сделать стильную студию для молодой семьи

Квартира в центре Новосибирска привлекла дизайнера Сергея Терёхина по нескольким причинам: это и локация, и близость к метро, и, как ни странно, цена. Низкая стоимость жилья объяснялась его плачевным состоянием, что стало только на руку дизайнеру, поскольку появилась возможность перестроить «двушку», исходя из собственных представлений о комфорте.
Ремонт делали 8 месяцев. Из квартиры вывезли сотни мешков строительного мусора — два «КамАЗа» и одну «ГАЗель». Здесь сносили межкомнатные стены, вскрывали и выравнивали полы — из-за того, что перепад высоты в разных комнатах составлял 5 см. Для стен и пола сделали дополнительную звукоизоляцию с помощью минеральной ваты, стены обшили гипсокартоном, потолок сделали натяжным, немного уменьшив высоту – с 3 метров до 2,9.
В итоге получилась современная студия — с открытой планировкой, высокими потолками и просторной кухонной зоной. В гостиной, задуманной как место для приёма гостей, нашлось место и для рабочей зоны — ею стал широкий подоконник одного из двух окон. Частью общего пространства студии стало и спальное место, однако при желании его можно отгородить плотной шторой.
В отделке квартиры главным акцентом стала оригинальная кирпичная кладка. Она была очищена от штукатурки и покрашена в белый цвет. Прихожую и кухню для контраста выполнили в тёмных тонах, а ярких красок, соответствующих энергетике молодости, привнесли с помощью обычного кухонного гарнитура. Другая мебель, в основном, тоже была куплена в готовом виде, лишь кровать и журнальный столик Сергей смастерил своими руками из обычных транспортных паллет.
Все работы в квартире выполняли строители. Сергей и его девушка Светлана сами только красили стены, вырезали большие буквы для трафаретов на стенах и клали на пол ПВХ-плитку. В разных зонах квартиры появились надписи: в гостиной это Play (Играй), в спальне — Sleep (Спи), на кухне — Eat (Ешь). «Мы сделали такую концепцию, чтобы во всех комнатах прослеживалась общая идея. Мы все-таки молодые, решили поприкалываться. Плюс, большие буквы визуально увеличивают пространство».
Сергей уверен, что переделать старую квартиру в «сталинке» ненамного дороже, чем сделать интерьер с нуля в новостройке: «В новостройках планировки вообще караул. Так или иначе, приходится сносить стены и делать по новой коммуникации, электрику. Сейчас в центре Новосибирска появилось много дешевых квартир в «сталинках», и это лучше, чем жить в новом, но отдаленном от центра микрорайоне».
Автор
Сергей Терёхин в 2009 г. окончил Новосибирскую государственную архитектурно-художественную академию. С того же времени занимается дизайном общественных и частных интерьеров, архитектурой и градостроительным проектированием.
Эту статью прочитали 1928 человек с 07 февраля 2017.
Следующая статья: Как построить стильный и уютный дом за миллион рублейПредыдущая статья: Интерьер в стиле «Дольче вита» — «Сладкая жизнь»
Ремонт стен
Стены в сталинке могут быть просто неровными, а могут и вовсе пойти глубокими трещинами. В любом случае их придется укреплять и выравнивать. Некоторые и вовсе снимают слой старой штукатурки, который может достигать до 10 см толщины, набивают на дранку сетку и штукатурят сверху любой гипсовой штукатуркой, либо зашивают ГКЛ. Нужно понимать, что уменьшение толщины перекрытия между квартирами ведет к шумоизоляционным проблемам.
Гипсокартон делает стены идеально ровными и улучшает звукоизоляцию.
Выравнивание стен сегодня обычно производят при помощи гипсокартона. Такая конструкция позволяет спрятать между стеной и ГКЛ дополнительный слой звукоизоляции. На гипсокартон можно наклеить плитку, закрепить пластиковые панели или наклеить обои. Впрочем, при наличии навыка, можно выровнять стены при помощи штукатурных смесей, которых сегодня продается в достаточном количестве.
Если есть желание совместить кухню с соседней комнатой или расширить помещение за счет коридора, можно убрать перегородку, особенно если она из дерева с дранкой. Перед демонтажом стены нужно внимательно исследовать потолок: прогнившие потолочные доски могут держаться только благодаря перегородке.
Переносить можно только перегородки, капительные стены нельзя трогать.
Демонтаж проводится сверху — сначала освобождается перегородка от слоя штукатурки, а затем начинают отпиливаться доски. Работу эту легкой не назовешь — так как даже сосновые доски за десятилетия эксплуатации могли стать прочными как камень.
Перенос перегородки маленькой кухни позволяет разместить дополнительную мебель.






























