Как обустроить квартиру?
Чтобы сделать пространство сложнее и интереснее, в двухкомнатной хрущевке стоит использовать многоуровневое освещение. Точечные светильники в потолке выглядят современно и отличаются функциональностью: можно развести проводку так, чтобы регулировать количество света. Локальное освещение углубляет пространство, а свет, направленный сверху, подчеркивает невысокие потолки.
Расстановка мебели играет не менее важную роль. Обычно комнаты делятся на «приватную» и «общественную» зоны. Даже если в квартире проживает больше двух человек, вполне реально создать для каждого свой уголок. Например, кровать на подиуме, которая выступает местом для хранения и сна, дает ощущение приватности и уединенности. Чтобы сэкономить место в общей зоне, можно использовать угловой диван (он занимает угол, который зачастую остается свободным), а вместо стульев для столовой приобрести табуретки (их легко спрятать под стол).
На фото гостиная с оригинальной люстрой и домашним кинотеатром, украшенным лентой с LED-подсветкой.
Декор и текстиль – то, что придает типичной двухкомнатной хрущевке оригинальности. Плотные шторы добавляют уюта, но сужают пространство и поглощают свет, поэтому, чтобы не перегружать комнату, стоит выбирать однотонную лаконичную ткань. Яркие декоративные детали (картины, фотообои с модными принтами, акцентные стены) смотрятся выигрышно лишь на нейтральном фоне.
Шаг 3: определить горизонты возможного
Важно, чтобы перед началом стройки заказчик чётко понимал свой бюджет. Часто до начала ремонта люди плохо представляют себе, сколько стоит мебель, сантехника, строительные материалы
Заказчики думают, что стройка обойдётся гораздо дешевле.
Если закупкой материалов для всего проекта занимается дизайнер, то заказчик полагается на его мнение и понимает, что тот подберёт проверенные компании, с которыми успешно работал на других проектах. Не во всех случаях материалы в компаниях, которые советует дизайнер, будут дешевле, чем, например, просто где-то в интернете. Но сами товары и поставщики в таком случае будут проверенными.
Из-за большого объёма закупок в одном месте у дизайнера есть дополнительные скидки для заказчиков. В таком случае дизайнер действительно сможет предоставить выгодные цены — надо только учитывать, что не все поставщики готовы делать специальные предложения, и не рассчитывать на это как на «обязательную фичу».
Угловая квартира, неужели так все страшно
Обычно бывает наоборот. В доме где живет мама соседи маятся с «климатом». Конденсат. Про грибок незнаю. Весьма вероятне А ноги у этой проблемы в том, что кроме пластиковых окон еще и гипрок на стены понавешали. А мама окна хоть и установила новые, но постоянное проветривание и стены «в оригинале»)))
Бармолей написал : я сейчас вплотную подошел к необходимости увеличения жилплощади и решил продать двушку и купить трешку доложив энную сумму, с целью экономии денег хотел купить угловую квартиру, обработать внешние стены какимни будь антигрибковым препаратом, установить каркас, заполнить его теплоизоляцией (тут поблизости в магазе продают IZOBEL П-75 , ISOROC , IZOVOL Л-35, вот из них и хотел выбрать), и закрыть все это дело гипсокартоном. вроде и тепло сохраняю и эстетика. НО. родственники аж категорично возмутились. грибок неистребим, под изоляцией он размножится еще больше и потом полезет в легкие. а у тя дети и чтож ты твришь. короче я немного потерялся от такого напора. Подскажите насколько грибок опасен и настолько ли он неистребим. и вообще угловая квартира это всегда синоним грибка или лотерея?
Двушка из однушки в доме серии п-44
Перепланировки в квартирах этой серии требуют много хлопот и средств, так как стена, разделяющая кухню и комнату, несёт нагрузку перекрытия. Поэтому дизайнер Жанна Студенцова оформила квартиру площадью 37,5 кв.м. максимально просто, разграничив комнату текстильной перегородкой.
Комната для проживания пожилой женщины совмещает в себе гостиную и спальню, но зонирование создаёт эффект приватного пространства.
Если в однушке живёт семья с ребёнком, идеальным решением станет кровать-чердак. Второй этаж послужит спальным местом, а свободная зона внизу – рабочим кабинетом.
Вот ещё несколько примеров перепланировки однушки в двушку без сноса несущей стены. Архитекторы предлагают возвести перегородку из гипсокартона, но одна комната останется без света, а дополнительный проём в капитальной стене придётся укреплять и согласовывать. Если наличие тёмной комнаты не устраивает, между спальней и гостиной можно смонтировать лёгкую стенку из матового стекла. Ещё один вариант – реечная перегородка, не доходящая до конца стены.
Преимущества угловой квартиры
Начнем с положительных сторон угловых квартир, которые делают их лучше других вариантов недвижимости.
Хорошее естественное освещение – обычно в таком жилье больше окон и солнечный свет лучше проникает внутрь. Благодаря этому помещение кажется просторнее, владельцу придется тратить меньше денег на освещение в дневное время;
Меньше шумных соседей – в отличие от других квартир вас не будут со всех сторон окружать другие люди, поэтому в любое время суток будет тихо и комфортно. В зависимости от размеров стены жилых комнат вообще могут не контактировать с соседскими. А если соседи сверху тоже тихи, то это идеальный вариант для семей с маленькими детьми;
Более низкая стоимость – низкая популярность угловых планировок определяет итоговую цену как на вторичном, так и на первичном рынке. При грамотном подходе можно получить существенную скидку от владельца или застройщика;
+1 батарея – такое условие предусмотрено санитарными нормами для предупреждения возможной потери тепла, а еще предотвращения появления грибка;
Прекрасная вентилируемость пространства – поскольку окна квартиры расположены с разных сторон, то можно хорошо проветрить дом и быстрее наполнить его свежим воздухом;
Можно парковаться под окнами – владельцам угловой недвижимости проще оставлять машину под присмотром и не нужно тратиться на автостоянку.
Если вам важно уединение, тишина, солнечный свет и нормальная циркуляция воздуха, этот тип жилья станет подходящим вариантом

Ленинградка 111-142
Серия 111-142 – вариация 108-й. Её спроектировали только в пятиэтажном варианте для застройки в регионах с суровыми климатическими условиями.
В 1975-м начали строить дома на 88 квартир (6 секций) и 114 квартир (8 секций) в Красноярском крае, Хакасии, Кемеровской области.
Потом появились секции от Нижегородского проектного института на 20 (с 1-, 2-, и 3-х комнатными) и на 10 квартир (с 3-х и 4-х комнатными).

Пятиэтажка серии 111-142
Дома с плоской кровлей строили по каркасно-панельной технологии из трёхслойных керамзитобетонных панелей, монтируемых на ж/б колонны 200*300 мм (шаг 320 см). Плоские перекрытия толщиной 100 мм опираются на ригели с прямоугольной полкой. Высота потолков 2,55 м.
Элементы каркаса выступают за плоскости стен, что некоторые считают недостатком. Зато при условии неприкосновенности колонн и ригелей можно перепланировать любые стены, даже внешние.
Выступающие детали каркаса можно красиво обыграть в интерьере:
Планировки
В доме три вида однушек площадью до 36 м2. Они прямоугольные с окнами на одну сторону. В торцевых квартирах первого этажа есть лоджия, а окна выходят на две стороны.

Т-образная распашонка с 1-й комнатой
Двушки начинаются со второго этажа. Площадь 45-49 м2. В квартирах над аркой 52 квадрата.

Вариант планировки двушки в серии дома 111-142
3-х комнатные квартиры по 60 и 68 квадратов с кухней 12 м2.

Трёхкомнатная распашонка
Площадь четырёхкомнатной квартиры 68 м2. Комнаты там меньше, чем в трёшках. Одна из них проходная.
Такие квартиры предусмотрены только на первых этажах.

4-х комнатная квартира с проходной комнатой
Эти дома строили в основном в регионах с низкими зимними температурами.
При их эксплуатации образуются мостики холода на стыках, где крепится балконное ограждение к стеновым панелям.
121ЛО
5-, 10- и 9-этажные дома серии 121ЛО строят по настоящее время. Потолки здесь достигают 280 см. Балконы есть даже на первом этаже.

Панельная пятиэтажка 121 серии
Планировки в доме удобные. Мало кто их меняет. Да это практически и невозможно, так как межкомнатные стены здесь несущие.

Планировка типовой секции
Максимум, что можно сделать, это задействовать балкон в качестве жилого пространства. Обычно там устраивают зону отдыха или ставят рабочий стол с компьютером.
Несколько вариантов дизайна таких балконов:
У всех серий проблема в плохой шумоизоляции. Но в новых домах вопрос отчасти решён за счёт герметизации внутренних стыков панелей силиконом.
В любом случае при покупке квартиры в доме ленинградской планировки придётся подумать о звукоизоляции стен, потолка и пола.
Квартира в панельном доме
Без лишних отступлений: плюсов у такой недвижимости гораздо меньше, чем минусов. Связано это большей частью с погрешностями, которые допускались еще на этапе строительства. Тонкие стены, отсутствие утеплителя, некачественно сделанные швы — все это добавляет остроты угловому вопросу в панельном доме.
Угловая квартира: плюсы и минусы, особенности планировки
✘ Здесь холоднее
В среднем — на 3-4 градуса, чем в соседних квартирах. В сильно запущенных ситуациях разница с другими квартирами может доходить до 10 градусов.
Хорошая новость: это можно исправить. Плохая новость: на это потребуются материальные вложения. Работу над ошибками обычно начинают с проверки швов. Если состояние швов неудовлетворительное, их заделывают. После помещение дополнительно утепляют. Далее (особенно если здание достаточно старое) — ревизии подвергают окна и систему отопления.
✘ Стены угловых квартир любит плесень
Конденсат, а за ним и плесень — частые спутники угловых квартир в домах панельного типа. Причина — промерзание стен. Из-за разницы температур внутренней поверхности стен и воздуха в помещении на стенах конденсируется влага, а на влажной поверхности размножается плесень. Последняя становится не просто косметическим дефектом, но и негативно влияет на самочувствие жильцов.
Эту проблему также можно решить: устранить источник холода и сквозняков и регулярно проветривать комнаты.
✘ Чрезмерное нагревание квартиры
В теплый сезон в угловых квартирах может проявиться другая проблема — сильное нагревание помещения за счет солнечных лучей. Как с ней бороться: установить кондиционер, регулярно проветривать квартиру, во время солнцепека держать шторы закрытыми.
✓ Стоимость таких квартир ниже
Прилагающийся бонус к имеющимся недостаткам — низкая цена таких квартир. Спрос на них не высок, поэтому продавцы дают хорошую скидку.
Что важно: сумма, которая обычно тратится на улучшение квартиры (борьбу с холодом, сквозняками и плесенью) меньше разницы в цене между угловой и обычной квартирами. А значит, можно неплохо сэкономить
✓ Окна выходят на разные стороны
Это плюс, как ни посмотри: во-первых, это изобилие солнечного света, во-вторых, естественная вентиляция при открытии окон, ну и, в-третьих, разнообразный вид.
Дизайнерские приемы, которые сделают хрущевку уютной
Двухкомнатную неудачную планировку можно улучшить с помощью цвета, правильно подобранной мебели и освещения. Например, в типовом проекте двушки, разделенной на три части, мебель-трансформер — необходимость. Если в детской будут жить два ребенка, ее нужно зонировать. Сохранить свободное пространство помогут кровати-чердаки с рабочим местом под ними, двухъярусные, выдвижные кровати, откидные столики и столешница-подоконник, шкафы-купе.
Фото: Instagram @reklama78spb
Фото: Instagram @krovatdom
Фото: Instagram @ji_mebel
Фото: Instagram @galereiavdokhnoveniia
Вообще в малогабаритках лучше смотрится обстановка в минималистичном стиле. Стеллажи и шкафы не должны быть громоздкими. Здорово, если на вторых есть зеркала — они визуально расширит пространство. Поделить площадь на функциональные участки можно с помощью разных конструкций:
- Арки, перегородки с полками из гипсокартона.
- Обычные книжные стеллажи.
- Стенка в виде оконной рамы с подоконником, разделяющая спальную и гостиную зоны.
- Прозрачные и полупрозрачные матовые раздвижные двери и ширмы.
Фото: Instagram @design_msk
Фото: Instagram @malenkayakvartira
Фото: Instagram @myhometut
Фото: Instagram @fabrika_komforta_
Фото: Instagram @idea.dizain
Фото: Instagram @topinterdesign
Фото: Instagram @artremont78
Фото: Instagram @artremont78
Фото: Instagram @artremont78
Чтобы зрительно поднять потолок, используйте обои с вертикальным рисунком. Желательно, чтобы они были пастельными или белыми: холодного оттенка для солнечной стороны и теплого для пасмурной. Подберите легкие, светлые занавески или жалюзи, чтобы не утяжелять обстановку. Расширяют пространство зеркальные и стеклянные элементы в оформлении и прозрачная мебель из пластика.
Фото: Instagram @remont1717
Фото: Instagram @remont1717
Фото: Instagram @rodenhome
Фото: Instagram @rodenhome
Фото: Instagram @medealight.diz
Фото: Instagram @medealight.diz
Фото: Instagram @4livingru
Фото: Instagram @v.a.home
Фото: Instagram @dupen_
Хорошо будет смотреться в интерьере минималистичная люстра. Натяжной потолок может показаться лишним в такой квартире, но, если выбрать глянцевую поверхность и рассеянное освещение, он не испортит общую картину. К тому же это дополнительная звукоизоляция, которая никогда не помешает в подобных домах.
Фото: Instagram @roomtome
Фото: Instagram @roomtome
Фото: Instagram @roomtome
Фото: Instagram @roomtome
Минимализм, легкая мебель, двери-трансформеры, светлые цвета на стенах и потолке помогут сделать уютным любое жилье. Эти дизайнерские приемы можно использовать во всех вариантах перепланировки двухкомнатной хрущевки и при обычном косметическом ремонте.
Какие вопросы стоит задать дизайнеру уже на первой встрече?
Вам нужно сразу понять, как будет строиться взаимодействие с дизайнером на разных этапах ремонта. Спросите, в какой степени требуется лично ваше участие в процессе, необходимо ли ваше присутствие в салонах и строительных магазинах. Если дизайнер говорит, что привык работать один, а вы должны доверять ему на 100 процентов, то это повод насторожиться
Конечно, важно помнить, что дизайнер — это творец и в то же время “ремесленник”, который во многих аспектах ремонта и стиля разбирается лучше вас. Однако хороший специалист всегда настроен на диалог с заказчиком — он будет готов выслушать и прислушаться или же аргументированно отстоять свою точку зрения в живом конструктивном споре

Если вы заказываете услугу авторского надзора, узнайте, как часто дизайнер будет приезжать на объект и в какой форме будет присылать вам отчеты. Также обязательно уточните, как будет происходить взаимодействие на этапе выбора поставщиков, отделочных материалов и других подрядчиков. Если у вас уже есть, например, строительная бригада, сразу сообщите об этом дизайнеру: не факт, что он согласится сотрудничать с непроверенными людьми. Екатерина Углова также рекомендует задать следующие вопросы:
- Сколько вариантов поставщиков предлагает студия?
- Если клиент хочет покупать отделочные материалы сам, какие варианты работы может в этом случае предложить студия?
- Как студия обычно работает над реализацией дизайн-проекта?

У каждого дизайнера своя специфика работы, о которой нужно узнать все заранее, ведь от этого зависит и ваше душевное спокойствие. Некоторым заказчикам, например, удобнее перечислить определенную сумму на счет студии, чтобы она сама оплачивала товары. Другим же, напротив, комфортнее самостоятельно осуществлять закупку — на условиях, что предварительно дизайнер все детально проверил (ткани, цвета, отделки).
К слову, на выставке Global Design вы сможете не только познакомиться с дизайнерами, но и выяснить, какие именно материалы, мебель и декор используются в представленных проектах. Их можно будет приобрести прямо во время выставки, так что она актуальна и для тех, кто оформляет интерьер самостоятельно.
Плюсы и минусы приобретения квартиры в новостройке
Благодаря всем этим преимуществам жилье в новостройках пользуется постоянно растущим спросом, ежегодно все новые и новые покупатели празднуют новоселье. Но следует помнить, что при покупке квартир в жилых комплексах вы можете столкнуться с подводными камнями. Основным недостатком является риск того, что недобросовестный застройщик, собрав средства с потенциальных покупателей, так и не доведет проект до конца. Долгострой после этого может стоять еще много лет, что потребует от вас длительного ожидания и терпения.
- использование современных технологий строительства, отделки, утепления жилья, которые обеспечивают его соответствие новым мировым тенденциям и максимальный комфорт проживания;
- современное расположение помещений, а также возможность купить жилье со свободной планировкой, самостоятельно определить, где у вас будет находиться гостиная, кухня, спальня и другие комнаты;
- использование как централизованных, так и автономных систем отопления. Последние здорово выручают при отсутствии городских коммуникаций, позволяют экономить газ или электричество, автоматически регулируя температуру в доме;
- работоспособность лифтов, использование новых технологий в их изготовлении, позволяющих обеспечить безопасность и комфорт;
- практически все современные жилые комплексы имеют развитую инфраструктуру, рядом с ними возводятся детские площадки, облагораживается придомовая территория.
Угловая квартира: плюсы и минусы
Главной претензией к угловым квартирам всегда является температура. Считается, что такое жилье обязательно будет холодным и неуютным. Отчасти это действительно так — при сильном ветре в недоброкачественно построенном доме температура угловой квартиры будет на несколько градусов ниже, чем срединной. Однако этот недостаток сильно преувеличен. Как правило, комната, расположенная в углу здания, имеет по два окна и батареи, дающими значительное количество тепла.
Некоторые владельцы угловых квартир сетуют на сырость и образование на «холодных» стенах плесени. Увы, но с такой проблемой может столкнуться обладатель абсолютно любой жилплощади, где не соблюдаются нормы тепло- и гидроизоляции. Для устранения этих явлений достаточно утеплить стены и обработать их одним из специальных составов, продающихся в магазинах и предотвращающих повторное появление влаги. Сделать это можно как наняв строительную бригаду, так и самостоятельно.
26 Июн 2018 glavurist 403
Варианты перепланировки и зонирования в трехкомнатной квартире
Перепланировка трехкомнатной квартиры может оказаться довольно сложным делом; некоторые типовые планировки практически не подлежат изменениям из-за расположения несущих стен или длинных коридоров, а также колонн или просто маленькой площади. Тем не менее мы собрали для вас актуальные и удачные планировки с практичными идеями, которые могут вам понравиться.

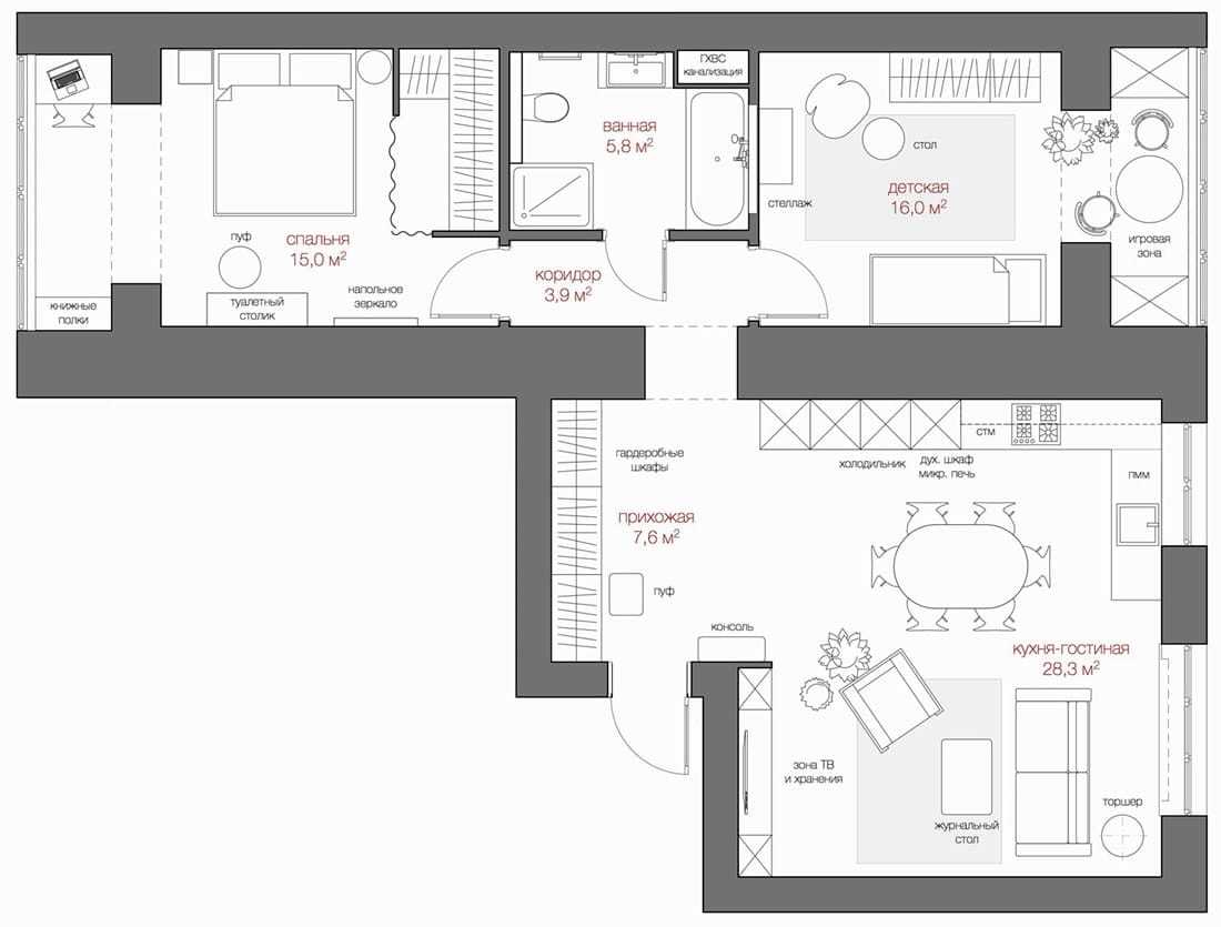
В этом варианте перепланировки, кухню (8 кв. метров), гостиную (20 кв. метров) и прихожую (7,6 кв. метра) объединили в одну комнату, которая получилась очень просторной и с двумя окнами.В детской и спальне лоджии присоединены, там образовались кабинет и игровая комната.Ванная комната расширена за счет одной из спален, теперь здесь есть и ванная чаша, и душевая кабина.Кухонный гарнитур поставлен таким образом, чтобы раковина находилась напротив окна, что очень удобно, а зона для ТВ встроена в нишу.

Эта практичная планировка трехкомнатной квартиры площадью 110 квадратных метров имеет две спальни, в каждой из которых есть ванная комната и гардеробная. Кухня не имеет окна, но спроектирована в американском стиле – с островом и столовой на четыре персоны. В гостиной двери на балкон решены в формате дверей-слайдеров со стеклами от пола до потолка.

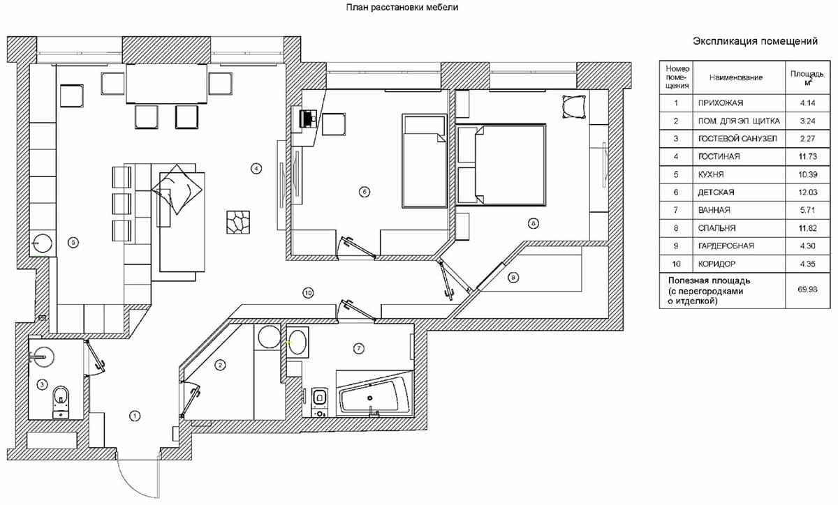
Эта планировка трехкомнатной квартиры вполне типична для новостроек Москвы. Гостиная и кухня были объединены, на месте прихожей расположилось помещение для электрощитка, по совместительству – гардеробная. Также есть гардеробная при главной спальне и гостевой туалет.

Еще один вариант перепланировки трехкомнатной квартиры реализован в интересном формате. На месте, где раньше была кухня, теперь расположились гостевой дополнительный туалет и прачечная, на месте прихожей – кухонный гарнитур. Кухня и столовая объединены. На плане в правой части квартиры расположены две спальни, каждая с ванной комнатой и встроенными шкафами-купе. А при гостиной большая лоджия оформлена в стиле патио с диванчиком и летней столовой.

Еще одна удачная планировка трехкомнатной квартиры имеет по гардеробной в каждой из спален и две ванные комнаты. Столь расширенный формат стал возможен благодаря размещению кухни в зоне прихожей и устранению коридора как такового. Теперь здесь есть лишь проходная зона между кухней и гостиной, с обеих сторон острова.

Проблема квартир с длинными коридорами в том, что в них зачастую очень сложно сделать перепланировку, так как вариантов расположения комнат не так уж и много. Но в данном варианте, обе спальни получили встроенные гардеробы, хозяйка – отдельную прачечную и кухню-гостиную открытой планировки, а в прихожей теперь есть встроенный шкаф для одежды.

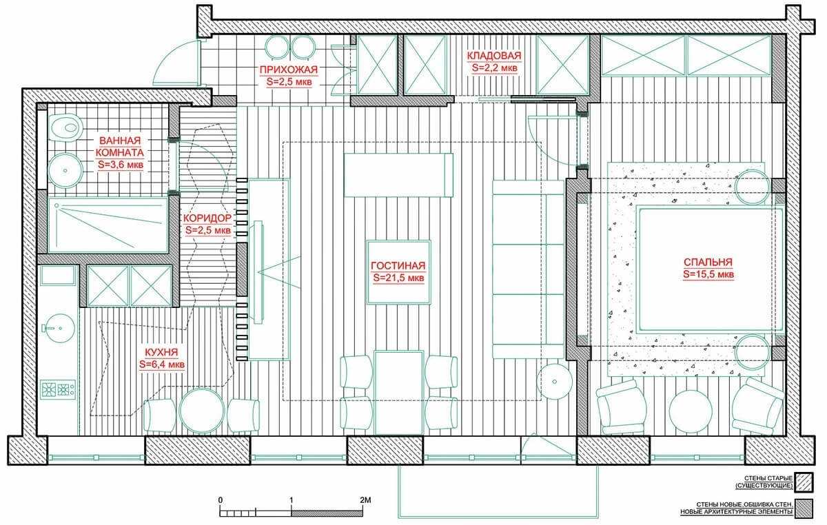
В данном случае трехкомнатная квартира в хрущевке стала двухкомнатной. Спальню в 6 квадратных метров, которая в некоторых случаях в пятиэтажках также является кладовой, сделали частью главной спальни, которая теперь располагает площадью в 15,6 квадратных метров.

Квартира в доме из кирпича
В отличие от панельных домов, в кирпичных (особенно советской постройки) стены отличаются большей толщиной. Поэтому с промерзанием стен вы не столкнетесь. Хотя и в этом случае найдутся свои недостатки.
✘ И снова холодно
Всё же угловая квартира в кирпичном доме достаточно холодная. Основная причина — возраст большинства кирпичных зданий, а следовательно износ окон и батарей. Обновив и первые, и вторые, вы сможете устранить проблему.
✓ Спасают стены
Толстые стены — хороший буфер, который держит тепло. Поэтому если в холода у вас ненадолго отключат отопление, вы это вряд ли почувствуете. Летом, благодаря той же толстой кирпичной кладке, в угловых помещениях сохраняется комфортная температура.
Способы перепланировки: допустимые и запрещенные
Несколько нюансов, которые нужно принять во внимание
| Допустимые | Запрещенные |
|---|---|
|
Возможен снос перегородки между туалетом и ванной и совмещение данных комнат. Также допустимо расширить санузел за счет прихожей. |
Во время перепланировки нельзя затрагивать несущие стены. |
|
Уместно расширить или удлинить жилую комнату, соединяя ее с частью коридорного пространства. |
Запрещено увеличение санузла за счет жилой комнаты. |
|
Объединить кухню со смежным помещением, чаще всего с гостиной. |
Также нельзя расширить кухонное пространство за счет туалета или ванной. |
|
Проделать дополнительные дверные проемы во внутренних перегородках квартиры, которые не являются несущими. |
Совместить жилое помещение с кухней без дверей, на которой установлена газовая плита. |
|
Демонтировать антресоли, ниши, кладовки и другие подсобки для расширения пространства. |
Небезопасным является присоединение теплого пола к общему отоплению и трубам с горячей водой, а также перенос траектории или перекрытие вентиляции. |
|
Объединить комнату с утепленным балконом и демонтировать часть внешней стенки, которая находится под окном. |
Перепланировка недопустима для хрущевок, которые стоят в очереди под снос. |
✅ Узнайте про опыт, рейтинги и готовые объекты
Если застройщик на рынке давно: возводит объекты несколько лет, имеет в портфеле не один жилых комплексов и занял призовое место в рейтинге застройщиков — ему можно доверять. С молодыми компаниями все сложнее, ведь нет никаких гарантий, что завтра они не обанкротятся, а вы не потеряете из-за этого деньги. Получается, что чем дольше компания на рынке, тем лучше.
Информацию про опыт работы можно найти на сайте застройщика в разделе «О компании». Материалы про рейтинги тоже обычно размещаются на сайте. Например, группа компаний «Самолет» на рынке с 2012 года, за это время застройщик сдал 176 домов в разных регионах. Эту информацию можно перепроверить на наш.дом.рф — сайте Минстроя, где хранятся все документы по застройщикам и их проектам.
При этом группа «Самолет» не просто сдает много домов «для галочки» — застройщик думает об удобстве и безопасности своих будущих жителей. К примеру, размещает на территории комплексов места для занятий спортом и отдает предпочтение закрытым дворам.
Объекты «Самолета»: 32 в Москве и 104 в области. Кроме того, застройщик работает в Санкт-Петербурге, Владивостоке и Тюмени
Жилой комплекс «Остафьево» в Москве с уютным зеленым двором, где вы сможете спокойно отдохнуть в тени большого дерева
Жилой комплекс «Мытищи Парк» в Московской области с закрытыми дворами, благодаря которым вы будете спокойны за свою семью
Объекты «Самолета»: 32 в Москве и 104 в области. Кроме того, застройщик работает в Санкт-Петербурге, Владивостоке и Тюмени





























