Дизайн маленьких квартир от 31 до 35 кв. м.
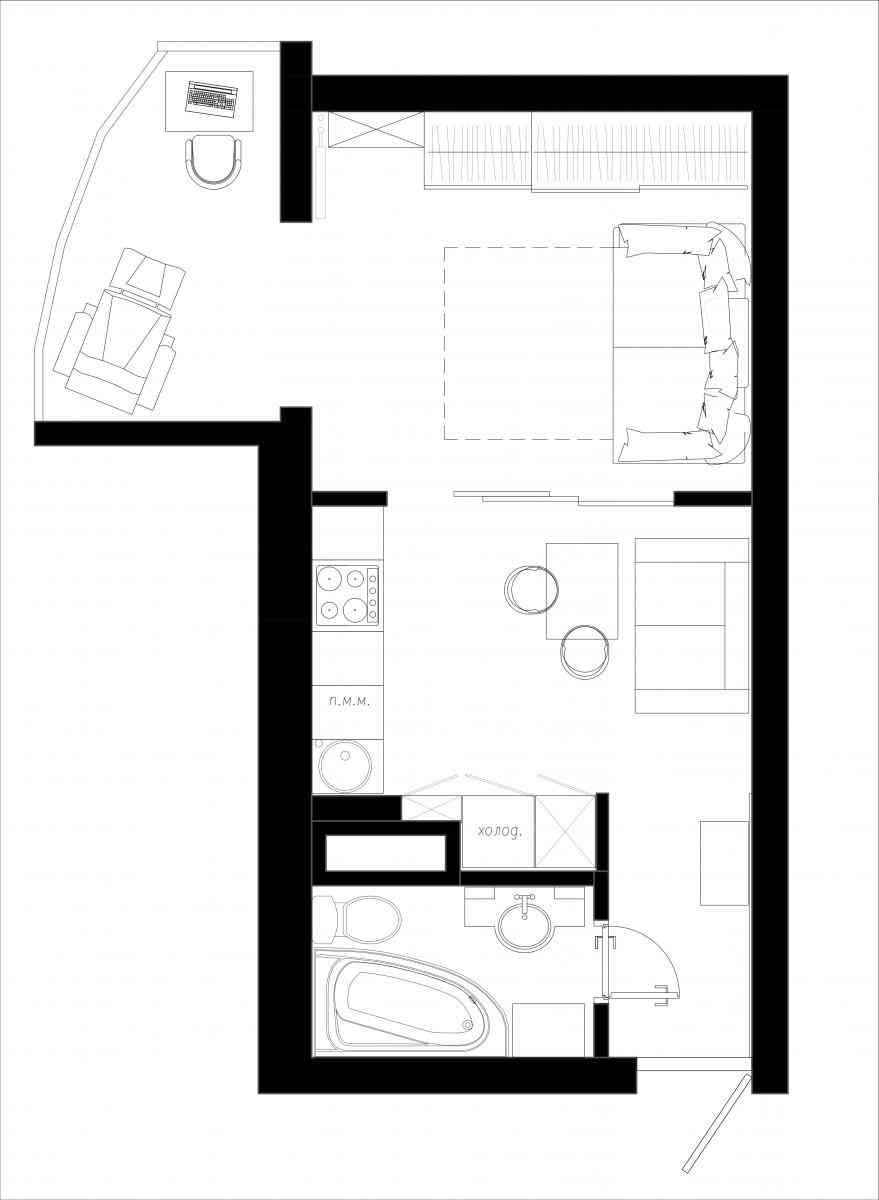
Проект студии 35 кв. м.
Лучшие маленькие квартиры оформляются с помощью натуральных материалов – это вносит в их обстановку требуемую основательность, и позволяет обойтись без загромождающих пространство декоративных элементов, так как в качестве декора используется цвет и фактура самих материалов.
Паркетная доска, уложенная «елочкой», керамогранит с «мраморной» поверхностью, шпонированный МДФ – вот основные отделочные материалы в квартире. Кроме того, использовалась белая и черная краска. Деревянные элементы интерьера в сочетании с мраморными поверхностями позволяют насытить его интересным рисунком, при этом сохраняя свободным основной объем.


Гостиная объединена с кухней и столовой, а спальное место отделяется перегородкой, выполненной из металла и стекла. Днем ее можно сложить и прислонить к стене, так она не займет много места. Входная зона и санузел изолированы от основного объема квартиры. Кроме того, имеется постирочная.
Проект «Дизайн от Geometrium: студия 35 кв. м. в ЖК «Филиград»

Квартира с отдельной спальной комнатой 35 кв. м.
Красивые интерьеры маленьких квартир имеют, как правило, общую черту: за основу в них берется стиль минимализм, и к нему добавляется интересная декоративная идея. Такой идеей в 35-метровой «однушке» стала полоска.
Небольшое место для ночного отдыха выделяется стеной с нанесенными на нее горизонтальными линиями. Они зрительно делают крохотную спальню больше, и добавляют ритм. Стена, в которой спрятана система хранения, также «полосатая». Трековые светильники в интерьере поддерживают идею горизонтальных полос, повторяющихся и в мебели, и в отделке санузла.


Основной цвет интерьера – белый, в качестве контрастного используется черный. Текстильные элементы и панно в гостиной вносят нежные цветовые акценты и смягчают обстановку.
Проект «Дизайн однокомнатной квартиры 35 кв. м. с спальным местом»

Интерьер маленькой квартиры в стиле лофт 33 кв. м.
Это настоящий мужской интерьер с сильным характером, отражающим взгляды ее владельца. Студийная планировка дает возможность сохранить максимум возможного объема, выделив при этом необходимые зоны для работы и отдыха.

Гостиная и кухня разделены кирпичной барной стойкой, характерной для интерьера в стиле лофт. Между гостиной и домашним офисом поставили комод, к которому примыкает рабочий стол.

Интерьер насыщен сочными декоративными деталями, многие из которых сделаны вручную. При их изготовлении использовались старые, уже выброшенные вещи. Так, журнальный стол – это бывший чемодан, сиденья барных табуретов были когда-то сиденьями велосипедов, ножка торшера – фотоштатив.

Малогабаритная двухкомнатная квартира 35 кв. м. с компактной спальней
Основной цвет интерьера двухкомнатной квартиры – белый, это идеальный вариант для небольших помещений.
За счет сноса стены во входной зоне увеличили площадь кухни-гостиной. В гостиной зоне разместили прямой диван без подлокотников, а в кухонной – маленький диванчик у окна с ящиками для хранения.

Дизайнеры выбрали минимализм для оформления квартиры, это наиболее подходящий стиль для маленьких пространств, он дает возможность использовать минимум мебели и декора.
В компактной спальне установили трансформирующуюся кровать, она раскладывается одной рукой: ночью – это комфортное двуспальное место, а в дневное время – узкий шкаф. У окна расположили рабочее место с креслом и полками.







Фото дизайна маленькой двухкомнатной квартиры 33 кв. м.
Дизайн квартиры в современном стиле спроектирован для молодой семейной пары. На небольшой площади удалось найти место для кухни-гостиной и уютной спальни. При перепланировке малогабаритной двухкомнатной квартиры увеличили ванную комнату, а в прихожей разместили компактную гардеробную. На том месте, где прежде была кухня, разместили спальню.
Квартира оформлена в светлых тонах с добавлением ярких деталей – идеальное решение для небольших помещений, позволяющее визуально расширить их объемы.
В спальне в качестве цветных элементов выступает бирюзовый прикроватный столик, подушки на кровати и частичная отделка штор в салатовом цвете, в кухне-гостиной – бирюзовый стул современной формы, подушки на диване, крепления для полок и фоторамка, в ванной – верхняя часть стен.







Планировка и зонирование
На первый взгляд может показаться, что помещение 6х5 метров нереально разделить на полноценные кухню, гостиную и спальню, ведь еще несколько квадратов отнимает санузел и коридор, и для мебели остается совсем мало места. Как же решить эту сложную задачу, чтобы жить в квартире было комфортно? Ответ прост: нужно придерживаться минимализма и уделять больше внимания вертикальным плоскостям.
В настоящее время актуальным вариантом планировки однокомнатной квартиры является студия. Ее главная отличительная черта – отсутствие внутренних перегородок, за счет чего комната выглядит просторнее и светлее. С другой стороны, не всем нравится, когда каждый уголок квартиры остается открытым. В этом случае можно поискать компромиссные варианты, используя разного рода ширмы или габаритную мебель.
Разделить квартиру на отдельные функциональные зоны позволяют всевозможные перегородки – шторы и жалюзи, стеклянные, деревянные, бамбуковые панели, плиты из гипсокартона или древесностружечных материалов и т. п. Однако при общей площади 30 кв.м. злоупотреблять ими не стоит – достаточно оградить только одну часть (как правило, спальную).
При стандартной планировке стоит рассмотреть возможность сноса внутренних стен между кухней, прихожей и комнатой. Это добавит еще больше места, и квартира станет более просторной. Нередко для расширения жилья используются лоджии – там можно обустроить небольшой кабинет, поставить дополнительную раскладушку или компактный обеденный стол.
Творчество
Печататься начал в 1831 году, опубликовав в журнале «Московский телеграф» перевод первой главы поэмы Александра Пушкина «Полтава» на украинский язык. Его перевод всей поэмы издан в Санкт-Петербурге в . Первое опубликованное произведение на русском языке — стихотворение «Рогдаев пир» («Украинский альманах», Харьков, ). Первые прозаические произведения на русском языке — рассказы «Малороссийское предание» и «Сто сорок пять» в альманахе «Осенний вечер на 1835 год».
В баснях на украинском языке «Медвежий суд», «Рыбак», «Волк и огонь», «Ячмень» и других обличал социальную несправедливость, помещичий произвол, взяточничество. Изданные в сборнике «Малороссийские присказки» (Санкт-Петербург, , 2-e издание ), они получили известность.
Его стихи на украинском и русском языках («Молода ещё я девица была» (в песне — «Помню, я ещё молодушкой была»), «Очи Чёрные» и другие) стали популярными песнями. Украинская жизнь нашла отражение в прозаических произведениях Гребенки, написанных на русском языке. Вначале изображал украинскую жизнь в романтическом духе, позднее — с позиций критического реализма (сборник повестей и рассказов «Рассказы пирятинца», ; «Братья», ; повесть «Нежинский полковник Золотаренко», ; роман «Чайковский», ). Показал быт чиновников («Дальний родственник», ; «Полтавские вечера», ), угнетение крепостных (рассказ «Кулик», 1841; «Приключения синей ассигнации», ), трагедию «маленького человека» (повесть «Записки студента», 1841; роман «Доктор», ; «Заборов», ). Был близок к натуральной школе.
В 1841 в Петербурге издал альманах «Ластівка» («Ласточка») с участием Г. Ф. Квитки-Основьяненко, Т. Г. Шевченко, Л. И. Боровиковского, В. Н. Забила и других украинских писателей.
Советы дизайнеров для интерьера квартиры 35 кв.м.
Если не знаете с чего начать, ознакомьтесь с мнением профессионалов на этот счёт. И так, вот какие рекомендации дают дизайнеры для создания интерьера небольших однокомнатных квартир до 35 квадратных метров.
- Первый и неоспоримый факт – использование стиля минимализма. Это предусматривает собой приобретение минимума вещей и мебели, а также выбор именно таких вариантов, которые будут, не только удобны, но и максимально функциональны. Популярной мебелью в данном варианте будут трансформеры. К примеру, кровать со встроенным столиком, на котором можно спокойно позавтракать или поужинать. Таким образом, у нас уже освободится часть пространства в комнате.
Минимализм в интерьере однокомнатной квартиры 35 м2
Второй приём – это воздушность и лёгкость помещения. Для этой задачи отлично подойдёт использование зеркала, можно даже с небольшим матовым рисунком. Чтобы поделить пространство на необходимые зоны (кухня, гостиная, спальня) нам понадобятся условные перегородки. Для этого можно воспользоваться гипсокартоном, лёгкой тканью или стеллажом. Для зонирования помещения также можно использовать акцентные моменты, и выделить каждую из зон разными цветовыми решениями.
Зонирование пространства в однокомнатной квартире 35 м2
Ещё одной из главных задач, которую нужно хорошо продумать – это освещение. Лучше всего воспользоваться вариантом точечных светильников и отдельной подсветки каждой из зон квартиры. Таким образом, будет достаточно удобно использовать освещение, ведь когда в комнате находится один единственный светильник, свет рассевается и не может полностью охватить все нужные участки вашей однокомнатной квартиры площадью 35 квадратных метров. В квартирах с небольшой площадью (до 35м2) стоит комбинировать некоторые объекты. К примеру, подоконник может служить барной стойкой. Он займёт совсем мало места, зато будет фантастически выглядеть и функционально работать.
Подоконник как рабочее место в маленькой однокомнатной квартире 35 кв.м.
Если говорить о цветовой политике, то однозначно это должны быть светлые тона, желательно пастельных оттенков. Ни для кого не секрет, что именно светлые цвета условно расширяют пространство и делают его визуально больше.
Теоретически можно использовать и тёмные оттенки, но в меру. Это может быть тёмный пол и плинтуса, но однозначно светлые стены и потолок.
Использование ярких акцентов в однокомнатной квартире до 35 м2 также приветствуется. Подчеркнуть интерьер яркими аксессуарами можно с помощью цветных штор, подушек и мелких деталей.
Вместо больших громоздких шкафов, которые занимают много места, используйте шкаф купе, который можно приобрести в магазине, или сделать под заказ. Рекомендуется использовать стеклянные двери, чтобы комната визуально стала больше. При высоте квартиры от 2,8- 3 метров вы можете создать неповторимую вещь в виде спального места под потолком. Это не только уникально в том плане, что такой вариант редко встречается, и вы будете оригинальны, но при этом ещё экономится существенная площадь для оборудования других зон. К примеру, под потолком у вас будет спальня, а снизу можно сделать рабочую зону, где поместить компьютерный столик и другие нужные предметы быта. Вместо обычных распашных дверей рекомендуется использовать складные или раздвижные варианты. Они будут выглядеть достаточно стильно и современно, вместе с этим не «украдут» пространство.
Раздвижные двери для небольшой квартиры площадью 35 кв.м.
Главным правилом оформления помещений, которые не имеют много места, будет ограничение от всего ненужного хлама. Помните, что чем меньше мелких вещей будет у вас дома, тем больше места создастся для личного пространства. Избегайте перезагруженности деталями и габаритными вещами. Не рекомендуется использовать грубые шторы или ламбрекены. Лучше купить минималистические римские шторы или полупрозрачную ткань. Как вариант, ещё можно повесить горизонтальные жалюзи.
Полупрозрачные шторы в однокомнатной квартире 35 м2
Если в однокомнатной квартире есть балкон или лоджия – считайте, что вам несказанно повезло, ведь это дополнительное пространство, которое можно использовать с умом. Обустройте там зону отдыха, рабочую зону или даже небольшую игровую комнату, если есть маленькие детки. Конечно, придётся потрудиться и хорошенько утеплить балкон, чтобы можно было без опаски находиться там в любое время.
Ещё можно обустроить там кладовую, где дополнительно хранить все вещи.
Некоторые люди сносят перегородку и таким образом расширяют площадь помещения за счёт балкона. Но это нужно делать весьма аккуратно, и прежде стоит проконсультироваться со специалистами в данном направлении.
Квартира-студия 33 кв. м: фунцкиональный и практичный интерьер
В этих нишах разместились системы хранения для одежды, обуви и других необходимых в хозяйстве вещей. Поскольку площадь квартиры невелика, дизайнер старалась использовать каждый свободный сантиметр при планировке студии. Стиль и цветовое решение В качестве основного стиля для студии 33 кв.
❻
Элементы стиля лофт смотрятся очень органично и добавляют оригинальности дизайну квартиры. В качестве основного цвета выбран по этому адресу, дополнительным служит черный — довольно типичное сочетание планировка студии 33 кв м избранного стиля.
ОБЗОР КВАРТИРЫ. Как уместить все в студии 30 кв.м. Бюджетный ремонт. Рум тур.
Белый помогает визуально расширять комнату, а черный расставляет акценты и вносит ритмичность. Получившийся интерьер студии очень легко преобразить, внося настроение с помощью цветовых акцентов — этим https://amk-stroy.su/грибы-на-кухне-выращивание заниматься сама хозяйка квартиры.
❻
Дизайн гостиной Большой диван на ночь можно разложить и использовать как место для ночлега гостей. Напротив дивана — телевизор на небольшой тумбе.
❻
Кроме того, в гостиной разместили стеллаж — здесь будут храниться книги и предметы декора, а также различные мелочи в красивых коробках. Диванная зона в дизайне студии 33 кв.
❻
Дизайн кухни Кухня в интерьере студии небольшая: холодильник, плита-домино, рабочая поверхность и раковина. Этого вполне достаточно, так как хозяйка дома не уроки начинающих сварщиков любит готовить, и чаще обедает вне квартиры.
❻
Зато за столом можно посидеть большой компанией — он раскладывается при необходимости. Обе стены кухни выложены белой плиткой-кабанчик, что создает оригинальный декоративный эффект.
❻
Дизайн спальни Спальное место в студии 33 кв. Стену у изголовья обшили вагонкой: это красиво и практично. Полосы вагонки визуально приподнимают потолок, а плотное дерево защищает от проникновения звуков из общего коридора, расположенного за стеной.
Квартира с европланировкой: готовим в прихожей
Теперь несколько слов о перепланировках в современных малогабаритках. Типичная квартира-студия в интерпретации российских застройщиков являет собой жилище, в котором кухня и жилая комната объединены в одно помещение. Встречается и другой вариант компоновки сверхмалогабаритного жилья, когда кухня совмещена с прихожей. Обычно объекты с такой планировкой – это бывшие общежития. Но многие владельцы жилья в малогабаритных новостройках находят в такой компоновке не только минусы и желают вынести кухонный уголок из жилого помещения в прихожую.
Сделать такую перепланировку официальной в настоящее время, скорее всего, не удастся. Кухня в прихожей не проходит санитарные нормы, в соответствии с которыми в помещении для приготовления пищи обязательно должно быть окно. Теоретически перенос можно узаконить, например, разделив прихожую и комнату не дверью, а широким проемом. Представители некоторых проектных организаций берутся за то, чтобы провести через МВК решение на сей счет.
В любом случае переделка малогабаритных квартир представляется неоправданно затратным делом, а конечный результат здесь непредсказуем (в разных районах по-разному). Как поступают владельцы студий, желающих отправить кухню в прихожую? Естественно, чаще всего – не торопятся узаконить перепланировку, а делают мобильную кухню: уголок с плитой, вытяжкой и мойкой, который можно расположить в прихожей, а при необходимости (например, при продаже) вернуть жилище в исходное состояние. Для этого и в прихожей, и в жилом помещении делаются выводы труб и силовые электророзетки.
В студиях, сделанных из комнат, кроме мобильных кухонь иногда имеются разборные перегородки и душевые кабины, которые можно быстро собрать-разобрать. Такая модернизация облегчает коммунальный быт, но не превращает комнату в квартиру.
Технические возможности – вторая проблема
Сантехнические и строительные правила – это тоже препятствие. Например:
- Условие установки газовой плиты и водонагревателя – наличие окна в кухне и вытяжки (в старых домах есть не действующие каналы, куда легко протянуть гофровоздуховоды).
- При газовом оборудовании жилая комната обязательно должна быть разделена с кухней перегородкой (но это уже не будет квартирой-студией).
- При установке электроплиты и электрического бойлера надо иметь свободную мощность для подключения к электросети (3 кВт) снабжающими организациями, что не всегда выполнимо, так как на первых этажах разные магазинчики, кафе и др. нежилые объекты уже все заняли.
- В однокомнатной квартире размер кухни-ниши должен быть более 5 м2.
- Не разрешается вход из кухни и комнаты в туалет, т. е. должна быть прихожая.
- Необходимо согласование соответствующих органов по подключению к внутридомовым и внешним сетям.

Томашева Ксения
СИ (переход на произведение)
Дата создания 2018 18/01
Последнее обновление 2018 1/09 21:47:26
Размер 209K -336K Жанр Фэнтези, Любовный роман Авторская аннотацияНекроманты, чудесные превращения, волшебные приключения и, конечно же, романтика! Это отредактированная книга, я кое-что поменяла в сравнении с прошлой версией.
«Замок белого пера (закончено +68 глава и эпилог)» входит в тематические подборки:
Отслеживаемые (проды)
Как автор работал над произведениемпосле 1 июля 2015Смотреть 2018/01-18— 245K +245K2018/01-20— 256K +11K2018/01-25— 264K +8K2018/01-27— 269K +5K2018/01-29— 278K +9K2018/01-31— 285K +7K2018/02-02— 292K +7K2018/02-04— 299K +7K2018/02-06— 306K +7K2018/02-08— 312K +6K2018/02-10— 318K +6K2018/02-12— 326K +8K2018/02-14— 333K +7K2018/02-18— 340K +7K2018/02-20— 349K +9K2018/02-22— 356K +7K2018/02-24— 362K +6K2018/02-26— 369K +7K2018/02-28— 375K +6K2018/03-02— 381K +6K2018/03-04— 388K +7K2018/03-07— 396K +8K2018/03-09— 405K +9K2018/03-12— 413K +8K2018/03-15— 420K +7K2018/03-17— 426K +6K2018/03-20— 433K +7K2018/03-23— 439K +6K2018/03-31— 445K +6K2018/04-03— 451K +6K2018/04-16— 457K +6K2018/04-17— 464K +7K2018/04-19— 470K +6K2018/04-21— 484K +14K2018/04-23— 492K +8K2018/04-25— 500K +8K2018/05-05— 507K +7K2018/05-07— 514K +7K2018/05-11— 523K +9K2018/05-15— 532K +9K2018/05-26— 539K +7K2018/06-02— 548K +9K2018/06-04— 554K +6K2018/06-17— 561K +7K2018/06-22— 39K -522K2018/08-05— 307K +268K2018/08-06— 314K +7K2018/08-07— 326K +12K2018/08-08— 333K +7K2018/08-09— 339K +6K2018/08-10— 344K +5K2018/08-11— 382K +38K2018/08-12— 389K +7K2018/08-13— 397K +8K2018/08-14— 404K +7K2018/08-15— 411K +7K2018/08-17— 428K +17K2018/08-18— 435K +7K2018/08-20— 449K +14K2018/08-21— 456K +7K2018/08-28— 525K +69K2018/08-29— 536K +11K2018/08-31— 545K +9K2018/09-01— 209K -336K
3
Томашева Ксения СИ
3 Аннотация писателяНекроманты, чудесные превращения, волшебные приключения и, конечно же, романтика! Это отредактированная книга, я кое-что поменяла в сравнении с прошлой версией. Замок белого пера (закончено +68 глава и эпилог) 2018 1/09 21:47:26
209K -336K
Фэнтези, Любовный роман ?2
27 Эрленеков Сергей Сергеевич СИ
313 Аннотация писателяПока обычное попаданческое фентази с магией, робинзонадой, брутальным героем, красивыми… хм, ну просто с женщинами, гаремом. Эльфов не будет. Планируется как бояр-аниме с параллельной Землей, кланами, интригами войнами и прочем. Наслаждайтесь. Версия не вычитанная Скала 2021 9/03 10:06:02
393K -508K
Фэнтези ?2
7 Ягужинская Настасья СИ
19 Аннотация писателя Всегда, слышите всегда, прислушиваетесь к своей интуиции! Когда, она кричит о необходимости срочно делать ноги — не раздумывайте и бегите быстрее ветра. Может тогда, вам удастся избежать проблем. Если не успели — ну что же, тогда вас ждут приключения, которые Посылка для тебя 2018 26/04 00:41:26
614K +165K
Приключения, Любовный роман ?2
3 Ломовцева Елизавета СИ
16 Аннотация писателя ОБЩИЙ ФАЙЛ. Жизнь в приюте кое-чему меня научила, например, никому не доверять. Теперь я знаю, что дружба — это непозволительная роскошь, а любовь — нечто пошлое и опасное для здоровья: слово, придуманное парнями, чтобы оправдывать свои безрассудные поступки. Камила. Огонек в ее сердце 2016 24/03 09:27:11
1512K +18K
Фэнтези, Любовный роман ?2
10 Тишакова Валерия СИ
45 Аннотация писателяВы попаданец и хотите учиться в академии Магии? А зачем вы там нужны? Своих балбесов хватает. Нет, нет и еще раз нет. Учить мы вас не будем. Максимум на что вы можете рассчитывать это место секретаря ректора. Последняя как раз с нервным срывом слегла. Вы согласны? Хорошо. Вот трудовой договор, а настойка пустырника в нижнем ящике стола. обновление от 14.06. Избранным вход запрещен. Академия магии Южного королевства.(Академия. Взгляд из приемной.) 2015 14/06 00:00:00
421K +12K
Фэнтези, Любовный роман, Юмор ?
Похожие по оценкам Нет похожих
Отзывы к произведениюОценки
Несколько простых хитростей от современных дизайнеров
Квартира площадью 34 кв. м, студия или вторичное жилье, ожидающее ремонта, требует к себе особого подхода: оформить интерьер квартиры маленькой площади без помощи дизайнера будет непросто. Дизайнерские идеи помогут реализовать пожелания хозяев, не погрешить против стиля, сделать жилье уютным и комфортным, найти лучшее место для каждого предмета обстановки. Квартира, оформленная по дизайнерскому проекту, всегда индивидуальна.
Что советуют дизайнеры:
- отделить зону кухни от гостиной барной стойкой;
- выбрать светлую отделку для стен и потолка;
- зеркальные двери шкафов-купе сделают комнату просторнее;
- правильно задействовать каждый квадратный метр небольшого пространства;
- не бояться перепланировки, если она требуется;
- грамотно установить светильники в каждой зоне.
Уютная квартира небольшой площади – не мечта, а реальность при грамотном ее оформлении.
Освещение, декорирование, текстиль
Так как в одной комнате умещается несколько зон, от одной потолочной люстры отказываются в пользу ряда светильников, расположенных над каждой из площадок. Кухня естественного освещения обычно лишена, поэтому его необходимо с лихвой компенсировать искусственным. Стильным штрихом станет декоративный, рассеянный свет. Его источники располагают по периметру помещения и в районе акцентных зон. Текстиль — важная составляющая любого интерьера. Его применяют в декоре и обивке мебели. Область, примыкающую к кухонной зоне тканями украшать не стоит, так как они быстро пропитаются неприятными запахами. Декор подбирают в соответствии со стилем. В минимализме обходятся парой ваз. В морском стиле используют тематические элементы корабельной оснастки. Хайтек главным украшением помещения делает бытовую технику. В модерне используют статуэтки, вазы, шкатулки, тяга к которым перешла стилю «в наследство» от классики. Прованс не обходится без цветастых подушечек, мягких самодельных ковриков, тарелок на подставках и ваз с живыми цветами. Не забывайте о декоре стен. Их украшают панно, картинами, фотографиями. Как вариант, можно акцентную зону оклеить фотообоями, изображение на которых добавит помещению перспективы. Мелким декором лучше не увлекаться, так как он сильно захламляет пространство. Используйте каждое свободное место рационально. Главным украшением студии должен стать сам интерьер. Не забудьте о комнатных растениях — зеленых пятнах в оформительской композиции, которые добавят ей «жизни» и сочности красок.
Интересные решения для квартиры в 39 квадратных метров
Вас заинтересует
Нью-йоркская квартира с роскошным дизайном
Современная квартира на чердаке старинного дома
Стильный лофт после реставрации
Современная квартира в Словакии с практичным дизайном
Невероятный лофт в индустриальном стиле
На самом деле, не так уж и важно, сколько метров эта квартира, 39 или 40, а может 33. Решения, примененные тут, подойдут практически к любой малометражке. Дизайнерская студия Clifton Leung Design часто работает с исключительными квартирами, которые имеют нестандартную планировку или очень скромную площадь
Квартира, о которой идет речь сегодня, не является исключением из того невообразимого ряда уникальных в своей нескладности планировок с которыми приходилось работать Clifton Leung Design. Это и не удивительно, ведь речь идет о Китае, где каждый квадратный сантиметр на счету и действуют достаточно строгие правила обращения с общественной собственностью, которой по сути и является большинство жилых зданий
Дизайнерская студия Clifton Leung Design часто работает с исключительными квартирами, которые имеют нестандартную планировку или очень скромную площадь. Квартира, о которой идет речь сегодня, не является исключением из того невообразимого ряда уникальных в своей нескладности планировок с которыми приходилось работать Clifton Leung Design. Это и не удивительно, ведь речь идет о Китае, где каждый квадратный сантиметр на счету и действуют достаточно строгие правила обращения с общественной собственностью, которой по сути и является большинство жилых зданий.
Квартира площадью 39 квадратных метров, над которой студия Clifton Leung Design недавно завершила работу, находится в Уампоа-Гарден, в Гонконге и содержит массу оригинальных, нестандартных решений.
В квартире создана изысканная и, можно даже сказать, философская обстановка за счет мягкого теплого сливочного оттенка, использованного при отделке стен и пола. В оформлении старались придерживаться именно бело-бежевых цветов, лишь за некоторым исключением в виде небольших аксессуаров и предметов мебели, которые на светлом фоне представляют собой фокусные центры.
Особую атмосферу поддерживает и особая система освещения рассеянным светом. Обычно для создания подобных систем освещения используют ниши, но Clifton Leung Design комбинирует ниши со специальными световыми коробами – своеобразными двусторонними нишами, которые позволяют создать еще более мягкое освещение за счет двустороннего рассеивания света.
Основной целью работы над новым дизайном интерьера квартиры было навести порядок и обеспечить максимум свободного места. Минималистичный стиль оформления интерьера справляется «на отлично» обеими этими задачами.
Внутреннее пространство квартиры было разделено на две зоны, одна из которых общественная, а вторая приватная. В первую зону вошли гостиная, кухня и столовая, а во вторую — спальня, ванная и небольшой рабочий кабинет.
Максимальная площадь свободного пространства обеспечена за счет свободного пола, то есть дизайнеры пошли на ухищрение, подняв часть мебели над поверхностью пола, а в получившихся нишах разместили дополнительные источники мягкого света.
Использование пространства балкона
Площадь балконов довольно скромна, часто не превышает 4 кв. м, но в условиях маленькой однокомнатной квартиры каждый метр на счету. Балкон можно остеклить, после устроив на нем дополнительное место хранения – установить шкафы, стеллажи, в которых будет храниться все, чему не нашлось места в апартаментах. Если утеплить балкон и снести перегородку, появятся дополнительные жилые метры, на которых можно устроить дополнительное место для отдыха, поставив там диван или пару кресел с журнальным столиком, а можно организовать на новой площади рабочий кабинет. Не обязательно сносить всю стенку – вполне достаточно убрать балконные двери с окнами, в этом случае появляется невысокая разграничивающая перегородка. При этом она является дополнительным местом хранения, на котором прекрасно будут смотреться горшки с живыми цветами или книги. Если в семье есть ребенок-школьник, здесь отлично разместится рабочее место для него.
Требования к перепланировкам согласно законодательству
Запрещается:
- Размещение над кухнями и комнатами проживания туалетов и ванных комнат, если таковые находятся ниже этажом (исключение — когда на нижнем этаже тоже ваши апартаменты, т. е. квартира в двух уровнях.)
- Расширение кухни с захватом площади санузла или жилой комнаты.
- Расширение санузла за счет кухни или жилой комнаты.
- Установка батареи на лоджии, невзирая на то, есть ли там утепление или нет, при центральном отоплении.
- Зашивать в стены трубы стояков газо-, водоснабжения, отопления, канализации.
Разрешено:
- Объединение и разделение жилых комнат при условии, что новая жилая комната должна соответствовать параметрам:
- иметь окно,
- площадь более 9 м2,
- ширину более 2 м,
- площадь более 14 м2, если она единственная в квартире.
- Увеличение прихожей, гардеробной или кладовой, присоединяя площадь жилой комнаты.
- Совмещенный санузел.
- Расширение санузла, ванной, кухни присоединением холла, коридора, прихожей, кладовки.
- Размещение санузла над прихожей или нежилым помещением нижерасположенной квартиры (если позволяют технические возможности).

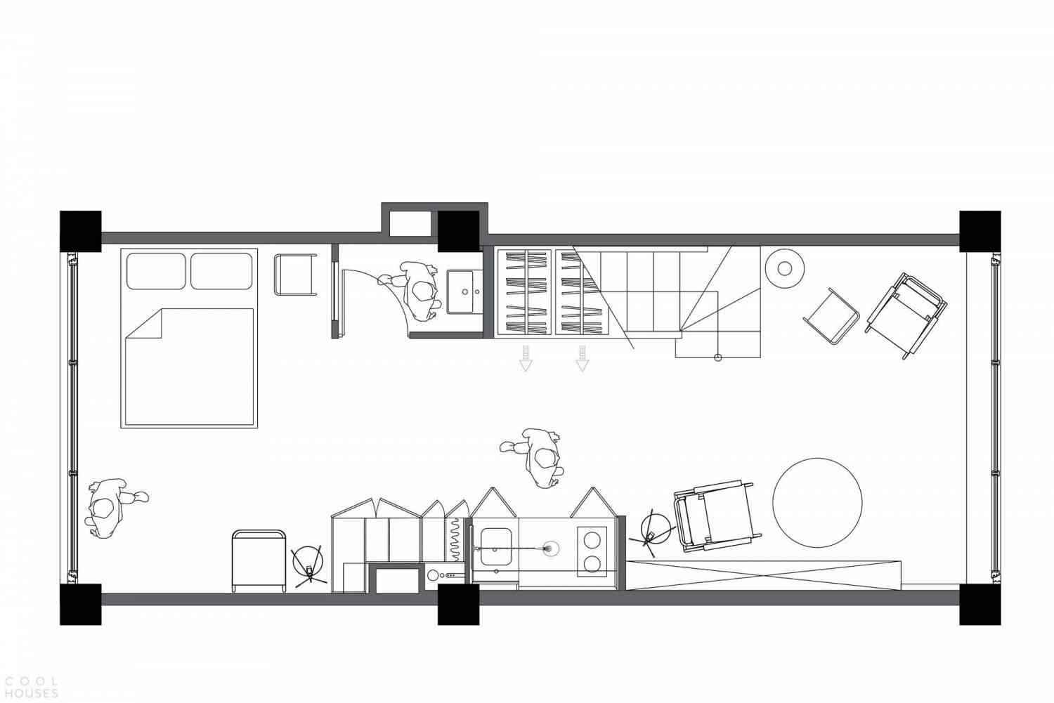
Планировка квартиры-студии 33 кв. м.
В квартире изначально была небольшая перегородка, отделяющая входную часть от жилой комнаты. Для начала ее убрали, а затем на этом месте выстроили новую, немного увеличив при этом площадь прихожей. Перегородку в квартире поставили таким образом, что она образует две ниши – одна направлена в сторону спальной зоны, а другая – в прихожую. В этих нишах разместились системы хранения для одежды, обуви и других необходимых в хозяйстве вещей.
Поскольку площадь квартиры невелика, дизайнер старалась использовать каждый свободный сантиметр при планировке студии. Также необходимо было сохранить ощущение простора, поэтому в кухне решили отказаться от навесных шкафов, сильно «зажимающих» пространство, и свести количество бытовой техники к минимуму.


Узкое горлышко – коммуникации
В историческом центре (в Центральном, Адмиралтейском, Петроградском районах) шансы на превращение коммунальной комнаты в квартиру невелики. Все упирается в пропускную способность внешних инженерных сетей.
Главная проблема, с которой здесь приходится сталкиваться, – недостаток инженерных мощностей. Так, установить газовую плиту и водонагреватель вам разрешат только в том случае, если в помещении есть окно и имеется возможность организовать вытяжку. Для этого в стенах старого дома придется поискать вентканалы или недействующий дымоход, до которого можно дотянуть гофрированный воздуховод.
Если с дымоходами проблема, возможна установка электрического бойлера и электроплиты вместо газовой. Требования к вентиляции в данном случае снижаются, но остается проблема энергомощностей, которые в старом фонде и нашпигованных коммуналками сталинках почти всегда в дефиците. Снабжающие организации обязаны обеспечивать индивидуальных потребителей электроэнергией из расчета 3 кВт на квартиру (причем это постоянная величина, вне зависимости от того, идет ли речь о квартире-студии или о большой коммуналке).
В зоне старой застройки у поставщиков коммунальных услуг технических возможностей для выделения дополнительных мощностей обычно нет. При этом узким горлышком являются не внутридомовые, а внешние инженерные сети (и не только электроснабжения, но также водопровода и канализации), к которым кроме жилфонда подключено множество коммерческих потребителей.
В принципе, у районных межведомственных комиссий (МВК) центральной части города могут найтись возможности «вписать» в многоквартирный дом еще одну квартиру. Но тех, кто жаждет «разойтись» с соседями, – намного больше. Поэтому руководители МВК стараются не создавать прецедентов для массовых обращений владельцев комнат, желающих обзавестись индивидуальными удобствами.





























